Добавить в корзинуПозвонить
Найти в Дзене

Власти утвердили планировку под высотки с ТЦ в Нижнем Новгороде

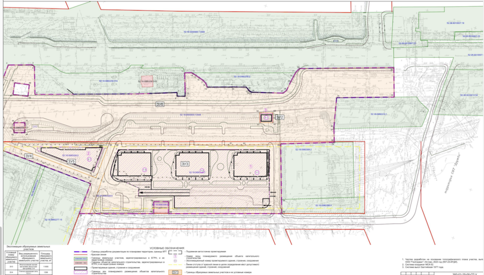
Минградразвития региона утвердило проект планировке территории в микрорайоне «Печерская Гряда» — от улицы Богдановича и далее вдоль Казанского шоссе в Нижнем Новгороде. На участке планируется строительство трех высоток и пятиэтажного нежилого здания общественного назначения. Как ранее писал NN.DK.RU, в июне 2025 г. нижегородский минград опубликовал мастер-план КРТ на Богдановича, предполагающий возведение домов высотой до 30 этажей и торгового центра. В приказе ведомства говорится, что документация по планировке территории была подготовлена ООО «Линия» по заказу ООО СЗ «Мегаполис» для исполнения договора о комплексном развитии территории по инициативе правообладателей земельных участков и расположенных на них объектов недвижимости. Площадь территории в границах КРТ составляет 35,3 тыс. кв. м, застройки, занятая проектируемыми зданиями, строениями и сооружениями — 8,5 тыс. кв. м. Проект реализуют в три очереди, срок завершения — до конца 2034 г. Будет выполнено благоустройство, построе

Минградразвития региона утвердило проект планировке территории в микрорайоне «Печерская Гряда» — от улицы Богдановича и далее вдоль Казанского шоссе в Нижнем Новгороде. На участке планируется строительство трех высоток и пятиэтажного нежилого здания общественного назначения.

Как ранее писал NN.DK.RU, в июне 2025 г. нижегородский минград опубликовал мастер-план КРТ на Богдановича, предполагающий возведение домов высотой до 30 этажей и торгового центра.

В приказе ведомства говорится, что документация по планировке территории была подготовлена ООО «Линия» по заказу ООО СЗ «Мегаполис» для исполнения договора о комплексном развитии территории по инициативе правообладателей земельных участков и расположенных на них объектов недвижимости. Площадь территории в границах КРТ составляет 35,3 тыс. кв. м, застройки, занятая проектируемыми зданиями, строениями и сооружениями — 8,5 тыс. кв. м.

Проект реализуют в три очереди, срок завершения — до конца 2034 г. Будет выполнено благоустройство, построены инженерные коммуникации, сформированы внутриквартальные проезды, тротуары, открытые стоянки автомобилей, хозяйственные площадки, наружное освещение, дождевая канализация.