Найти в Дзене

Построили минидом 30 кв.м, но радости нет - заказчик испортил дизайн

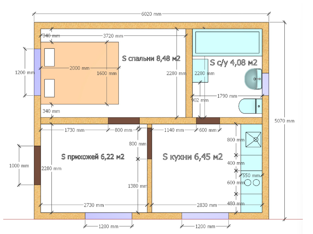
Не могу понять, почему из нескольких вариантов дизайна заказчики обычно выбирают самый скучный и невзрачный? Заказчице из Анапы по её планировке сделали 6 вариантов дизайна минидома с террасой на крыше! Шесть вариантов! Чтобы и ей угодить и нам получить красивый сданный дом в портфолио. В результате заказчица выбрала вариант 2, который сама и придумала- это самый тоскливый вариант дизайна из шести. И даже он не получился как на картинке, потому что вместо двери из ПВХ-профиля со стеклопакетом, дающей много света, она попросила поставить ей обычную квартирную дверь, попросила поднять потолки до 3-х метров, и минидом стал непропорциональным. От козырька над входной дверью и светильников справа и слева от двери тоже отказалась. Вместо решетчатой отделки цоколя, как на визуализации, попросила обшивку ПВХ-софитами. Изменила высоту окон. Стоимость данного минидома с отделкой, но без сантехники и кухни в ценах на февраль 2026 года составила 2'470 тыс. руб.
И вот что получилось... Терраса на к

Не могу понять, почему из нескольких вариантов дизайна заказчики обычно выбирают самый скучный и невзрачный?

Заказчице из Анапы по её планировке сделали 6 вариантов дизайна минидома с террасой на крыше! Шесть вариантов! Чтобы и ей угодить и нам получить красивый сданный дом в портфолио.

Вариант 3. Обшивка стен из сайдинга двух цветов.
Вариант 3. Обшивка стен из сайдинга двух цветов.
Вариант 4. Обшивка стен из стального сайдинга двух цветов.
Вариант 4. Обшивка стен из стального сайдинга двух цветов.
Вариант 5. Обшивка стен из стального сайдинга двух цветов.
Вариант 5. Обшивка стен из стального сайдинга двух цветов.
Вариант 6. Обшивка стен из гибкой черепицы Хауберк и стального сайдинга.
Вариант 6. Обшивка стен из гибкой черепицы Хауберк и стального сайдинга.

В результате заказчица выбрала вариант 2, который сама и придумала- это самый тоскливый вариант дизайна из шести. И даже он не получился как на картинке, потому что вместо двери из ПВХ-профиля со стеклопакетом, дающей много света, она попросила поставить ей обычную квартирную дверь, попросила поднять потолки до 3-х метров, и минидом стал непропорциональным. От козырька над входной дверью и светильников справа и слева от двери тоже отказалась. Вместо решетчатой отделки цоколя, как на визуализации, попросила обшивку ПВХ-софитами. Изменила высоту окон. Стоимость данного минидома с отделкой, но без сантехники и кухни в ценах на февраль 2026 года составила 2'470 тыс. руб.
И вот что получилось...

Терраса на крыше.

И что внутри получилось...

Дизайн часто кроется в деталях, которые кажутся мелочами, но отказываясь от этих мелочей теряется "изюминка". Эти детали, как специи в блюде - их совсем щепотка, но без них пресно.


Вспомнился старый строительный мем.

Вот такая боль строителей и архитекторов :-)

Телеграм-канал нашей производственной строительной компании: https://t.me/hozblokifilonenko

Наш сайт: филоненко.рус

Мы работаем в следующих городах и регионах:
Москва,
Санкт-Петербург,
Краснодар,
Екатеринбург,
Новосибирск,
Воронеж,
Симферополь и Крым,
Казань,
Ростов-на-Дону.