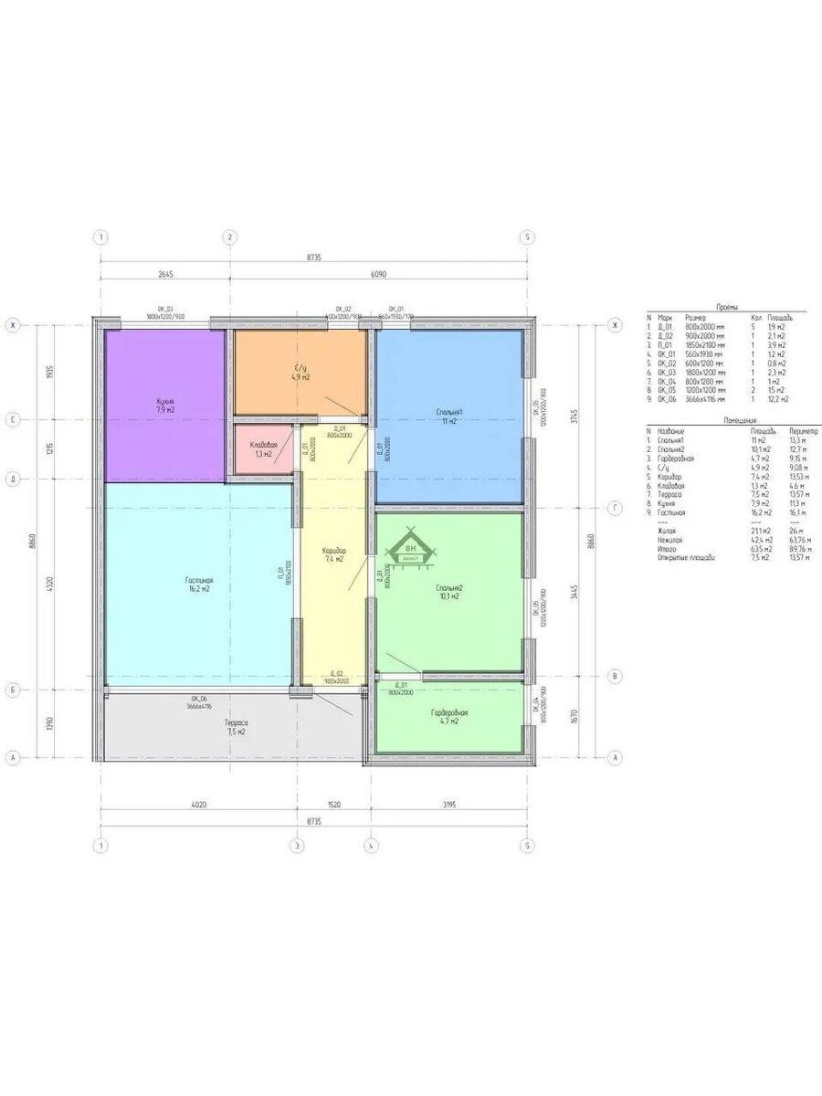
ALTA - компактный и бюджетный дом, отвечающий на вопрос, как построить дом за 5-7 млн (в зависимости от комплектации). Общая площадь дома ALTA - 82 м².
ALTA - компактный и бюджетный дом, отвечающий на вопрос, как построить дом за 5-7 млн (в зависимости от комплектации). Общая площадь дома ALTA - 82 м².
...Читать далее
Создали новый проект дома. ALTA - компактный и бюджетный дом, отвечающий на вопрос, как построить дом за 5-7 млн (в зависимости от комплектации). Общая площадь дома ALTA - 82 м².