Добавить в корзинуПозвонить
Найти в Дзене

ТУЛА 187 м2 - проект кирпичного английского коттеджа с 5 спальнями

✅ Проект готовый, порядок заказа чертежей - на основном сайте Дом в английском (или старо-дачном🤔) стиле , с выступающей вперед мансардой над террасой, эркером на боковом фасаде и двумя мансардными окошками на фасадах. Отделка - красный кирпич и белые декоративные детали у окон, дверей, кровли и колонн. Дом рассчитан на проживание семьи из 3 - 6 человек. Левую часть первого этажа занимают помещения дневной зоны. Справа от холла - гостевая спальня, кладовая и котельная с отдельным входом. Планировка не совсем обычная для нашего бюро. Главная спальня здесь на втором этаже (желание хозяев из-за вида на пейзаж). Но можно организовать ее и внизу, устроив вместо кладовки хозяйский санузел. На втором этаже - четыре жилых комнаты, просторная ванная и небольшой кабинет. Лестница двухмаршевая эргономичная. Главная спальня может быть дополнена кладовками под свесами кровли (серая заливка). Фундаменты выбираются исходя из гидрогеологических условий на участке строительства.
Перекрытия - монолитн
Оглавление

✅ Проект готовый, порядок заказа чертежей - на основном сайте

Дом в английском (или старо-дачном🤔) стиле , с выступающей вперед мансардой над террасой, эркером на боковом фасаде и двумя мансардными окошками на фасадах. Отделка - красный кирпич и белые декоративные детали у окон, дверей, кровли и колонн.

ПЛАН И ВНУТРЕННЕЕ ПРОСТРАНСТВО

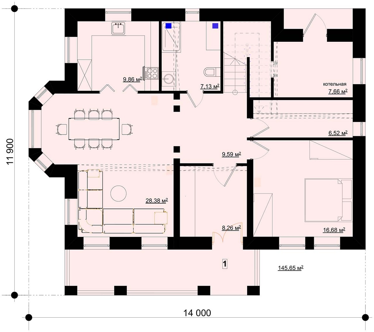
Дом рассчитан на проживание семьи из 3 - 6 человек. Левую часть первого этажа занимают помещения дневной зоны. Справа от холла - гостевая спальня, кладовая и котельная с отдельным входом.

Планировка не совсем обычная для нашего бюро. Главная спальня здесь на втором этаже (желание хозяев из-за вида на пейзаж). Но можно организовать ее и внизу, устроив вместо кладовки хозяйский санузел.

-2

На втором этаже - четыре жилых комнаты, просторная ванная и небольшой кабинет. Лестница двухмаршевая эргономичная. Главная спальня может быть дополнена кладовками под свесами кровли (серая заливка).

-3

КОНСТРУКТИВНЫЕ ОСОБЕННОСТИ

Фундаменты выбираются исходя из гидрогеологических условий на участке строительства.
Перекрытия - монолитные ж/б.
Наружные стены из поротерма-termo толщиной 440 мм с облицовкой кирпичом 80 мм, несущие колонны кирпичные.
Перегородки из поротерма толщиной 80 мм.
Кровля тёплая мансардная, вентилируемая, по деревянным балкам и стропилам. Покрытие кровли - мягкая черепица или металл (оцинкованная сталь, медь).

СОСТАВ ПРОЕКТА

Проект английского коттеджа разработан в составе двух разделов - паспорт (эскизный проект) для утверждения и получения разрешения на строительство, и СКР (АР+КР) для строительства и контроля над подрядчиком.

  • Заказать документацию можно на страничке проекта дома на сайте бюро ИНВАПОЛИС. Проект разработан в составе "Паспорт + строительный раздел"

► Чтобы не пропускать публикации, реагируйте лайком 👍 и подписывайтесь на канал, комментируйте.

► Получать обзоры наших проектов и следить за новостями и можно также в ТЕЛЕГРАММ-КАНАЛЕ (похоже он умер...) или МАКСе