Добавить в корзинуПозвонить
Найти в Дзене
DIVAN.RU

ДО/ПОСЛЕ: «хрущевка» 41 кв.м в стиле минимализм с винтажными деталями

Задача этого проекта — преобразить квартиру в доме 1961 года постройки, вдохнув в нее современное звучание. Смотрим, что получилось. Объект: двухкомнатная квартира 41,5 кв.м в районе Хамовники, г. Москва (потолки 2,67 м) Кто здесь живет: молодая пара с овчаркой Автор проекта: дизайнер Анастасия Заркуа, стилист Ольга Олейникова, автор фото Максим Максимов Квартира находится в доме 1961 года постройки. Перед началом работ устаревшая отделка была полностью демонтирована. В «хрущевке» сделали перепланировку: анфилада помогла решить проблему ограниченного пространства и низких потолков. Вход на кухню и в гостиную перенесли к балкону — симметричное расположение широких двустворчатых дверей визуально расширило площадь. Полы в комнатах выложили инженерной доской в технике «елочка». Чугунные батареи отреставрировали, стены выровняли и покрасили. Гостиная отличается обилием света и пространства благодаря широкому балконному блоку и светлой отделке. Вдоль стены напротив окна спроектировали систем
Оглавление

Задача этого проекта — преобразить квартиру в доме 1961 года постройки, вдохнув в нее современное звучание. Смотрим, что получилось.

Объект: двухкомнатная квартира 41,5 кв.м в районе Хамовники, г. Москва (потолки 2,67 м)

Кто здесь живет: молодая пара с овчаркой

Автор проекта: дизайнер Анастасия Заркуа, стилист Ольга Олейникова, автор фото Максим Максимов

Пожелания заказчиков

  • Современный интерьер с элементами стилистики мидсенчури.
  • Эргономичное пространство для жизни молодой семьи.

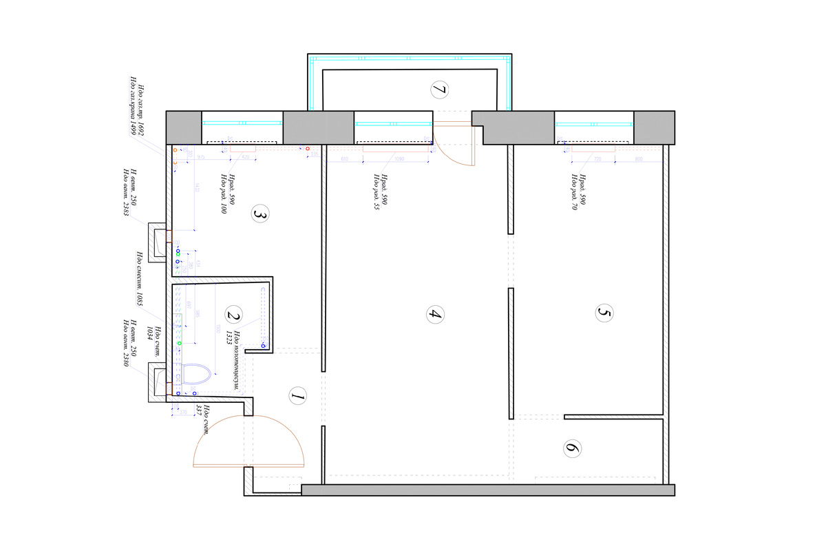
Планировочное решение

Квартира находится в доме 1961 года постройки. Перед началом работ устаревшая отделка была полностью демонтирована.

В «хрущевке» сделали перепланировку: анфилада помогла решить проблему ограниченного пространства и низких потолков. Вход на кухню и в гостиную перенесли к балкону — симметричное расположение широких двустворчатых дверей визуально расширило площадь.

Гостиная

Полы в комнатах выложили инженерной доской в технике «елочка». Чугунные батареи отреставрировали, стены выровняли и покрасили.

Гостиная ДО и ПОСЛЕ ремонта
Гостиная ДО и ПОСЛЕ ремонта

Гостиная отличается обилием света и пространства благодаря широкому балконному блоку и светлой отделке.

-4

Вдоль стены напротив окна спроектировали систему хранения. В центре комнаты — зона отдыха с диваном в ТВ-тумбой.

➡️Товары бренда divan.ru

Обеденная зона расположилась рядом с выходом на балкон, поскольку в маленькой кухне не хватало места для стола. Винтажные стулья отреставрировали и удачно вписали в современный дизайн.

-6

Балкон

Балкон, до ремонта обшитый вагонкой, разобрали, чтобы увеличить количество света в комнате. Пол выложили плиткой с принтом, а для летнего отдыха установили уличную мебель. Результат — уютная зона для времяпровождения в теплую погоду.

Спальня

У окна в комнате отдыха организовали рабочее место. Заказчики решили отказаться от шкафов в спальне, предпочтя хранение вещей в гардеробной, которая находится рядом с гостиной.

Спальня ДО и ПОСЛЕ ремонта
Спальня ДО и ПОСЛЕ ремонта
Желтая кровать Ситено от divan.ru — причина солнечного настроения в спальне. Цветовую гармонию поддерживают покрывало и выразительный гобелен на соседней стене.

➡️Товары бренда divan.ru

Кухня

Кухня ДО ремонта
Кухня ДО ремонта

Кухонный гарнитур был изготовлен по индивидуальному проекту. «Хотя при низких потолках часто думают о кухне до самого верха, это не всегда оптимальное решение, — рассказывает дизайнер. — В данном случае навесные шкафы стандартной высоты создают ощущение простора, при этом давая достаточно места для хранения».

Обратите внимание: персиковый оттенок фасадов нижнего яруса повторяется на затирке фартука и рисунке напольной плитки.

Прихожая

Прихожую зонировали плиткой с узором. Белый встроенный шкаф практически незаметен на фоне кремовых стен. Оригинальным штрихом стало зеркало ручной работы в раме с декором в виде улиток.

-12

За шторой спрятана прачечная с техникой для стирки и сушки белья.

Санузел

Санузел ДО ремонта
Санузел ДО ремонта

Несмотря на небольшие размеры санузла, здесь удалось эргономично разместить все нужное. Для установки раковины оптимальной ширины пришлось выбрать компактный унитаз и узкую инсталляцию.

==========

💥Планы на майские: нежиться и валяться... на новеньком диване от divan.ru💥 Минус 15% на популярные модели по промокоду РЕЛАКС — забирайте свою по ссылке >>

-16

==========

Оцените интерьер в комментариях, а если материал понравился — не забудьте поставить лайк👍

🖤divan.ru — не только блог про интерьеры, но и производитель доступной дизайнерской мебели. Ищите новые идеи и переходите на сайт, чтобы воплотить их в жизнь.