Найти Π² Π”Π·Π΅Π½Π΅
АртБтрой

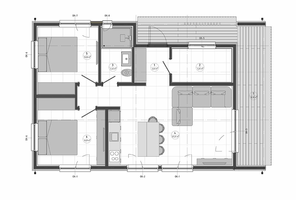
🏑 Π‘ΠΊΠΎΡ€ΠΎ стартуСм ΡΡ‚Ρ€ΠΎΠΈΡ‚Π΅Π»ΡŒΡΡ‚Π²ΠΎ Π΄ΠΎΠΌΠ° Π² ЛСнинградской области

Π Π°Π·ΠΌΠ΅Ρ€ Π΄ΠΎΠΌΠ° 11,9 Γ— 7,5 ΠΌ, общая ΠΏΠ»ΠΎΡ‰Π°Π΄ΡŒ 90 ΠΌΒ². ΠŸΠ»Π°Π½ΠΈΡ€ΠΎΠ²ΠΊΠ° ΠΏΡ€ΠΎΠ΄ΡƒΠΌΠ°Π½Π° для ΠΊΠΎΠΌΡ„ΠΎΡ€Ρ‚Π½ΠΎΠΉ ΠΆΠΈΠ·Π½ΠΈ: β–ͺ️ кухня-гостиная β–ͺ️ 2 спальни β–ͺ️ прихоТая β–ͺ️ ΠΊΠΎΡ‚Π΅Π»ΡŒΠ½Π°Ρ β–ͺ️ санузСл Π’Π°ΠΊΠΆΠ΅ Π² ΠΏΡ€ΠΎΠ΅ΠΊΡ‚Π΅ прСдусмотрСна просторная тСрраса 17 ΠΌΒ² - ΠΎΡ‚Π»ΠΈΡ‡Π½ΠΎΠ΅ мСсто для ΠΎΡ‚Π΄Ρ‹Ρ…Π° Π² Ρ‚Ρ‘ΠΏΠ»ΠΎΠ΅ врСмя Π³ΠΎΠ΄Π° β˜€οΈ πŸ’° Π‘Ρ‚ΠΎΠΈΠΌΠΎΡΡ‚ΡŒ Ρ‚Ρ‘ΠΏΠ»ΠΎΠ³ΠΎ ΠΊΠΎΠ½Ρ‚ΡƒΡ€Π° Π½Π° ΠΌΠΎΠ½ΠΎΠ»ΠΈΡ‚Π½ΠΎΠΌ Ρ„ΡƒΠ½Π΄Π°ΠΌΠ΅Π½Ρ‚Π΅ - ΠΎΡ‚ 5 258 000 β‚½ Π₯ΠΎΡ‚ΠΈΡ‚Π΅ ΡƒΠ·Π½Π°Ρ‚ΡŒ подробности ΠΏΠΎ ΠΊΠΎΠΌΠΏΠ»Π΅ΠΊΡ‚Π°Ρ†ΠΈΠΈ ΠΈ срокам ΡΡ‚Ρ€ΠΎΠΈΡ‚Π΅Π»ΡŒΡΡ‚Π²Π°? ΠŸΠΈΡˆΠΈΡ‚Π΅ Β«+Β» Π² коммСнтариях - ΠΎΡ‚ΠΏΡ€Π°Π²ΠΈΠΌ ΠΈΠ½Ρ„ΠΎΡ€ΠΌΠ°Ρ†ΠΈΡŽ Π² Π»ΠΈΡ‡Π½Ρ‹Π΅ сообщСния πŸ“©

🏑 Π‘ΠΊΠΎΡ€ΠΎ стартуСм ΡΡ‚Ρ€ΠΎΠΈΡ‚Π΅Π»ΡŒΡΡ‚Π²ΠΎ Π΄ΠΎΠΌΠ° Π² ЛСнинградской области

Π Π°Π·ΠΌΠ΅Ρ€ Π΄ΠΎΠΌΠ° 11,9 Γ— 7,5 ΠΌ,

общая ΠΏΠ»ΠΎΡ‰Π°Π΄ΡŒ 90 ΠΌΒ².

ΠŸΠ»Π°Π½ΠΈΡ€ΠΎΠ²ΠΊΠ° ΠΏΡ€ΠΎΠ΄ΡƒΠΌΠ°Π½Π° для ΠΊΠΎΠΌΡ„ΠΎΡ€Ρ‚Π½ΠΎΠΉ ΠΆΠΈΠ·Π½ΠΈ:

β–ͺ️ кухня-гостиная

β–ͺ️ 2 спальни

β–ͺ️ прихоТая

β–ͺ️ ΠΊΠΎΡ‚Π΅Π»ΡŒΠ½Π°Ρ

β–ͺ️ санузСл

Π’Π°ΠΊΠΆΠ΅ Π² ΠΏΡ€ΠΎΠ΅ΠΊΡ‚Π΅ прСдусмотрСна просторная тСрраса 17 ΠΌΒ² - ΠΎΡ‚Π»ΠΈΡ‡Π½ΠΎΠ΅ мСсто для ΠΎΡ‚Π΄Ρ‹Ρ…Π° Π² Ρ‚Ρ‘ΠΏΠ»ΠΎΠ΅ врСмя Π³ΠΎΠ΄Π° β˜€οΈ

πŸ’° Π‘Ρ‚ΠΎΠΈΠΌΠΎΡΡ‚ΡŒ Ρ‚Ρ‘ΠΏΠ»ΠΎΠ³ΠΎ ΠΊΠΎΠ½Ρ‚ΡƒΡ€Π° Π½Π° ΠΌΠΎΠ½ΠΎΠ»ΠΈΡ‚Π½ΠΎΠΌ Ρ„ΡƒΠ½Π΄Π°ΠΌΠ΅Π½Ρ‚Π΅ - ΠΎΡ‚ 5 258 000 β‚½

Π₯ΠΎΡ‚ΠΈΡ‚Π΅ ΡƒΠ·Π½Π°Ρ‚ΡŒ подробности ΠΏΠΎ ΠΊΠΎΠΌΠΏΠ»Π΅ΠΊΡ‚Π°Ρ†ΠΈΠΈ ΠΈ срокам ΡΡ‚Ρ€ΠΎΠΈΡ‚Π΅Π»ΡŒΡΡ‚Π²Π°?

ΠŸΠΈΡˆΠΈΡ‚Π΅ Β«+Β» Π² коммСнтариях - ΠΎΡ‚ΠΏΡ€Π°Π²ΠΈΠΌ ΠΈΠ½Ρ„ΠΎΡ€ΠΌΠ°Ρ†ΠΈΡŽ Π² Π»ΠΈΡ‡Π½Ρ‹Π΅ сообщСния πŸ“©

-2