Найти в Дзене
DIVAN.RU

Квартира для родителей: евротрешка 63 кв.м с природным акцентами

Заказчики приобрели и отремонтировали эту квартиру для родителей, переехавших сюда из загородного дома. Стремясь к природной атмосфере, супруги предпочли интерьер в натуральных тонах, с функциональной мебелью и минималистичным декором. Посмотрим ближе. Объект: евротрешка 63,2 кв.м в ЖК «Настоящее», г. Москва (потолки 3,11 м) Авторы проекта: дизайнеры Надежда Шишкова и Лидия Судиловская Молодая семья с ребенком — заказчики этого проекта — перевезла родителей из другого города в Москву. Активные и энергичные пенсионеры хотят оказывать помощь детям в уходе за внуком. Семьи живут в одном ЖК, но в разных корпусах, что позволяет сохранять баланс близости и дистанции. Планировка квартиры включает кухню-гостиную и две изолированные комнаты, одна из которых оборудована под спальню, а другая — под кабинет. Также есть раздельный санузел, Г-образный коридор, гардеробная и лоджия. В комнатах стены оклеены фактурными обоями, на полу — кварц-винил под дерево. Зона готовки оборудована П-образным гарни
Оглавление

Заказчики приобрели и отремонтировали эту квартиру для родителей, переехавших сюда из загородного дома. Стремясь к природной атмосфере, супруги предпочли интерьер в натуральных тонах, с функциональной мебелью и минималистичным декором. Посмотрим ближе.

Объект: евротрешка 63,2 кв.м в ЖК «Настоящее», г. Москва (потолки 3,11 м)

Авторы проекта: дизайнеры Надежда Шишкова и Лидия Судиловская

Молодая семья с ребенком — заказчики этого проекта — перевезла родителей из другого города в Москву. Активные и энергичные пенсионеры хотят оказывать помощь детям в уходе за внуком. Семьи живут в одном ЖК, но в разных корпусах, что позволяет сохранять баланс близости и дистанции.

Пожелания заказчиков

  • Создать атмосферу уюта и комфорта для жизни семейной пары.
  • Обеспечить достаточное количество мест для хранения вещей.

Планировочное решение

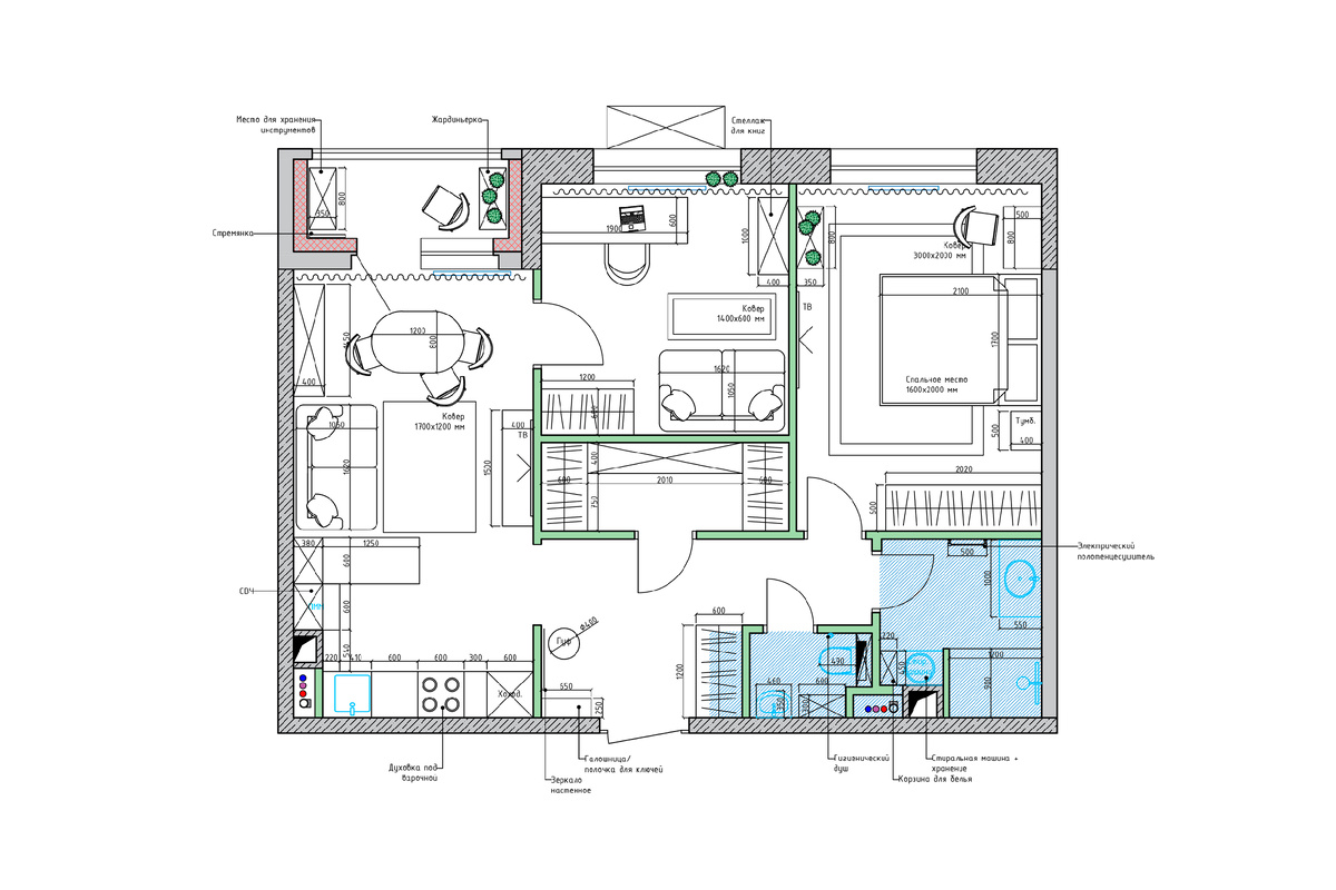
Планировка квартиры включает кухню-гостиную и две изолированные комнаты, одна из которых оборудована под спальню, а другая — под кабинет. Также есть раздельный санузел, Г-образный коридор, гардеробная и лоджия.

Планировочное решение и расстановка мебели
Планировочное решение и расстановка мебели

Кухня-гостиная

В комнатах стены оклеены фактурными обоями, на полу — кварц-винил под дерево.

Зона готовки оборудована П-образным гарнитуром с полуостровом. Вся техника (посудомоечная машина, СВЧ-печь, электрическая плита и духовой шкаф) встроена, кроме отдельно стоящего холодильника. Фасады гарнитура — МДФ в пленке, фартук — керамическая мозаика.

Обратите внимание: необычным гарнитур делает подвесной стеллаж под дерево, по ширине совпадающий с полуостровом.

divan.ru стал нашим основным поставщиком мебели. Мы приобрели у них диваны для гостиной и кабинета, комод, шкафы для кабинета и спальни, а также столик и подвесную консоль. Благодаря широкому ассортименту магазина, мы смогли закрыть все мебельные потребности и полностью обставить квартиру.
-4

➡️Товары бренда divan.ru

Прием: любовь мамы заказчика к готовке отражена в необычных подушках в форме пельменей.

Природная иконцепция интерьера выгодно подчеркивается объемным “растительным” декором комода Модерн от divan.ru.
Комод Модерн divan.ru
Комод Модерн divan.ru

Спальня

«Спальню оформили с зелеными акцентами, как просили заказчики, — отмечают дизайнеры. — Яркой ее сделали текстиль (обивка кровати, шторы, ковер, плед) и комплементарный спокойно-оранжевый столик Бренда от divan.ru.

Роль туалетного столика с зеркалом исполнила подвесная консоль Ивейн. Для мамы заказчика, любящей цветы, напротив поставили этажерку с ее домашними растениями».

«Когда я готовила к фотосессии кровать, возникла проблема с декором. Изначально хотела использовать зеленый раннер, но не успела найти. В итоге, заменила его обычной шторой. Заказчикам понравилось, и мы оставили штору, просто убрав лишнюю ленту».

➡️Товары бренда divan.ru

Кабинет

Это кабинет, который легко трансформируется в гостевую комнату. Здесь предусмотрен раскладной диван Массе и шкаф Монмарт от divan.ru с жалюзийными фасадами. Дополняют обстановку рабочий стол и стеллаж.

➡️Товары бренда divan.ru

Учитывая, что мама заказчика — бывший фармацевт, мы решили использовать настоящие медицинские колбы в качестве ваз.
-9

Прихожая

Акцентная стена из деревянных 3D-панелей стала креативным решением в прихожей. «В светлых интерьерах фактура необходима, чтобы избежать плоскости и скуки, — отмечают дизайнеры. — Несмотря на первоначальные сомнения прораба относительно трудоемкости работы с мелкими гексагонами, эффект получился великолепным и покорил всех, включая его самого».

В прихожей стоит шкаф до потолка. Там же находятся тумбочка и напольное ростовое зеркало.

Ванная и туалет

Санузел в квартире раздельный. Ванная комната оборудована душевой кабиной, тумбой с раковиной и шкафом, в котором находится стиральная машина. «Мы стремились создать атмосферу природной гармонии, — комментируют дизайнеры. — Для этого одну из стен облицевали натуральной галькой, закрепленной на сетке. После монтажа сетки швы между камнями были затерты. Уход за такой поверхностью прост: достаточно протирать ее влажной тканью, при необходимости с добавлением мыльного раствора».

-11

Санузел оснащен раковиной и унитазом карамельного цвета. Для деревянного стеллажа была выбрана простая деревянная столешница. Ее обрезали до нужных размеров и покрыли маслом, подобрав идеальный оттенок.

💥Больше выгоды в divan.ru на покупки с промокодами:

-5000₽ на заказ от 75 000₽ с ДАРИМ5 | -15 000₽ на заказ от 150 000₽ с ДАРИМ15

-13

============================

Оцените интерьер в комментариях, а если материал понравился — не забудьте поставить лайк👍

🖤divan.ru — не только блог про интерьеры, но и производитель доступной дизайнерской мебели. Ищите новые идеи и переходите на сайт, чтобы воплотить их в жизнь.