Найти в Дзене
Сканди | Интерьер

Купил унылую однушку на последние деньги. И вот что сделал с ней — до и после

Нужно иметь достаточно смелости, чтобы взяться за ремонт квартиры в старом фонде. Устаревшие планировки, тесные комнаты, ветхие трубы — и это лишь малая часть проблем, которые придется решать собственнику на пути к идеальному интерьеру. Но усилия окупаются. И пример тому — история казахстанского фотографа Олега Зуева, который купил однушку с «бабушкиным» ремонтом и превратил ее в уютное жилье. Так выглядит дом, в котором Олег Зуев купил квартиру. — Эту квартиру я купил в 2021 году. Мне было 25 лет. Цены еще не подлетели вверх, поэтому удалось купить без кредита и ипотеки. Взял в убитом состоянии, ремонт делал для себя, — делится своим опытом Олег Зуев. Олег признается, что купил однушку в сталинке не из-за великой любви к старому фонду. Бюджет на покупку жилья был ограничен: он даже рассматривал квартиру в бывшем общежитии, но его отпугнули асоциальные соседи и неотремонтированный подъезд. Сталинка же находилась в хорошем зеленом районе неподалеку от центра. Квартира, которую купил Оле
Оглавление

Нужно иметь достаточно смелости, чтобы взяться за ремонт квартиры в старом фонде. Устаревшие планировки, тесные комнаты, ветхие трубы — и это лишь малая часть проблем, которые придется решать собственнику на пути к идеальному интерьеру. Но усилия окупаются.

И пример тому — история казахстанского фотографа Олега Зуева, который купил однушку с «бабушкиным» ремонтом и превратил ее в уютное жилье.

Так выглядит дом, в котором Олег Зуев купил квартиру.

Детали проекта

  • Локация: центр Алма-Аты.
  • Тип жилья: трехэтажная сталинка 1947 года постройки.
  • Площадь: 28 квадратных метров.
  • Высота потолков: 2,75 метров.
  • Проживают: 1 человек.
  • Ремонт: сканди с элементами ретро.

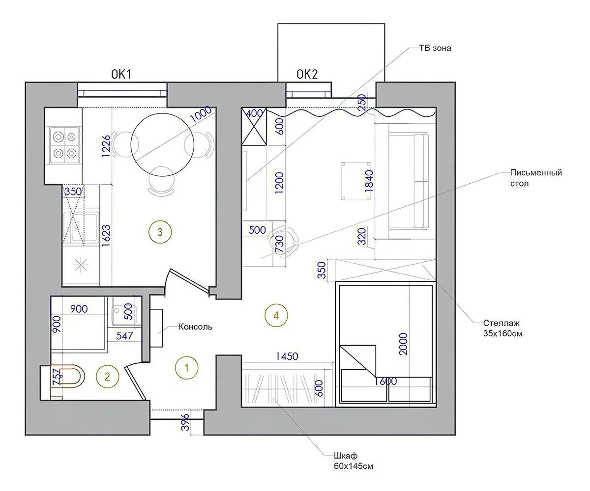
Планировка квартиры:

-2

— Эту квартиру я купил в 2021 году. Мне было 25 лет. Цены еще не подлетели вверх, поэтому удалось купить без кредита и ипотеки. Взял в убитом состоянии, ремонт делал для себя, — делится своим опытом Олег Зуев.

Олег признается, что купил однушку в сталинке не из-за великой любви к старому фонду. Бюджет на покупку жилья был ограничен: он даже рассматривал квартиру в бывшем общежитии, но его отпугнули асоциальные соседи и неотремонтированный подъезд. Сталинка же находилась в хорошем зеленом районе неподалеку от центра.

До ремонта. Честные фото

Квартира, которую купил Олег Зуев, довольно небольшая — всего одна жилая комната, крошечная прихожая, совмещенный санузел и компактная кухня. Есть маленький открытый балкон с видом на зеленый двор.

-3

Здесь много лет не делали ремонт.

Советская мебель, покрашенные коричневой краской полы, типовая «больничная» плитка на кухне и старая сантехника отпугивали, но новый хозяин сумел разглядеть большой потенциал в этой однушке.

Большие окна, солнечная сторона, хороший вид из окна, порядочные соседи и хорошая локация перевешивали все интерьерные минусы.

-4
-5
-6
-7

Эти фотографии сделаны уже в процессе демонтажа старых конструкций и покрытий:

-8

После ремонта: что переделали в жилой комнате

Единственная жилая комната функционально поделена на три части — рабочее место с письменным столом, зона отдыха с двухместным диваном и телевизором, зона спальни с кроватью и вместительным шкафом для хранения одежды.

-9

Украшением этой комнаты стала винтажная мебель. Олег Зуев доказал, что реставрация советской мебели своими руками — это тренд, который делает интерьер уникальным.

Здесь можно увидеть отреставрированный письменный стол 1960 года и румынскую тумбу, привезенную из Бишкека. Интересный факт: до реставрации и переделки тумба была туалетным столиком.

«Я еще не видел человека, который бы пожалел, что остановил свой выбор на винтажных сокровищах вместо современной мебели из ЛДСП», — говорит Олег Зуев.

При этом ретро-мебель гармонично соседствует с современными предметами. Например, полка над письменным столом из детского отдела Zara Home.

-10

На балконе (иногда в прихожей) почти всегда припаркован японский ретро-велосипед. И он выглядит так стильно, что ощущается деталью интерьера.

-11

Двухместный диван при необходимости раскладывается и превращается в дополнительное спальное место на случай, если гости задержатся на ночь.

Винтажный туркменский ковер удалось найти на барахолке.

Интересная деталь в интерьере: черная линия на шторах продолжается на стене. Этот переход позволил визуально в

-12

Так выглядит зона спальни. Здесь стоит полноценная двуспальная кровать и установлен шкаф-купе с зеркальными фасадами, которые отражают солнечный свет и визуально расширяют небольшое пространство.

-13

Винтажные стулья (всего их три — два на кухне и один у письменного стола) Олег Зуев реставрировал самостоятельно вместе с родителями.

Топ-3 решения для маленькой кухни в старом фонде: что придумал хозяин

-14

Кухня — самая впечатляющая комната в этой небольшой квартире. Здесь есть несколько интересных интерьерных решений, которые Олег Зуев придумал вместе с дизайнером Лейлой Берсановой.

1. Акцентный потолок терракотового цвета — одна из главных фишек этой сталинской кухни. Окна квартиры выходят на южную сторону, поэтому цветной потолок оказался уместным. Здесь всегда светло и солнечно. Верхние фасады также частично окрашены в этот оттенок.

«Не бойтесь темные оттенков. Вечером вообще создается ощущение, что потолок уходит в бесконечность. Белые потолки порой сильнее давят на подсознание, чем этот», — делится хозяин квартиры.

2. Стильные черные оконные рамы еще одна колоритная деталь, которая бросается в глаза. Рамы были покрыты специальной темной пленкой еще на заводе при производстве.

3. Белый фартук с необычным орнаментом. Плитки наклеены хаотично, поэтому орнамент не создает цельной картины.

«Мне хотелось внести диссонанс в аккуратный интерьер кухни», — объясняет свою задумку Олег Зуев.
-15

— Для такой крошечной квартиры тут довольно большая кухня, — подмечает хозяин однушки. — Если бы здесь не было несущей стены, то, возможно, мы бы уменьшили площадь кухни в пользу единственной комнаты.

-16

Совмещенный санузел. Как его переделали?

Санузел и ванную комнату оставили совмещенными. Такой формат оказался максимально удобным и комфортным для хозяина этой однушки.

Вместо ванны сделали душ, который оформили в терракотовом цвете. А под раковиной установили узкую стиральную машину.

-17

В помещении использовано два вида плитки.

-18

За зеркалом на стене организовано место для хранения бытовой химии и средств личной гигиены.

-19

Во время ремонта в квартире поменяли абсолютно все. В том числе, установили межкомнатные двери от российской фабрики.

На них пришлось раскошелиться: за две двери и один дверной проем, включая ручки/петли и установку, Олег Зуев заплатил около 90 тысяч рублей (такие цены были актуальны на момент ремонта квартиры).

Для прихожей выбрали терракотовый цвет — такой же, как для кухонного потолка. Этот оттенок идеально подошел к бирюзовым дверям.

Вдоль стены между санузлом и кухней удалось разместить деревянный стеллаж, где хранятся книги, журналы и декор.

-20

Ремонт квартиры обошелся в 1 миллион 700 тысяч рублей.

— В этой квартире я живу уже пятый год. Абсолютно все устраивает. Ни одна деталь не надоела за это время, — говорит Олег Зуев.

5 советов от Олега

Хозяин этой однушки честно признается: у него нет типового решения, которое можно было бы масштабировать на другие малогабаритные квартиры. Но для себя он выделил несколько ключевых пунктов, на которые опирался при выборе планировки:

  1. Обязательно нужна полноценная двуспальная кровать (раскладывающиеся диваны тоже удобны, но подойдут не для всех).
  2. Нужно выделить место для работы за ноутбуком и онлайн-созвонов с коллегами.
  3. Предусмотреть возможность дополнительного спального места для третьего гостя, либо детей (если в гости приедут брат/сестра с племянниками и останутся ночевать).
  4. Необходима полноценная, компактная и функциональная кухня.
  5. Очень важно создать большое количество зон хранения, потому что вещей много не бывает — и их нужно куда-то девать.

У меня есть еще 3 интересных статьи. Почитайте!

🔥 Мужчина честно показал свою однушку в Мурино. Как он живет — посмотрите 15 фото.

😱 Из «убитой» сталинки сделали роскошную квартиру. Фото ДО и ПОСЛЕ.

👍 Мужчина сделал из бетонной коробки идеальную квартиру (на ремонт ушло 700 тысяч). Хотели бы жить так же?