Добавить в корзинуПозвонить
Найти в Дзене

ВЕНЁВ 236 м2- проект дома в русском стиле с мезонином и террасой

✅ Проект готовый, условия заказа чертежей - на основном сайте Дом стилизован под небольшой городской особняк 18-19 веков, и может быть использован в качестве главного дома небольшой усадьбы или встроиться в улочку уездного городка. ✔️ Все проекты для русской усадьбы можно посмотреть в подборке 👇 Планировка дома обеспечивает правильное функциональное зонирование помещений и комфортное безконфликтное пребывание всех жильцов. Общие помещения расположены справа от входа и представлены гостиной с камином, и совмещенной с ней столовой и кухней. Общие комнаты продолжены большой террасой, протянувшейся вдоль бокового фасада. Середина дома - просторная прихожая, холл с красивой интерьерной лестницей и хозяйственные помещения. Две детских выделены в блок по левую сторону от входа. Мезонин отдан личным комнатам, здесь спальня и кабинет хозяев, санузел и три кладовых или гардеробных под скатами кровли. Фундаменты - плита основания. Перекрытия - монолитные. Наружные стены из поротерма 380 мм с обл
Оглавление

✅ Проект готовый, условия заказа чертежей - на основном сайте

Дом стилизован под небольшой городской особняк 18-19 веков, и может быть использован в качестве главного дома небольшой усадьбы или встроиться в улочку уездного городка.

✔️ Все проекты для русской усадьбы можно посмотреть в подборке 👇

Конструктор русской усадьбы МЕЗОНИН | Инваполис - проекты рациональных домов | Дзен

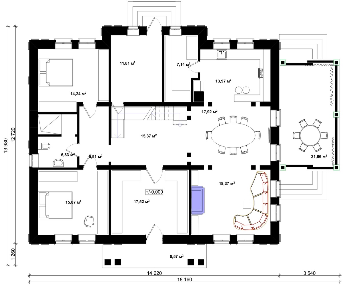
ПЛАН И ВНУТРЕННЕЕ ПРОСТРАНСТВО

Планировка дома обеспечивает правильное функциональное зонирование помещений и комфортное безконфликтное пребывание всех жильцов. Общие помещения расположены справа от входа и представлены гостиной с камином, и совмещенной с ней столовой и кухней. Общие комнаты продолжены большой террасой, протянувшейся вдоль бокового фасада. Середина дома - просторная прихожая, холл с красивой интерьерной лестницей и хозяйственные помещения. Две детских выделены в блок по левую сторону от входа.

-2

Мезонин отдан личным комнатам, здесь спальня и кабинет хозяев, санузел и три кладовых или гардеробных под скатами кровли.

-3

КОНСТРУКТИВНЫЕ ОСОБЕННОСТИ

Фундаменты - плита основания. Перекрытия - монолитные. Наружные стены из поротерма 380 мм с облицовкой, внутренние стены и колонны кирпичные. Чердачное перекрытие над мезонином холодное деревянное. Кровля по деревянным балкам и стропилам, тёплая. Терраса остеклена, несущие конструкции - деревянные.

  • Заказать документацию можно на страничке проекта дома на сайте бюро ИНВАПОЛИС. Проект разработан в составе "Паспорт + строительный раздел"

► Чтобы не пропускать публикации, реагируйте лайком 👍 и подписывайтесь на канал, комментируйте, тогда нейросети будут показывать нас вам чаще :)

► Получать обзоры наших проектов и следить за новостями и можно также в ТЕЛЕГРАММ-КАНАЛЕ  или МАКСе ИНВАПОЛИС