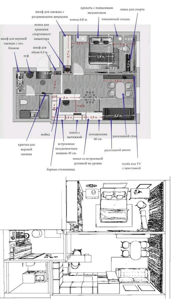
👩🎓👩🎓👩🎓 Как рождается удобный дом. От унитаза в шкафу до идеальной планировки Нейросеть Krea.ai нарисовала красивую картинку, но в гостиной стоит унитаз. Смешно? Да, если не вы тратите деньги на такой «дизайн». Эта ошибка не случайность. Нейросеть не понимает функций вещей. Она не знает, что шкафчиком на кухне нужно пользоваться, не догадается, что вытяжка нужна, чтобы запахи от готовки не пропитали диван, не спросит, где удобнее делать фото при естественном свете, не проверит, пройдёт ли человек, когда за столом сидят гости. Расскажу, как на самом деле создаётся планировка, в которой удобно жить на примере того же эскизного проекта. Есть только один рабочий способ для создания планировки: прожить жизнь заказчиков на плане. В итоге из трех разработанных вариантов расстановки мебели мы вместе выбрали лучший. Вот что было учтено в финальном плане и что проигнорировала нейросеть: 🚪 Прихожая: ✔️ Глубокий шкаф (60 см) Не только для верхней одежды, но и для хознужд, пылесоса,
