Добавить в корзинуПозвонить
Найти в Дзене

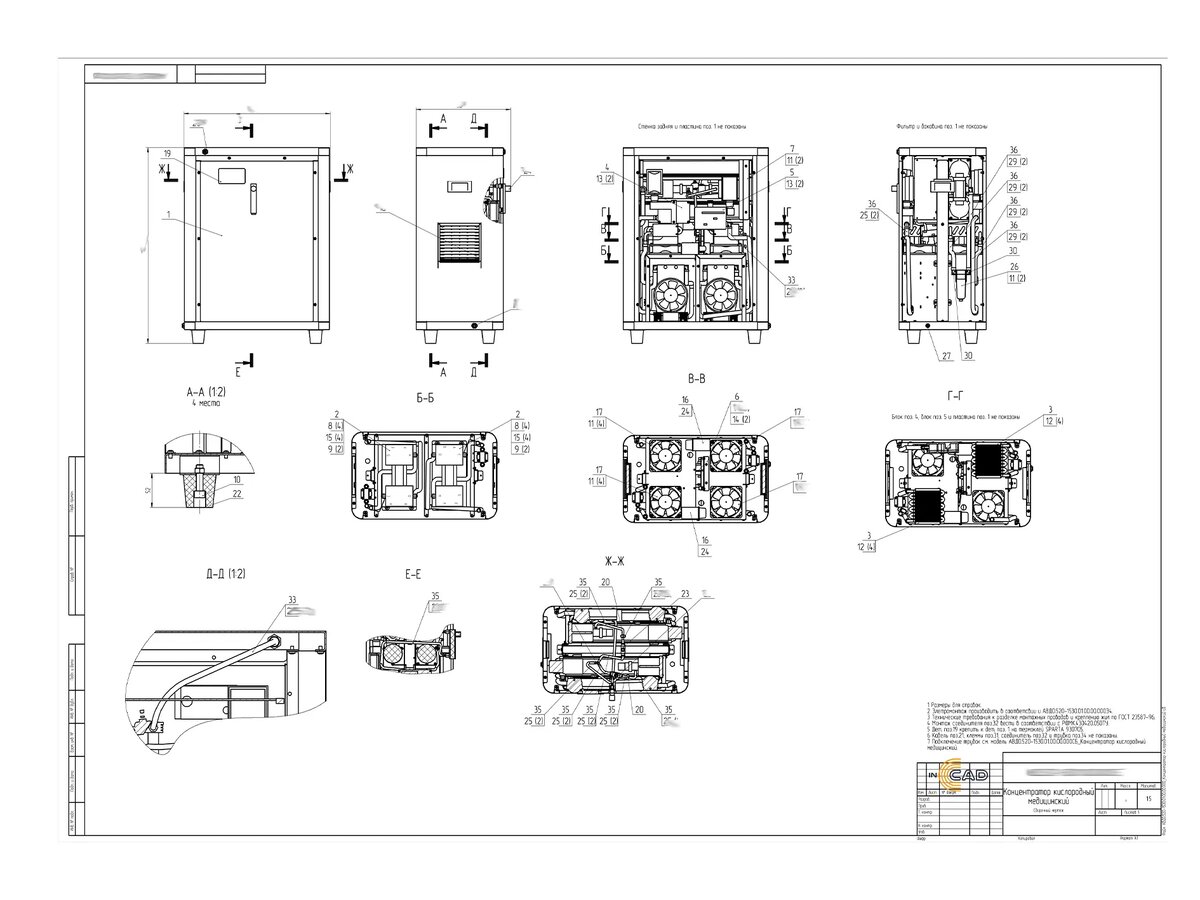
Обратное проектирование кислородного концентратора

В этом проекте объектом обратного проектирования стал медицинский прибор - кислородный концентратор. Он предназначен для извлечения кислорода из окружающего воздуха и его очистки. Перед нами стояла задача разработка провести обратное проектирование, разработать конструкторскую и технологическую документацию для производства аналогичных аппаратов. И косвенная задача - подготовить комплект документов по ГОСТ для сертификации концентратора в ТПП. ✅ В ходе работы выполнено: По результатам вышеуказанных работ заказчик получил требующийся результат. ✅ Конструкторскую документацию в составе: ✅ Технологическую документацию в составе: Данный проект по обратному проектированию медицинского кислородного концентратора наглядно показывает этапы и полноту процесса. Подробнее работа над проектом описана в нашем портфолио. Вы можете оставить заявка на аналогичный проект прямо сейчас 📩

В этом проекте объектом обратного проектирования стал медицинский прибор - кислородный концентратор. Он предназначен для извлечения кислорода из окружающего воздуха и его очистки.

Перед нами стояла задача разработка провести обратное проектирование, разработать конструкторскую и технологическую документацию для производства аналогичных аппаратов. И косвенная задача - подготовить комплект документов по ГОСТ для сертификации концентратора в ТПП.

В ходе работы выполнено:

  1. Разбор изделия на узлы и детали с фиксацией последовательности сборки;
  2. Отстройка 3D-моделей каждой детали и сборочной модели концентратора;
  3. Подбор и согласование покупных компонентов;
  4. Подбор материалов деталей;
  5. Разработка конструкторской документации;
  6. Разработка технологической документации.

По результатам вышеуказанных работ заказчик получил требующийся результат.

✅ Конструкторскую документацию в составе:

  1. Спецификация
  2. Сборочный чертеж
  3. Ведомость покупных изделий
  4. Схема электрическая соединений
  5. 3D-модель

✅ Технологическую документацию в составе:

  1. Технологическая инструкция по сборке изделия
  2. Маршрутные карты на изготовление деталей

Данный проект по обратному проектированию медицинского кислородного концентратора наглядно показывает этапы и полноту процесса. Подробнее работа над проектом описана в нашем портфолио.

Вы можете оставить заявка на аналогичный проект прямо сейчас 📩