Найти в Дзене
ЭВАстрой

Проект одноэтажного дома из газобетона в стиле минимализм - 106-26 (П84.1)

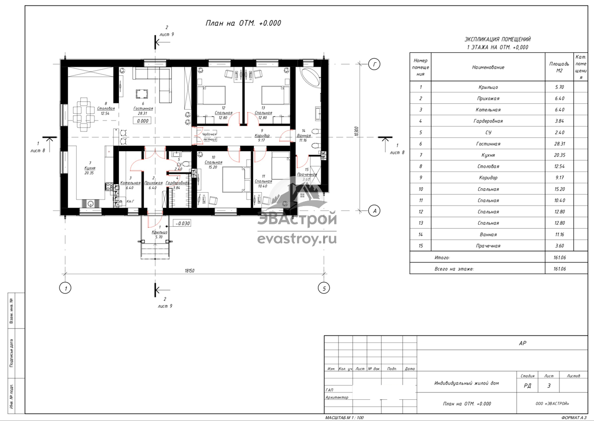
Номер проекта: 106-26 (П84.1) Разделы проекта: Архитектурный и Конструктивный разделы Узнать о проекте больше можно на сайте evastroy.ru или по телефону +7 (495) 175-30-40 Семье из трех-четырех человек предлагаем проект одноуровневого коттеджа общей площадью 172 м2. Дом выполнен в стиле минимализм. Состав: 4 спальни, гостиная, столовая, кухня, санузел, ванная, прачечная, котельная, гардеробная, прихожая. Отличительные особенности: одноэтажная конструкция, удобная для проживания людей всех возрастов; сдержанная лаконичная отделка, благодаря которой здание только выигрывает; возможность строительства на узком участке (габариты дома — 18.6 x 10.7 м); отдельная прачечная. Входной блок состоит из прихожей, с доступом в котельную, санузел и гардеробную. Из прихожей выходим сразу в гостиную, оттуда попадаем в столовую и далее на просторную П-образную кухню. Приватная часть отделена от гостиной двустворчатой дверью и, таким образом, полностью закрыта от посторонних глаз. Здесь находятся спальн
Номер проекта: 106-26 (П84.1)
Разделы проекта: Архитектурный и Конструктивный разделы
Узнать о проекте больше можно на сайте evastroy.ru или по телефону
+7 (495) 175-30-40
  • Общая площадь: 172 м2;
  • Габариты дома: 18.6 x 10.7 м;
  • Этажность: 1;
  • Фундамент: Ж/Б плита;
  • Материал стен: газобетонные блоки 375 мм;
  • Перекрытия: монолитное ж/б;
  • Крыша: чердак;
  • Кровля: битумная черепица;
  • Фасад: декоративная штукатурка;
  • Стиль: минимализм.

Семье из трех-четырех человек предлагаем проект одноуровневого коттеджа общей площадью 172 м2. Дом выполнен в стиле минимализм. Состав: 4 спальни, гостиная, столовая, кухня, санузел, ванная, прачечная, котельная, гардеробная, прихожая. Отличительные особенности: одноэтажная конструкция, удобная для проживания людей всех возрастов; сдержанная лаконичная отделка, благодаря которой здание только выигрывает; возможность строительства на узком участке (габариты дома — 18.6 x 10.7 м); отдельная прачечная.

-2

Входной блок состоит из прихожей, с доступом в котельную, санузел и гардеробную. Из прихожей выходим сразу в гостиную, оттуда попадаем в столовую и далее на просторную П-образную кухню. Приватная часть отделена от гостиной двустворчатой дверью и, таким образом, полностью закрыта от посторонних глаз. Здесь находятся спальни — родительская и три детских. Комнаты укомплектованы спальными и рабочими местами, в главной спальне возможен настенный телевизор. Комнату 10,4 м2, расположенную по соседству с родительской, можно использовать как кабинет. В конце коридора — ванная: она имеет необычную продолговатую форму и граничит с компактной прачечной.

Строение возводится из газобетонных блоков 375, на ж/б фундаментной плите, с монолитными ж/б перекрытиями. Для фасадной отделки использована серо-голубая декоративная штукатурка, в тон ей подобрана битумная черепица кровли. Архитектурный ансамбль продолжает ограда, колонны которой оформлены в единой цветовой гамме с домом. Вход расположен на садовом фасаде и представляет собой компактное крыльцо с крестовым ограждением и двускатной крышей.

Проект одноэтажного дома из газобетона в стиле минимализм

Подробнее с проектом можно ознакомиться на сайте evastroy.ru