Найти в Дзене
KPD Дизайн Интерьера

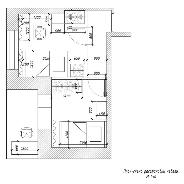
Что входит в смарт-планировку

Вы получаете: — План с расстановкой мебели и её габаритами — План с размерами перегородок — Логику зонирования — Документ в PDF, который понимает строитель Вы можете: — заказать мебель по этим размерам — отдать план бригаде — быть уверенными, что всё встанет Это не «эскиз». Это рабочий инструмент. Трости и гвозди

Что входит в смарт-планировку

Вы получаете:

— План с расстановкой мебели и её габаритами

— План с размерами перегородок

— Логику зонирования

— Документ в PDF, который понимает строитель

Вы можете:

— заказать мебель по этим размерам

— отдать план бригаде

— быть уверенными, что всё встанет

Это не «эскиз».

Это рабочий инструмент.

Трости и гвозди