Добавить в корзинуПозвонить
Найти в Дзене
Инженерка

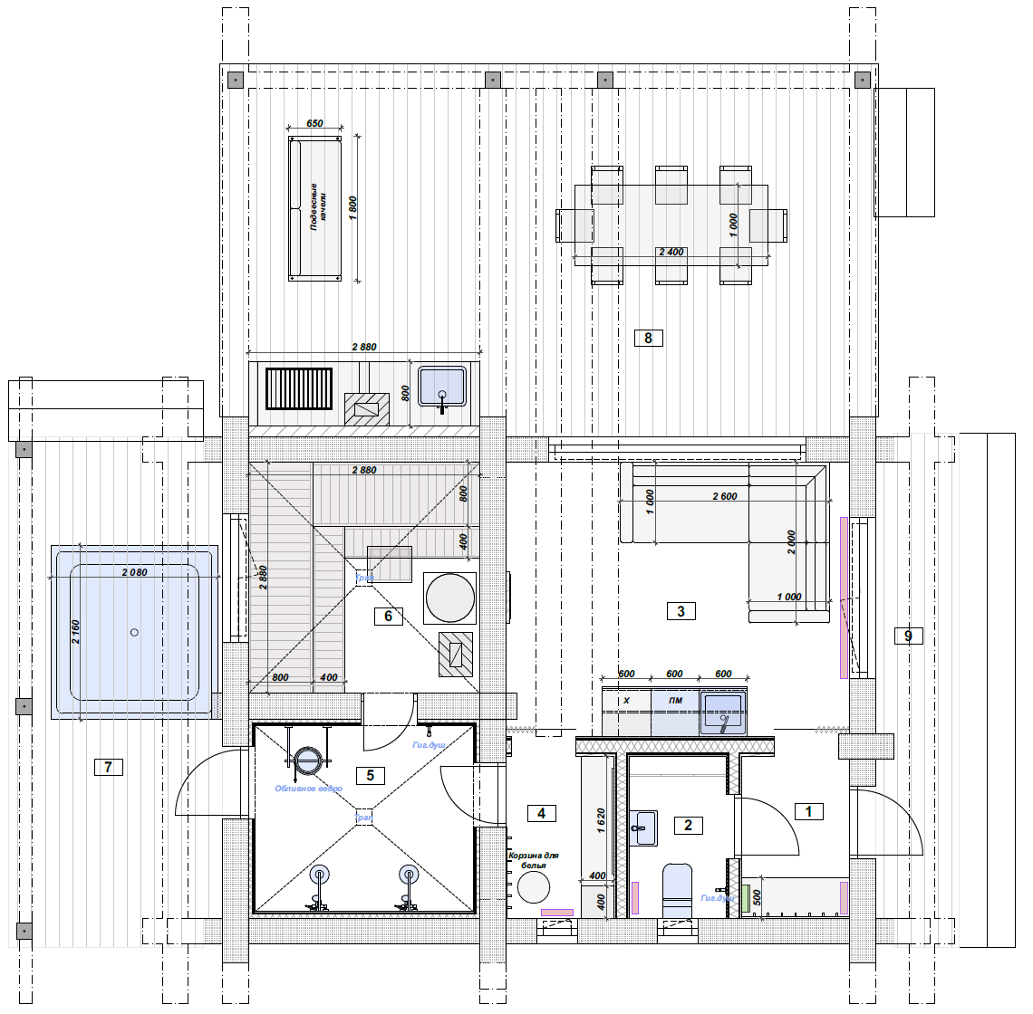
Проект Инженерки_03/26. Баня с комнатой отдыха и террасой.

Баня, где всё прекрасно! Парная, просторная душевая с 2-мя душами, обливочным ведром. Комната отдыха с панорамными окнами, терраса с джакузи и зоной барбекю. Ввод коммуникаций (теплотрасса) Quadro : отопление и ГВС и рециркуляцией, холодная вода и канализация так же заведены. Плита уже залита. Необходимо сделать Учитывая, что теплотрасса и холодная вода были выведены в месте установки перегородки (каркасная 250мм), было решено над шкафом ШРВ с отоплением установить лючок для доступа к воде и канализации. Коллектор радиаторного отопления снабжен сервоприводами, управляемыми автоматикой (комнатные термостаты или удаленное управление через Wi-Fi), на конец коллектора монтируется узел автономной циркуляции теплого пола и коллектор с расходомерами. Ветки теплого пола так же снабжены сервоприводами для зонального управления нагревом. Циркуляционный насос на узле Grundfoss Alpha 2 25-60-180 или аналог. Теплый пол во всех помещениях, над ним керамика (плитка или керамогранит). Шаг везде 150м
Оглавление

Баня, где всё прекрасно! Парная, просторная душевая с 2-мя душами, обливочным ведром. Комната отдыха с панорамными окнами, терраса с джакузи и зоной барбекю.

ТЗ и исходники.

Ввод коммуникаций (теплотрасса) Quadro : отопление и ГВС и рециркуляцией, холодная вода и канализация так же заведены. Плита уже залита.

Необходимо сделать

  • отопление: основное теплый пол, радиаторы на сильные холода,
  • водоснабжение с рециркуляцией ГВС и незамерзающими кранами ХВС и ГВС на террасе.
  • само собой - канализацию.

Ввод коммуникаций.

Учитывая, что теплотрасса и холодная вода были выведены в месте установки перегородки (каркасная 250мм), было решено над шкафом ШРВ с отоплением установить лючок для доступа к воде и канализации.

Коллектор радиаторного отопления снабжен сервоприводами, управляемыми автоматикой (комнатные термостаты или удаленное управление через Wi-Fi), на конец коллектора монтируется узел автономной циркуляции теплого пола и коллектор с расходомерами. Ветки теплого пола так же снабжены сервоприводами для зонального управления нагревом. Циркуляционный насос на узле Grundfoss Alpha 2 25-60-180 или аналог.

Теплые полы.

Теплый пол во всех помещениях, над ним керамика (плитка или керамогранит). Шаг везде 150мм, ветки короткие - 42-48м. Всё рассчитано на быстрый разогрев с +10-12 до 22-25.

Трубы теплого пола из сшитого полиэтилена PEX-a, 16х2,0мм, я ставлю Stout, так как работал с ним достаточно долго. Коллекторы теплого пола и радиаторов любые.

Радиаторное отопление.

В системе 5 стальных трубчатых радиаторов с нижним подключением Рифар Тубог. Термоголовки на радиаторах заменены сервоприводами на коллекторе, дабы внешний вид не портить и автоматизировать всё, конечно.

Водоснабжение.

Разводка водоснабжения принята "тройниковая", без коллекторов в угоду дизайну и экономии места. Есть у такой системы и плюсы - нет застоя воды и протухания (в первую очередь речь о холодной воде).

Умывальник на террасе подключен к незамерзающим кранам горячего и холодного водоснабжения. Под обливочное ведро выведена водорозетка холодной воды.

Канализация.

Выпуски канализации были сделаны в плите. Логичнее было бы вместо напольного использовать подвесной унитаз и в зашитую стенку скрыть фановый стояк и ревизию.

Он дизайн потребовал иного. Пришлось тянуть лежак канализации до единственной перегородки и прятать в неё.

Если Вам интересно, мы занимаемся проектированием отопления и водоснабжения с канализацией в загородных домах. Приходите на канал в Телеграмме и в МАКСЕ.