Добавить в корзинуПозвонить
Найти в Дзене

Проект дома в Европейском стиле DTE-37

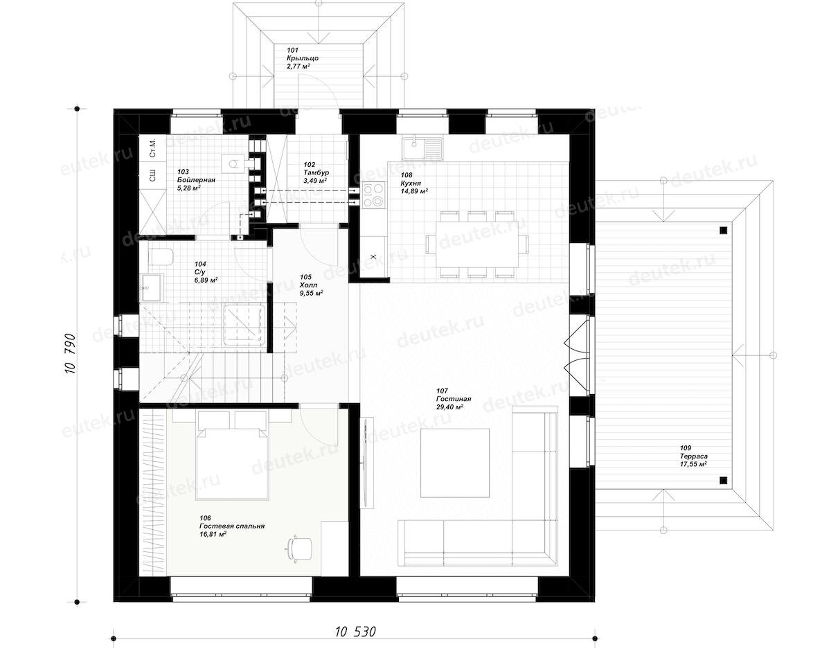
Номер проекта: DTE-37 Разделы проекта: Архитектурный и Конструктивный разделы Заказать проект можно на сайте deutek.ru или по телефону +7 (495) 175-30-40 Другие проекты можете посмотреть в этом разделе https://zen.yandex.ru/proektirovaniedomov Если вы любите светлые интерьеры и панорамные окна во всю стену, значит, этот проект — для вас! Двухэтажный мансардный дом в яркой отделке дарит будущим хозяевам четыре светлые спальни, просторную гостиную, удобную крытую террасу и большой балкон. Общая площадь коттеджа 195 м2, габариты 10.53 x 10.79 м. Представленная планировка — отличный пример сочетания рациональности и уюта. У входа расположен тамбур с встроенным гардеробным шкафом, бойлерная-постирочная и кухня, открытая в гостиную. Из холла мы можем пройти в санузел, а оттуда в бойлерную. В конце холла находится гостевая спальня с широким окном, выходящим на главный двор. Обстановку комнаты составляют двуспальная кровать, большой гардеробный шкаф и письменный стол. С гостиной холл связан ши
Номер проекта: DTE-37
Разделы проекта: Архитектурный и Конструктивный разделы
Заказать проект можно на сайте deutek.ru или по телефону
+7 (495) 175-30-40
Другие проекты можете посмотреть в этом разделе
https://zen.yandex.ru/proektirovaniedomov
  • Общая площадь: 195.25 м2;
  • Габариты дома: 10.53 x 10.79 м;
  • Этажность: 2 (вкл. мансардный);
  • Фундамент: монолитный ж/б плита (УШП);
  • Материал стен: керамический блок 440 мм;
  • Перекрытия: по деревянным балкам;
  • Крыша: мансардная;
  • Кровля: металлочерепица;
  • Фасад: облицовка кирпичом;
  • Стиль: европейский.

Если вы любите светлые интерьеры и панорамные окна во всю стену, значит, этот проект — для вас! Двухэтажный мансардный дом в яркой отделке дарит будущим хозяевам четыре светлые спальни, просторную гостиную, удобную крытую террасу и большой балкон. Общая площадь коттеджа 195 м2, габариты 10.53 x 10.79 м.

-2

Представленная планировка — отличный пример сочетания рациональности и уюта. У входа расположен тамбур с встроенным гардеробным шкафом, бойлерная-постирочная и кухня, открытая в гостиную. Из холла мы можем пройти в санузел, а оттуда в бойлерную. В конце холла находится гостевая спальня с широким окном, выходящим на главный двор. Обстановку комнаты составляют двуспальная кровать, большой гардеробный шкаф и письменный стол. С гостиной холл связан широким открытым проходом. Огромный угловой диван у панорамного окна и ТВ-панель располагают к созерцательному отдыху. А рядом — выход на террасу, с любого края которой можно спуститься на участок. Среди трех спален мансарды комната хозяев легко угадывается по наличию большой гардеробной, санузла и просторного балкона. Второй санузел — это большая ванная комната. Спальни, не принадлежащие хозяевам, оборудованы вместительными гардеробными шкафами и письменными столами. Дом отлично подходит для семьи из 4-5 человек.

-3

Конструктив дома включает УШП-фундамент, стены из керамоблока 400 в облицовке фасадным кирпичом, перекрытия по деревянным балкам и кровлю из металлической черепицы. Строение имеет простой квадратный план и прямые, без углов и выступов, стены. У окон верхнего яруса скошенный верхний край, параллельный наклонной кровле. Оформление фасадов: На главном — четыре больших окна; На правом — две оконные группы, принадлежащие гостиной первого яруса и мезонину. В каждую группу входит центральное двустворчатое окно и боковые вертикальные окна. Мезонин завершается балконом, который служит крышей для террасы. Левый малоостекленный фасад включает лишь два лестничных окна; Задний фасад — входной. Кроме крыльца, на нем расположены технические окна.

Проект дома 195 м2 в Европейском стиле - DTE-37

Подробнее с проектом можно ознакомиться на сайте deutek.ru

Подписывайтесь на канал, ставьте лайки.