Добавить в корзинуПозвонить
Найти в Дзене
Берег Песочной

Представляем проект БП-131.3 — уютный двухэтажный дом 9x10 метров с современной плоской крышей и стильным архитектурным дизайном

🏡 Представляем проект БП-131.3 — уютный двухэтажный дом 9x10 метров с современной плоской крышей и стильным архитектурным дизайном! 🌟 Общая площадь 143,2 м² идеально подходит для большой семьи из 6-7 человек, ценящей комфорт, функциональность и современный стиль. 🔹 Особенности проекта: Построен с использованием передовых технологий БЭНПАН Премиум (270 мм) и БЭНПАН+ (260 мм), что обеспечивает отличную теплоизоляцию и долговечность. Высота первого этажа — 3,05 м, второго — 2,73 м, что создает просторную атмосферу внутри. Перекрытия второго этажа выполнены из плит БЭНПАН толщиной 305 мм для надежности. Внутренние стены и перегородки также из сборных панелей БЭНПАН (260 мм и 100 мм), что ускоряет монтаж и повышает теплоизоляцию. Внешняя отделка фасада — штукатурка и планкен, цоколь облицован керамогранитом — стиль и защита от влаги. 🔸 Планировка дома: Вход через тамбур, который препятствует проникновению холодного воздуха и ведет в котельную. Далее — просторный холл с лестницей на вто

🏡 Представляем проект БП-131.3 — уютный двухэтажный дом 9x10 метров с современной плоской крышей и стильным архитектурным дизайном!

-2
-3
-4
-5
-6
-7
-8

🌟 Общая площадь 143,2 м² идеально подходит для большой семьи из 6-7 человек, ценящей комфорт, функциональность и современный стиль.

🔹 Особенности проекта:

Построен с использованием передовых технологий БЭНПАН Премиум (270 мм) и БЭНПАН+ (260 мм), что обеспечивает отличную теплоизоляцию и долговечность.

Высота первого этажа — 3,05 м, второго — 2,73 м, что создает просторную атмосферу внутри.

Перекрытия второго этажа выполнены из плит БЭНПАН толщиной 305 мм для надежности.

Внутренние стены и перегородки также из сборных панелей БЭНПАН (260 мм и 100 мм), что ускоряет монтаж и повышает теплоизоляцию.

Внешняя отделка фасада — штукатурка и планкен, цоколь облицован керамогранитом — стиль и защита от влаги.

🔸 Планировка дома:

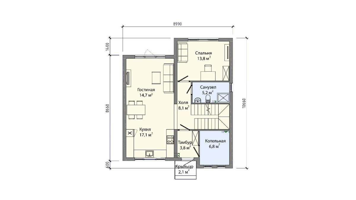
Вход через тамбур, который препятствует проникновению холодного воздуха и ведет в котельную.

Далее — просторный холл с лестницей на второй этаж.

На первом этаже: санузел, кабинет, большая гостиная, объединенная с кухней и обеденной зоной, с выходом на террасу — идеальное место для отдыха и встреч с близкими.

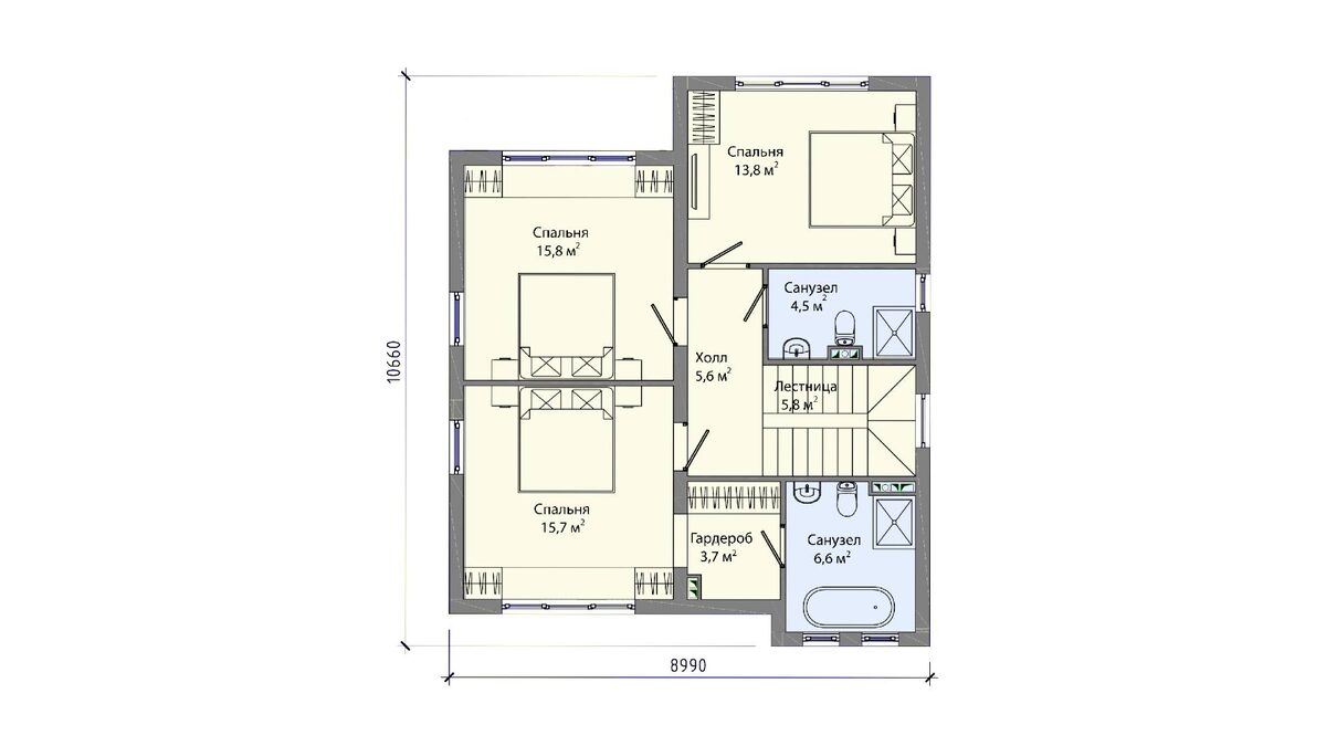
На втором этаже — небольшой холл, общий санузел и три спальни, включая главную с гардеробной и собственным санузлом — максимум комфорта и уединения.

Этот загородный коттедж — идеальное решение для семьи из 6-7 человек, ищущей уют и современность в каждом уголке!

🤔 Хотите построить дом своей мечты? Узнайте больше по ссылке 👉 Подробнее https://beregpesochnoy.ru/house/lot-no162/?utm_source=dzen

🔧 Готовы начать? Звоните или пишите прямо сейчас — обсудим все детали!📞 +7 (495) 241-50-64

А какой стиль дома вам ближе — современный с плоской кровлей или классический? Делитесь в комментариях!

#ПроектБП131_3 #ЗагородныйДом #СовременныйДом #ПлоскаяКрыша #ДомДляБольшойСемьи #СтроительствоПодКлюч #Энергоэффективность #СтильныйДом #ЗагородноеЖилье #Архитектура2024 #ДомМечты