Добавить в корзинуПозвонить
Найти в Дзене

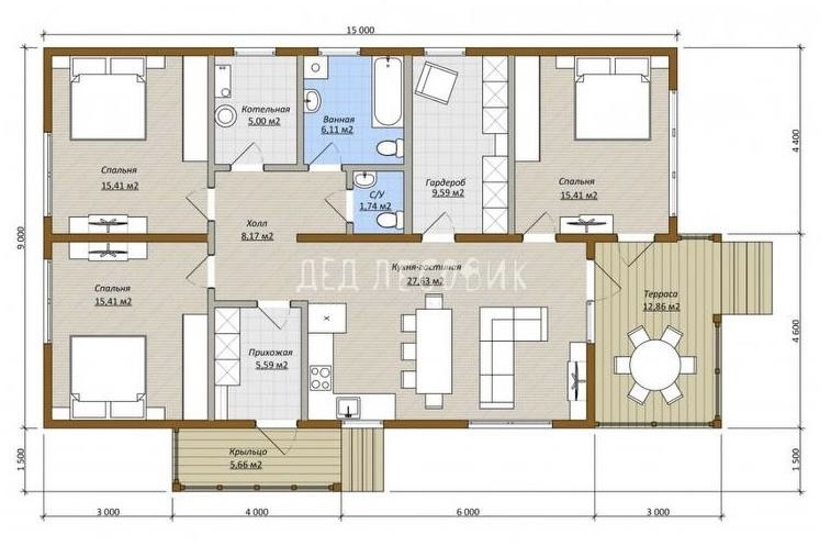
Один из наших бестселлеров среди одноэтажных домов — проект «Алиса» общей площадью 146 кв.м

В этом случае заказчик не внёс в проект ни одного изменения — дом реализуется в типовом решении, как есть на сайте.
Мы уже завершили первый этап и подписали договор на дальнейшие работы. В ближайшее время будем утеплять крышу и пол и монтировать окна.
После этого можно переходить к отделочным работам внутри дома, так как их можно делать в любое время года. А вот для шлифовки и покраски фасада

В этом случае заказчик не внёс в проект ни одного изменения — дом реализуется в типовом решении, как есть на сайте.

Планировка
Планировка

Мы уже завершили первый этап и подписали договор на дальнейшие работы. В ближайшее время будем утеплять крышу и пол и монтировать окна.

-3

-4

-5

После этого можно переходить к отделочным работам внутри дома, так как их можно делать в любое время года. А вот для шлифовки и покраски фасада придётся подождать сухой и тёплой погоды.

-6

-7

-8

-9

-10