Найти в Дзене

Как создаётся дизайн‑проект: этапы работы

Разработка дизайн‑проекта — это сложный и многоступенчатый процесс, требующий профессионального подхода на каждом этапе. В этой статье мы подробно расскажем, как организована работа в нашей студии и что ждёт вас на пути от идеи до реализации интерьера мечты. * эстетически привлекательным; * функциональным и удобным для жизни; * технически осуществимым; * соответствующим всем строительным нормам и правилам. Разберём поэтапно, как мы достигаем этих целей. Это основа любого проекта, особенно для новостроек в бетоне. На этом этапе мы: * анализируем исходные данные помещения; * определяем оптимальное расположение стен и перегородок; * планируем расстановку мебели и оборудования; * учитываем все действующие строительные нормы и правила, чтобы вы без проблем согласовали планировку. Грамотно составленная планировка — залог комфортного пространства и успешной реализации проекта. Когда планировка утверждена, переходим к формированию образа будущего интерьера. Здесь мы определяем: * стилистическо
Оглавление

Разработка дизайн‑проекта — это сложный и многоступенчатый процесс, требующий профессионального подхода на каждом этапе. В этой статье мы подробно расскажем, как организована работа в нашей студии и что ждёт вас на пути от идеи до реализации интерьера мечты.

Главная цель дизайн‑проекта — не просто создать красивые картинки, а разработать продуманное решение, которое будет:

* эстетически привлекательным;

* функциональным и удобным для жизни;

* технически осуществимым;

* соответствующим всем строительным нормам и правилам.

Разберём поэтапно, как мы достигаем этих целей.

-2

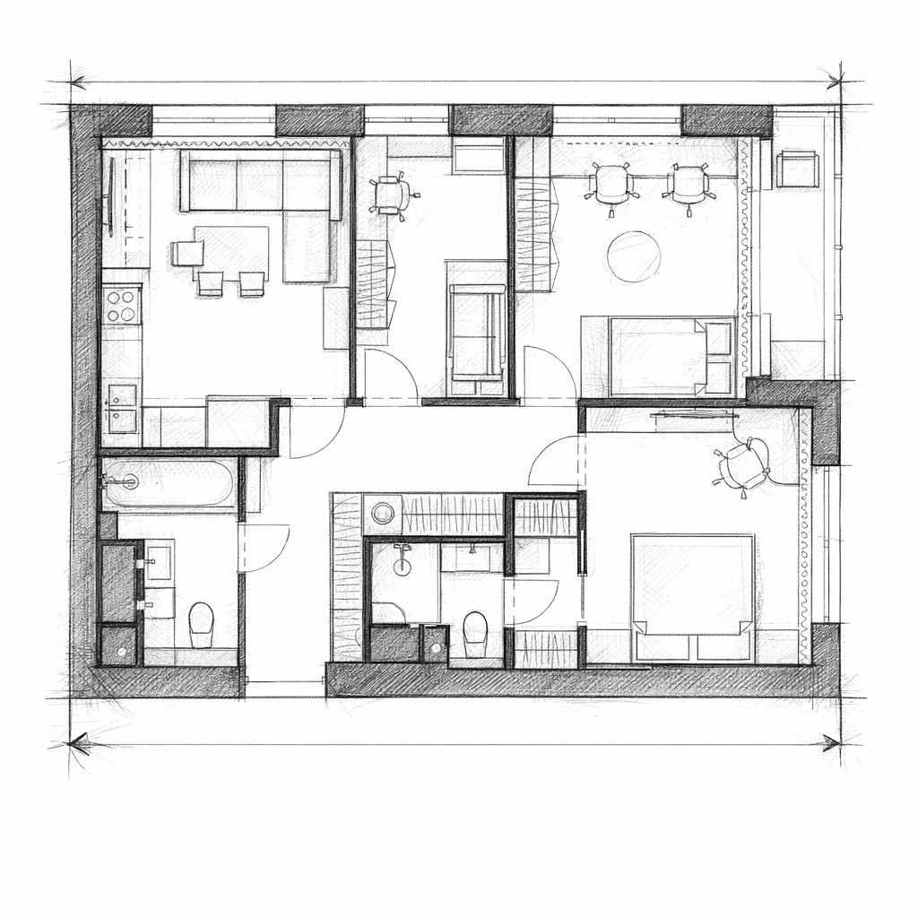
Этап 1. Разработка планировочных решений

Это основа любого проекта, особенно для новостроек в бетоне. На этом этапе мы:

* анализируем исходные данные помещения;

* определяем оптимальное расположение стен и перегородок;

* планируем расстановку мебели и оборудования;

* учитываем все действующие строительные нормы и правила, чтобы вы без проблем согласовали планировку.

Грамотно составленная планировка — залог комфортного пространства и успешной реализации проекта.

-3

Этап 2. Работа с концепцией: создание концепт‑коллажей

Когда планировка утверждена, переходим к формированию образа будущего интерьера. Здесь мы определяем:

* стилистическое направление;

* цветовую палитру;

* фактуры и текстуры материалов;

* ключевые элементы декора.

При разработке концепт‑коллажей мы в первую очередь опираемся на ваши пожелания, которые обсуждаем на первых встречах. Затем дополняем их нашим профессиональным видением и опытом, чтобы создать гармоничный и уникальный интерьер.

-4

Этап 3. 3D‑визуализация

Это самый зрелищный, но и самый трудоёмкий этап. Визуализатор создаёт трёхмерную модель интерьера на основе утверждённой концепции, прорабатывая каждую деталь:

* цветовые решения;

* формы и конструкции;

* материалы и фактуры.

Для первичного рассмотрения мы готовим один полноценный вариант визуализации. В нём каждое помещение показано с разных ракурсов, с учётом запланированного освещения и в реалистичной подаче. Это позволяет вам «погрузиться» в будущий интерьер и оценить все решения до начала ремонта.

-5

Этап 4. Разработка рабочей документации

После утверждения визуализации мы переходим к технической части — формированию полного комплекта документов для строителей. Этот этап называется разработкой рабочей документации.

Альбом рабочих чертежей составляется индивидуально для каждого проекта, но стандартный набор включает:

1. Обмерный план (первоначальный план с размерами).

2. План монтажа и возведения перегородок.

3. Схему размещения сантехнических приборов (с привязкой к конкретным моделям).

4. План расстановки мебели (с указанием изделий на заказ и готовых решений).

5. План полов.

6. План потолков.

7. Схему размещения осветительных приборов и их привязку к выключателям.

8. Схему расположения кондиционеров и вентиляции.

9. Схему отопительных приборов.

10. Схему тёплого пола.

11. Схему электрики (размещение розеток, выключателей, электровыводов).

12. Чертежи индивидуальных заказных изделий (мебель, элементы интерьера).

13. Развёртки стен по каждому помещению (с привязкой к отделочным материалам).

14. Общую схему отделки.

15. Ведомость чистовых отделочных материалов и предметов интерьера.

-6

Завершающий этап: авторский надзор

Грамотно составленный проект — это половина успеха. Но чтобы результат полностью соответствовал задумке, важна правильная реализация. Наши дизайнеры сопровождают вас на всех этапах ремонта в рамках авторского надзора:

* регулярно посещают объект;

* контролируют соответствие работ проекту;

* оперативно решают возникающие вопросы;

* при необходимости вносят коррективы в документацию.

-7

Мы не просто создаём дизайн — мы ведём вас за руку от первой идеи до финального штриха, гарантируя, что ваш интерьер будет именно таким, каким вы его задумали.

Студия скандинавского интерьера - Хансен Студия Дизайн. Дизайнеры Робин Хансен и Ольга Филиппова
Студия скандинавского интерьера - Хансен Студия Дизайн. Дизайнеры Робин Хансен и Ольга Филиппова

Доверьтесь профессионалам — и ваш дом станет воплощением стиля, комфорта и вашей индивидуальности!

+7 (995) 792-59-01
info@hansen-studio.com

Студия скандинавского интерьера