Добавить в корзинуПозвонить
Найти в Дзене
DIVAN.RU

Евродвушка 36 кв.м в Москве: теплые тона и красные акценты

Перед автором этого проекта стояла непростая задача: создать максимально функциональное пространство в миниатюрной квартире. Посмотрим, что получилось. Планировка от застройщика была незначительно доработана. Для кухонного гарнитура выстроили нишу, санузел расширили за счет коридора, а в спальне появилась гардеробная. Мокрые зоны остались на своих местах. Кухня выполнена в светлых теплых тонах. Верхние шкафы дополнены антресолями с матовым черным стеклом. Встроенные пеналы с техникой расположены в нише на противоположной стене. Оснащение включает: 3-конфорочную индукционную плиту, встроенную вытяжку, посудомоечная машина шириной 45 см, фильтр для воды, измельчитель. В пеналах: холодильник, винный шкаф, духовка, СВЧ. Обратите внимание: кухонная столешница «перетекает» в барную стойку, разделяющую кухню и гостиную. Над ней расположен акцентный красный светильник. Диван Льери Мини от divan.ru удачно разместили напротив ТВ в маленькой гостиной. Он компактный, бюджетный, с функцией спальног
Оглавление

Перед автором этого проекта стояла непростая задача: создать максимально функциональное пространство в миниатюрной квартире. Посмотрим, что получилось.

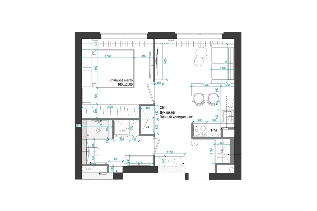
  • Объект: евродвушка 36 кв.м в ЖК «Левел Причальный», г. Москва (потолки 3 м)
  • Автор проекта: дизайнер Юлия Гришина, декоратор Мария Маркус, автор фото Егор Кодяков
  • Бюджет: 4,5 млн рублей

Пожелания заказчиков

  • Максимально рационально задействовать имеющуюся площадь.
  • Четко разграничить зоны для отдыха, работы и хранения вещей.

Планировочное решение

Планировка от застройщика была незначительно доработана. Для кухонного гарнитура выстроили нишу, санузел расширили за счет коридора, а в спальне появилась гардеробная. Мокрые зоны остались на своих местах.

Планировочное решение и расстановка мебели
Планировочное решение и расстановка мебели

Кухня-гостиная

Кухня выполнена в светлых теплых тонах. Верхние шкафы дополнены антресолями с матовым черным стеклом. Встроенные пеналы с техникой расположены в нише на противоположной стене. Оснащение включает: 3-конфорочную индукционную плиту, встроенную вытяжку, посудомоечная машина шириной 45 см, фильтр для воды, измельчитель. В пеналах: холодильник, винный шкаф, духовка, СВЧ.

Обратите внимание: кухонная столешница «перетекает» в барную стойку, разделяющую кухню и гостиную. Над ней расположен акцентный красный светильник.

Диван Льери Мини от divan.ru удачно разместили напротив ТВ в маленькой гостиной. Он компактный, бюджетный, с функцией спального места.

➡️Товары бренда divan.ru

Спальня

Большая часть стен в квартире выровнена и окрашена, на пол постелен износостойкий кварц-винил. Стену за изголовьем украшает декоративная штукатурка под замшу с вертикальными черными металлическими «разделителями».

В спальне стоят двуспальная кровать и вместительный шкаф-купе. «Существует миф, что черный цвет визуально сужает пространство и не подходит для небольших комнат. Однако это не соответствует действительности, — поясняет дизайнер. — Ключевым фактором является контекст применения: расположение, пропорции, а также выбор поверхностей и текстур. В данной спальне, напротив, темный оттенок способствует ощущению простора, поскольку глянцевая поверхность расположена напротив окна, отражая свет».

➡️Товары бренда divan.ru

Прихожая

Пол в прихожей и санузле облицован керамогранитом. В прихожей предусмотрены шкафы для верхней одежды и обуви.

Санузел

В небольшом санузле размещены душевая, хозблок со стиральной и сушильной машинами. Для хранения предусмотрены встроенный стеллаж и тумба с раковиной и выдвижными ящиками.

🌸 Весна вдохновляет не перемены. Прислушайтесь к себе и сделайте дом ещё уютнее. До 29.03 в divan.ru дополнительно -7% на всё с промокодом ВЫГОДА

-8

============================

Оцените интерьер в комментариях, а если материал понравился — не забудьте поставить лайк👍

🖤divan.ru — не только блог про интерьеры, но и производитель доступной дизайнерской мебели. Ищите новые идеи и переходите на сайт, чтобы воплотить их в жизнь.