Добавить в корзинуПозвонить
Найти в Дзене
ДОМ с умом

Проект "Эрика"

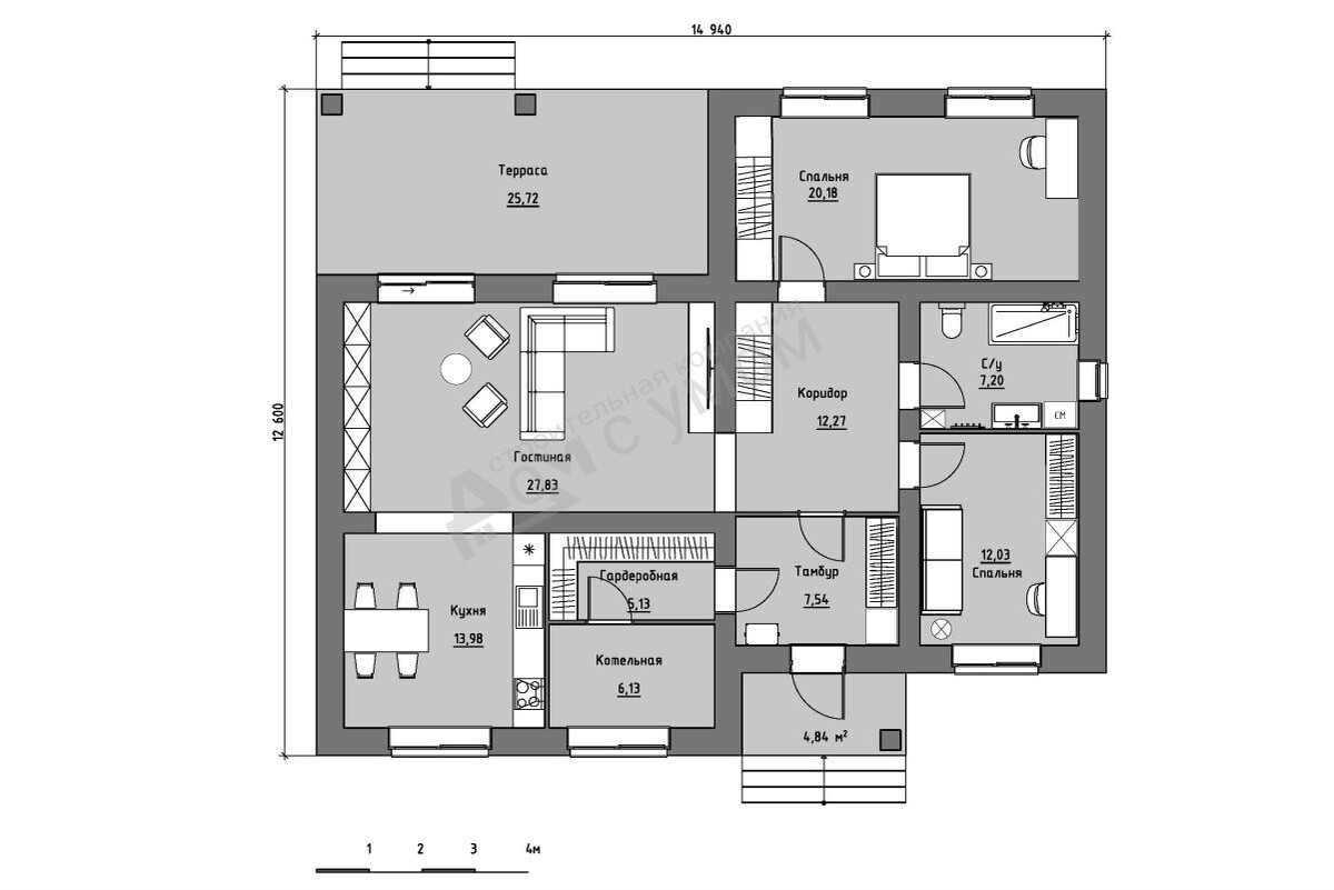
Этот коттедж мы спроектировали для семьи из трех человек. Заказчики искали проект дома, в котором будет комфортно жить и принимать гостей. Основные требования звучали так: две отдельные спальни, просторная гостиная, функциональная кухня и большая терраса, которая станет продолжением дома в тёплое время года. Общая площадь - 138 кв.м
Жилая площадь - 112,3 кв.м
Габариты - 12,6 х 14,9 м
Фундамент: монолитная железобетонная плита
Стены: газобетонный блок 400 мм
Отделка фасада: комбинированная
Чердачные перекрытия - по деревянным балкам
Крыша - из металлочерепицы по деревянной стропильной системе Планировка отлично подходит для семьи из 3-х человек: просторная гостиная с выходом на большую террасу, отдельная кухня, 2 спальни, ванная, гардеробная и изолированная котельная. 📌Жилая площадь – 112,3 кв.м 📌Кухня – 14 кв.м 📌Гостиная – 27,8 кв.м 📌Спальни – 2 шт. 📌Терраса – 25,7 кв.м Смотреть этот проект на сайте: https://www.domsumom72.ru/catalog/proekty-1-etazhnykh-domov/proekt-erika/
Все пр
Оглавление

Этот коттедж мы спроектировали для семьи из трех человек. Заказчики искали проект дома, в котором будет комфортно жить и принимать гостей. Основные требования звучали так: две отдельные спальни, просторная гостиная, функциональная кухня и большая терраса, которая станет продолжением дома в тёплое время года.

Характеристики:

Общая площадь - 138 кв.м
Жилая площадь - 112,3 кв.м
Габариты - 12,6 х 14,9 м
Фундамент: монолитная железобетонная плита
Стены: газобетонный блок 400 мм
Отделка фасада: комбинированная
Чердачные перекрытия - по деревянным балкам
Крыша - из металлочерепицы по деревянной стропильной системе

Планировка:

Планировка отлично подходит для семьи из 3-х человек: просторная гостиная с выходом на большую террасу, отдельная кухня, 2 спальни, ванная, гардеробная и изолированная котельная.

-2

📌Жилая площадь – 112,3 кв.м
📌Кухня – 14 кв.м
📌Гостиная – 27,8 кв.м
📌Спальни – 2 шт.
📌Терраса – 25,7 кв.м

Смотреть этот проект на сайте: https://www.domsumom72.ru/catalog/proekty-1-etazhnykh-domov/proekt-erika/
Все проекты:
https://www.domsumom72.ru/catalog/doma-iz-kamnya/