Найти в Дзене
DIVAN.RU

42-метровая евродвушка: круговая планировка, необычный формат кухни и много винтажной мебели

Этот проект — пример того, как сделать небольшую квартиру просторнее с помощью грамотной планировки. Посмотрим ближе. Квартира была куплена в черновой отделке со стандартным планировочным решением. Главное преимущество — обилие окон, включая окно в ванной комнате. Благодаря этому помещение постоянно наполнено естественным светом, хотя в летний период требуется защита от избыточного излучения. Хозяйка квартиры инициировала перепланировку, в результате которой кухня расположилась в коридоре, а спальную дверь переместили из прихожей в гостиную зону. Санузел оборудован двумя входами — из прихожей и спальни. «Портал» с двойными дверями разграничивает гостиную и спальню. «С самого начала работы мы стремились создать интерьер, объединяющий предметы из разных эпох, — рассказывают дизайнеры. — В то время как выбор отделочных материалов и их характеристик — процесс предсказуемый (с возможностью предварительного просмотра образцов), поиск винтажной мебели напоминает азартную игру: нужно успеть на
Оглавление

Этот проект — пример того, как сделать небольшую квартиру просторнее с помощью грамотной планировки. Посмотрим ближе.

  • Объект: евродвушка 42 кв.м, г. Москва (потолки 2,8 м)
  • Кто здесь живет: семейная пара
  • Авторы проекта: дизайнеры Маргарита Зенова и Александра Багрицевич, студия дизайна интерьеров «М-Бюро», стилист Анастасия Пырьева, автор фото Евгений Гнесин

Пожелания владельцев

  • Функциональная кухня с минималистичным дизайном.
  • Небольшая гардеробная у входа.
  • Ванная комната с отдельно стоящей ванной на ножках.
  • Много мест для хранения.

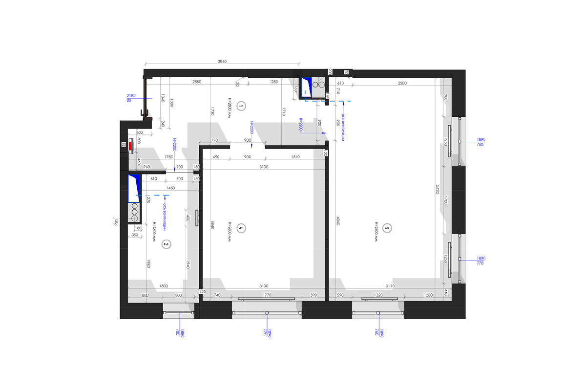
Планировочное решение

Квартира была куплена в черновой отделке со стандартным планировочным решением. Главное преимущество — обилие окон, включая окно в ванной комнате. Благодаря этому помещение постоянно наполнено естественным светом, хотя в летний период требуется защита от избыточного излучения.

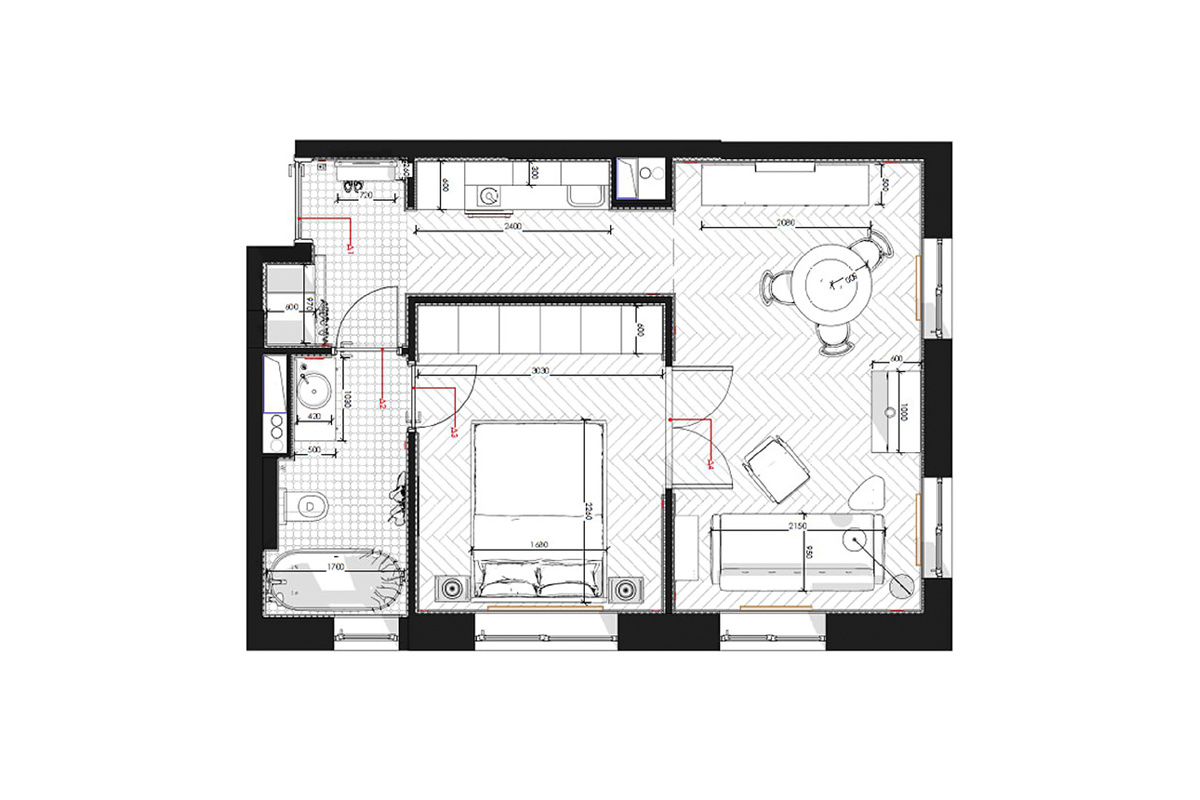
Хозяйка квартиры инициировала перепланировку, в результате которой кухня расположилась в коридоре, а спальную дверь переместили из прихожей в гостиную зону. Санузел оборудован двумя входами — из прихожей и спальни. «Портал» с двойными дверями разграничивает гостиную и спальню.

Гостиная

«С самого начала работы мы стремились создать интерьер, объединяющий предметы из разных эпох, — рассказывают дизайнеры. — В то время как выбор отделочных материалов и их характеристик — процесс предсказуемый (с возможностью предварительного просмотра образцов), поиск винтажной мебели напоминает азартную игру: нужно успеть найти, забронировать и отреставрировать желаемые предметы. Этот процесс потребовал значительного времени, но терпение заказчиков помогло достичь желаемого результата. Именно винтажная мебель придала интерьеру особую атмосферу».

Антикварный буфет, ставший душой гостиной, прошел путь от находок до реставрации. Его монументальность и характерный аромат древесины не оставляют равнодушными никого из гостей.
-3
У окна установили диван Льери от бренда divan.ru, чья яркая обивка создает баланс с акцентным буфетом, становясь вторым значимым акцентом пространства. Ретро-эстетика модели соответствует общей стилистике.

➡️Товары бренда divan.ru

Хотя заказчики отказались от установки телевизора, в проекте предусмотрели резервные розетки. Декоративную композицию из ваз, произведений искусства и настольной лампы разместили на комоде, который изначально планировался под ТВ. В гостиной нашли место для обеденной группы: современному столу и трем винтажным стульям.

-5

Спальня

Квартира спроектирована по принципу анфилады: дверные проемы гостиной, спальни и санузла находятся на одной оси, что способствует визуальному расширению пространства. Классические распашные двери и зеркальные поверхности усиливают эффект.

-6

Горчичная кровать Лайтси от divan.ru стала главным акцентом комнаты. Преимущество мебели divan.ru — возможность индивидуального подбора обивки и цвета ножек через онлайн-конструктор на сайте.

Нейтральные серые шторы и ковер с рисунком визуально смягчили интенсивный цвет кровати. Напротив спального места организовали систему хранения в виде шкафа.

➡️Товары бренда divan.ru

Зона кухни

Для «маскировки» кухонного пространства гарнитур интегрировали в нишу для шкафа в прихожей. Единая цветовая гамма фасадов и стен позволила визуально «растворить» массивную мебель в интерьере.

Прихожая

Входная зона в квартире яркая — с терракотовыми стенами и винтажной плиткой на полу. Компактная гардеробная за желтой шторой оборудована стиральной машиной, а антикварное вертикальное зеркало дополняет интерьер.

Санузел

На полу в санузле выложили ту же плитку, что и в прихожей. Стены разделили на зоны: верхнюю часть покрасили в светло-зеленый, нижнюю отделали белой плиткой. Реализация мечты хозяйки о ванне на ножках стала возможной после перемещения стиральной машины в прихожую.

💥Больше выгоды в divan.ru на покупки с промокодами:

-5000₽ на заказ от 75 000₽ с ДАРИМ5 | -15 000₽ на заказ от 150 000₽ с ДАРИМ15

-11

============================

Оцените интерьер в комментариях, а если материал понравился — не забудьте поставить лайк👍

🖤divan.ru — не только блог про интерьеры, но и производитель доступной дизайнерской мебели. Ищите новые идеи и переходите на сайт, чтобы воплотить их в жизнь.