Найти в Дзене
DIVAN.RU

Терракотовый триумф: яркий интерьер трешки 85 кв.м для творческой семьи

Хозяева этой квартиры — семейная пара с дочерью-школьницей. Супруги творческие, связаны с киноиндустрией и не боятся смелых, неординарных решений в интерьере. Квартира — отражение их яркой, насыщенной жизни и самобытного характера. Заглянем в гости. Квартира от застройщика была в состоянии черновой отделки. Базовая планировка включала три полноценные комнаты и два санузла. Кухня представляла собой компактное изолированное помещение. Пространство кухни и гостиной объединили в просторную общую зону — место для семейных посиделок и вечерних встреч. В изначальной планировке гостиной было два окна. Одно окно «перешло» новой комнате — кабинету, при этом немного изменилась планировка детской. «Особенность проекта — работа с цветом, — делится дизайнер. — Цветовая геометрия создает здесь ощущение простора. В каждой комнате есть яркий акцент, который притягивает взгляд, но при этом интерьер остается гармоничным: контрастные оттенки уравновешиваются спокойными тонами». Стены в квартире оштукатури
Оглавление

Хозяева этой квартиры — семейная пара с дочерью-школьницей. Супруги творческие, связаны с киноиндустрией и не боятся смелых, неординарных решений в интерьере. Квартира — отражение их яркой, насыщенной жизни и самобытного характера. Заглянем в гости.

  • Объект: трехкомнатная квартира 85 кв.м в новостройке в ЖК «Гармония», г. Минск (потолки 2,73 м)
  • Автор проекта: дизайнер Виктория Грузинова, автор фото Екатерина Самойлович

Пожелания заказчиков

  • Разработать смелую и яркую цветовую схему, которая будет гармонично восприниматься в жилом интерьере.
  • Интегрировать рабочий кабинет в дизайн квартиры.
  • Создать единое функциональное пространство кухни-гостиной.

Планировочное решение

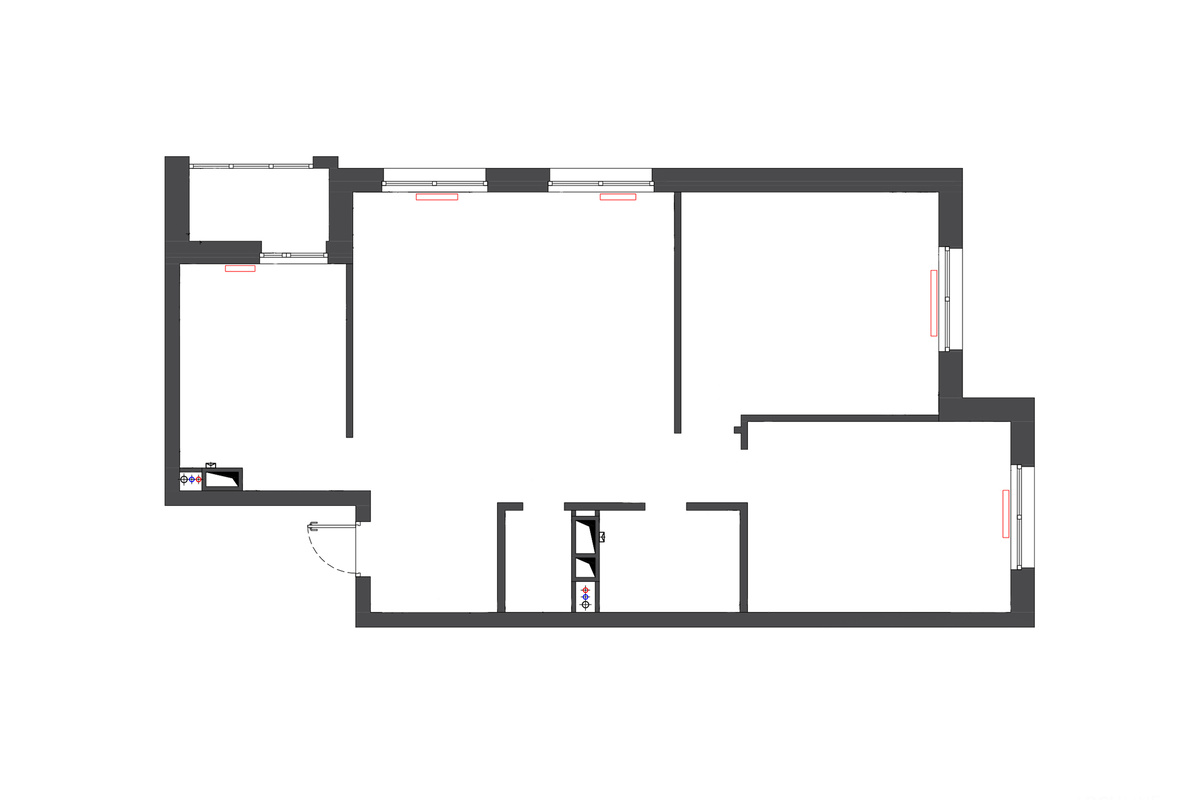
Квартира от застройщика была в состоянии черновой отделки. Базовая планировка включала три полноценные комнаты и два санузла. Кухня представляла собой компактное изолированное помещение.

Исходная планировка
Исходная планировка

Пространство кухни и гостиной объединили в просторную общую зону — место для семейных посиделок и вечерних встреч. В изначальной планировке гостиной было два окна. Одно окно «перешло» новой комнате — кабинету, при этом немного изменилась планировка детской.

Итоговая планировка и расстановка мебели
Итоговая планировка и расстановка мебели

«Особенность проекта — работа с цветом, — делится дизайнер. — Цветовая геометрия создает здесь ощущение простора. В каждой комнате есть яркий акцент, который притягивает взгляд, но при этом интерьер остается гармоничным: контрастные оттенки уравновешиваются спокойными тонами».

Кухня-гостиная

Стены в квартире оштукатурили и покрасили. Для проекта выбрали двери скрытого монтажа и нестандартную цветовую гамму, поэтому покраска стала оптимальным решением. Пространство гостиной и кухни разграничили разными напольными покрытиями: керамогранит использовали в кухонной зоне, а инженерную доску — в зоне отдыха.

Большая часть мебели, включая кухню, изготовлена по индивидуальному проекту. Кухонный гарнитур выполнен в двух оттенках: базовый тон гармонирует со стенами, а терракотовый создает акцент. Фартук стал главным украшением кухни. Единое цветовое решение плитки и верхних шкафов сразу приковывает взгляд. Остальные элементы выполнены в нейтральных тонах.

-4

«Для создания гармоничных пропорций мы нарастили часть стены, — объясняет дизайнер. — Это позволило организовать нишу для холодильника, витрины с бокалами и шкафа со встроенной кофемашиной. Рабочая зона оформлена в терракотовых тонах — фасады, фартук и столешница создают единый ансамбль. Здесь разместилась вся необходимая техника: посудомоечная машина, варочная панель, духовой шкаф и микроволновая печь».

Обеденная группа изготовлена из натурального дерева. Особое внимание привлекают стулья с эффектом хамелеона: их цвет переливается от синего к зеленому в зависимости от освещения и угла зрения. Подвесные светильники над столом искусно выделяют обеденную зону.

«Объемная стена в прихожей создает яркий акцент, объединяя кухню и входную зону. Терракотовый цвет в этой конструкции становится связующим элементом между разными зонами квартиры. Он “эффектно” встречает в прихожей и плавно “переходит” в кухню, придавая интерьеру особую теплоту и выразительность».

Угловой диван Эдвин от divan.ru идеально вписался в интерьер. Конструкция с одним подлокотником обеспечивает удобный доступ к дивану со стороны кухонной зоны — гости могут свободно присесть, пообщаться с хозяевами или развернуться к кухне. Оттоманка дивана стала любимым местом отдыха хозяев — настоящий «уютный уголок», где можно с комфортом расположиться, вытянуть ноги и погрузиться в просмотр телепередач.

Диван Эдвин divan.ru
Диван Эдвин divan.ru

➡️Товары бренда divan.ru

«Мы использовали “холодный” оттенок обивки дивана, который перекликается с текстилем штор. Это создало приятный контраст с теплой и светлой основной палитрой, добавив интерьеру свежести. Синяя керамика в деталях также поддерживает эту прохладную ноту, которая придает пространству глубину и выразительность», — отмечает автор проекта.

Спальня

В спальне продолжили «натуральную» цветовую концепцию. «Насыщенный оттенок зеленого создает атмосферу спокойствия и уюта, что идеально для отдыха. Этот цвет также отлично подходит для детских комнат, так как мягко успокаивает, сохраняя при этом живость интерьера, — поясняет дизайнер. — Вертикальные зеленые полосы на стенах визуально расширяют пространство и добавляют динамику».

Коралловая кровать Ситено от divan.ru стала ярким акцентом в интерьере. Ее преимущество — встроенный подъемный механизм, который открывает доступ к большому бельевому ящику.

Обратите внимание на авторские вазы ручной работы. Мастер создал их парами, чтобы гармонично вписать в общую цветовую палитру.

Детская комната

Интерьер детской оживляют фотообои с экзотическими цветами и пальмовыми листьями, которые выбрала дочка совместно с родителями. Кровать Скаун от divan.ru в желтой обивке балансирует яркость обоев.

-9

Рабочая зона плавно переходит в мягкий уголок, создавая многофункциональное пространство для чтения, отдыха и общения. Здесь можно заниматься уроками с дочкой. Рядом — система хранения для косметики и большое зеркало, которое расширяет пространство. С другой стороны стола — открытая ниша для учебы и вместительный шкаф.

➡️Товары бренда divan.ru

Кабинет

Кабинет отличается наиболее спокойной цветовой палитрой в квартире. Центральным элементом дизайна является небесно-голубая стена за диваном. В комнате организованы удобное рабочее место и зона отдыха с диваном Льери Мини от divan.ru. Для хранения установлены два шкафа и открытая настенная полка.

➡️Товары бренда divan.ru

Санузлы

Санузел с ванной органично перекликается со спальней. При входе взгляд сразу притягивает зеленая стена, которая задает тон и настроение. Чтобы сохранить ощущение простора, остальной декор выполнен в спокойных тонах. Плитка с эффектом терраццо добавляет интерьеру легкую, но выразительную динамику. Вся мебель изготовлена по индивидуальному проекту: нестандартная планировка и встроенная сантехника потребовали особого подхода.

Туалет совмещен с постирочной. Здесь выбрали голубой оттенок для мебели, превратив его в смелый акцент, который перекликается с цветовыми решениями в остальном интерьере.

🌸 Весна вдохновляет не перемены. Прислушайтесь к себе и сделайте дом ещё уютнее. До 29.03 в divan.ru дополнительно -7% на всё с промокодом ВЫГОДА

-13

============================

Оцените интерьер в комментариях, а если материал понравился — не забудьте поставить лайк👍

🖤divan.ru — не только блог про интерьеры, но и производитель доступной дизайнерской мебели. Ищите новые идеи и переходите на сайт, чтобы воплотить их в жизнь.