Найти в Дзене

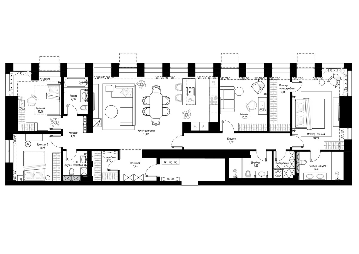
Москва. ЖК "Lucky". 165м2.

«HOMESTAGING» – (от англ. home staging — дом + инсценировка,
постановка) — комплектация квартир с готовым ремонтом от застройщика. Апартаменты с 4 спальнями 165 м2. Бюджет: 7.5 млн. ₽ (45 тыс.руб/м²)
Срок реализации: 4 месяца
Задача: меблировка под сдачу в аренду/дальнейшую продажу квартиры.
Процесс: провели базовые ремонтные работы по покраске стен. Запрос на спокойную палитру с использованием пастельных оттенков в обивке мебели разбавили яркими элементами в декоре и деталях. Вся встроенная мебель
выполнена на заказ. 2 комнаты оставили свободными для мебелировки будущими арендаторами/владельцами. Результат: арендная ставка на день сдачи 1.2 млн. ₽/месяц Кухня-гостиная Гостевой с/у Спальня №1 Спальня №2 Спальня №3 Мастер-спальня Мастер-санузел Постирочная

«HOMESTAGING» – (от англ. home staging — дом + инсценировка,
постановка) — комплектация квартир с готовым ремонтом от застройщика.

Апартаменты с 4 спальнями 165 м2.

Бюджет: 7.5 млн. ₽ (45 тыс.руб/м²)
Срок реализации: 4 месяца


Задача: меблировка под сдачу в аренду/дальнейшую продажу квартиры.


Процесс: провели базовые ремонтные работы по покраске стен. Запрос на спокойную палитру с использованием пастельных оттенков в обивке мебели разбавили яркими элементами в декоре и деталях. Вся встроенная мебель
выполнена на заказ. 2 комнаты оставили свободными для мебелировки будущими арендаторами/владельцами.

Результат: арендная ставка на день сдачи 1.2 млн. ₽/месяц

Кухня-гостиная

-2
-3
-4

Гостевой с/у

-5

Спальня №1

-6
-7

Спальня №2

-8

Спальня №3

-9
-10

Мастер-спальня

-11
-12
-13

Мастер-санузел

-14
-15

Постирочная

-16