Добавить в корзинуПозвонить
Найти в Дзене
Берег Песочной

Этот стильный дом выполнен в стиле барнхаус, состоящий из двух соединенных блоков, и сочетает в себе современность и классические элементы

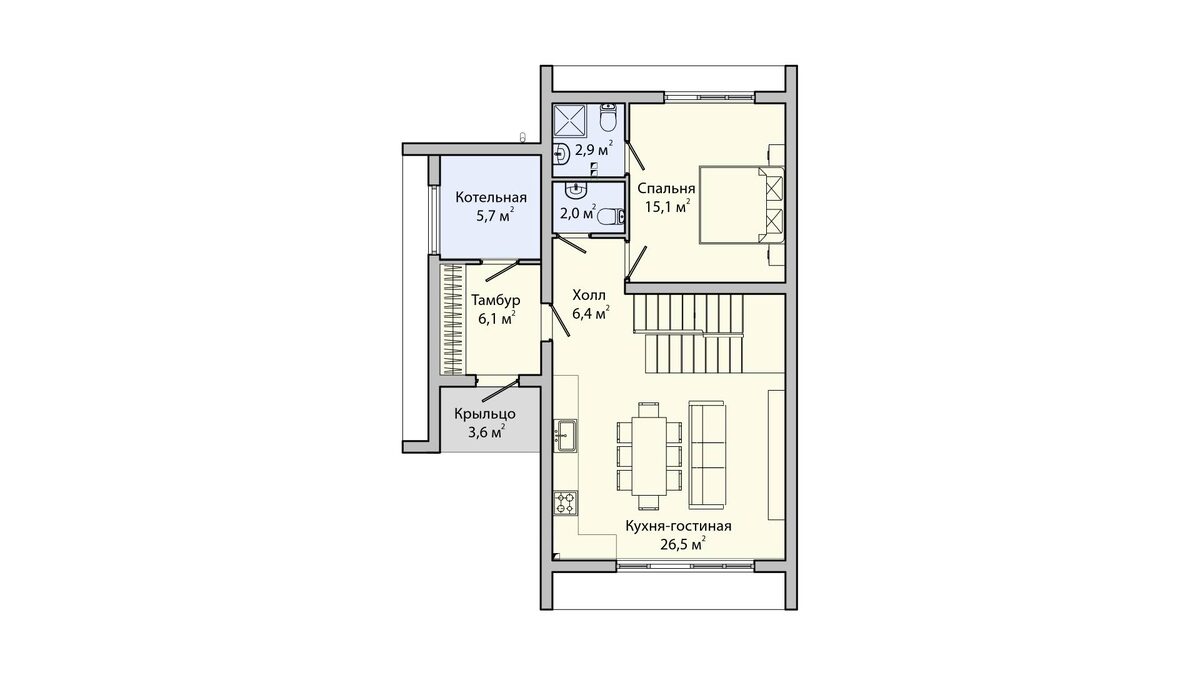
🏡 Представляем индивидуальный жилой дом ПБ-139 общей площадью 139,1 м²! ✨ Этот стильный дом выполнен в стиле барнхаус, состоящий из двух соединенных блоков, и сочетает в себе современность и классические элементы. Внешняя отделка: декоративный кирпич на западающих частях и фальц темно-серого цвета — такой дизайн привлекает сторонников как современного, так и традиционного стиля. 🧱🎨 Дом идеально подойдет для семьи из 6-8 человек. На первом этаже расположены: 🌀 тамбур, котельная, холл, спальня, 2 санузла, кухня и гостиная в едином пространстве — комфортное место для отдыха и встреч На втором этаже —🛏 3 спальни и 2 санузла для каждого члена семьи или гостей Хотите узнать больше? Перейдите по ссылке: 👉 https://beregpesochnoy.ru/project/pb-139/?utm_source=dzen
Звоните или пишите прямо сейчас — обсудим строительство вашего идеального дома! 📞 +7 (495) 241-50-64 ❓ Какой стиль дома вам ближе — современный или классический? Какие особенности вы хотели бы видеть в своем будущем доме? Дел

🏡 Представляем индивидуальный жилой дом ПБ-139 общей площадью 139,1 м²! ✨

Этот стильный дом выполнен в стиле барнхаус, состоящий из двух соединенных блоков, и сочетает в себе современность и классические элементы. Внешняя отделка: декоративный кирпич на западающих частях и фальц темно-серого цвета — такой дизайн привлекает сторонников как современного, так и традиционного стиля. 🧱🎨

-2
-3
-4
-5
-6

Дом идеально подойдет для семьи из 6-8 человек.

На первом этаже расположены:

🌀 тамбур, котельная, холл, спальня, 2 санузла, кухня и гостиная в едином пространстве — комфортное место для отдыха и встреч

На втором этаже —🛏 3 спальни и 2 санузла для каждого члена семьи или гостей

Хотите узнать больше? Перейдите по ссылке: 👉 https://beregpesochnoy.ru/project/pb-139/?utm_source=dzen

Звоните или пишите прямо сейчас — обсудим строительство вашего идеального дома! 📞 +7 (495) 241-50-64

❓ Какой стиль дома вам ближе — современный или классический? Какие особенности вы хотели бы видеть в своем будущем доме? Делитесь в комментариях! ⬇️

#дом #частныйдом #строительство #барнхаус #архитектура #современныйдом #комфорт #семейныйдом #планировка #стильжизни #мечты #строимснами