Найти в Дзене
#lifemaruev

Открытие ресторана с мангалом, с чего начать?

Меня зовут Михаил Маруев, сооснователь бренда ОРЕНУГОЛЬ, мы решили запустить серию статей для облегчения работы наших коллег из ресторанного бизнеса. Поставить в ресторан древесный березовый уголь это не про купи-продай, без экспертности и понимания в организации мангальных зон и инженерии, нормально сделать это невозможно. Давайте вместе разберемся в интересующем нас вопросе. ОРЕНУГОЛЬ отвечает на вопрос, открывая ресторан с мангалом, с чего начать? Когда вы только думаете открыть ресторан с мангалом, в голове обычно красивая картинка. Открытая кухня, мясо на огне, запах дыма, гости в восторге, повар красиво работает у огня. На этом месте большинство и делает первую ошибку. Они начинают с картинки, а не с технической реальности. Правильный порядок другой. Сначала помещение. Потом инженерия. Потом формат мангала. И только потом меню и экономика. Потому что мангал в ресторане — это не просто железка, в которую насыпали уголь. Это источник жара, дыма, золы, нагрузки на вытяжку, нагрузки
ОРЕНУГОЛЬ - Профессионально поставляем уголь в рестораны
ОРЕНУГОЛЬ - Профессионально поставляем уголь в рестораны

Меня зовут Михаил Маруев, сооснователь бренда ОРЕНУГОЛЬ, мы решили запустить серию статей для облегчения работы наших коллег из ресторанного бизнеса. Поставить в ресторан древесный березовый уголь это не про купи-продай, без экспертности и понимания в организации мангальных зон и инженерии, нормально сделать это невозможно. Давайте вместе разберемся в интересующем нас вопросе.

ОРЕНУГОЛЬ отвечает на вопрос, открывая ресторан с мангалом, с чего начать?

Когда вы только думаете открыть ресторан с мангалом, в голове обычно красивая картинка. Открытая кухня, мясо на огне, запах дыма, гости в восторге, повар красиво работает у огня. На этом месте большинство и делает первую ошибку. Они начинают с картинки, а не с технической реальности.

Правильный порядок другой.

Сначала помещение. Потом инженерия. Потом формат мангала. И только потом меню и экономика.

Потому что мангал в ресторане — это не просто железка, в которую насыпали уголь. Это источник жара, дыма, золы, нагрузки на вытяжку, нагрузки на приточку, риска по пожару, отдельной логики работы кухни и отдельной логики подбора угля, где мы имеем высокую экспертность. И если это не продумать в самом начале, дальше ресторан будет работать через боль.

Самая частая проблема — люди находят красивое помещение, подписывают аренду, а потом начинают думать, как туда воткнуть мангал. А надо наоборот. Сначала понять, можно ли в этом помещении вообще нормально и безопасно работать на живом огне, а уже потом принимать решение.

Что нужно проверить в помещении в первую очередь.

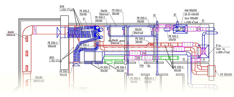
Первое. Есть ли вообще возможность сделать нормальную вытяжку. Не “какую-нибудь”, а такую, которая реально будет забирать дым и жар, а не рисовать видимость работы. Если вытяжка слабая, весь романтизм заканчивается быстро. Дым идет в зал, жар обжигает повару лицо, уголь горит нестабильно, кухня мучается, гости недовольны.

Схема приточной и вытяжной системы ресторана с мангалом. Доставка угля в ресторан - +7(3532)203-204
Схема приточной и вытяжной системы ресторана с мангалом. Доставка угля в ресторан - +7(3532)203-204

Второе. Есть ли приточка. И вот здесь многие вообще недооценивают вопрос. Все думают про то, как дым убрать. Но почти никто не думает, откуда брать воздух, чтобы мангал нормально горел. А потом начинается классика: вроде уголь хороший, а в мангале тухнет. Повар психует, собственник думает, что его обманули с углем, а проблема вообще не в угле. Проблема в том, что мангалу нечем дышать. Ретортный плотный березовый уголь в мангале без нормальной приточки тухнет, а при хорошей приточной системе, наоборот, показывает себя лучше и работает дольше.

Третье. Где будет стоять мангал. На бумаге можно поставить его красиво. В жизни надо смотреть, как туда подвозят уголь, где хранится запас, куда ссыпают золу, как повар подходит с гастроемкостями, не мешает ли это потоку кухни, не перегревает ли соседнее оборудование.

Четвертое. Можно ли в этом помещении соблюдать санитарные и противопожарные требования. Для общепита действуют санитарные требования по организации питания, а пожарная безопасность и инженерные решения завязаны на требования 123-ФЗ и Правил противопожарного режима. Это не означает, что есть одна волшебная строчка “мангал можно” или “мангал нельзя”. Это означает, что решение должно быть спроектировано и реализовано так, чтобы объект соответствовал нормам по вентиляции, пожарной безопасности, эксплуатации оборудования и организации процессов.

Теперь к сути. Каким все таки должно быть помещение под ресторан с мангалом.

Если по-простому, то помещение должно позволять сделать 5 вещей:

нормально поставить сам мангал;

нормально организовать вытяжку;

нормально организовать приточку;

нормально организовать безопасную работу персонала;

нормально хранить уголь и убирать золу.

Если хотя бы один пункт провален, ресторан в зоне риска.

Пример из жизни. Берут помещение, делают красивую открытую кухню, ставят мангал, вытяжку делают “по ощущениям”. На старте вроде работает. Потом полная посадка в пятницу вечером. Мангал загружается по-настоящему, температура растет, дыма больше, вытяжка не справляется, в зале запах, у повара перегрев, уголь горит неровно. И вот ты уже не ресторан с вау-эффектом, а ресторан, где все работает на пределе.

Поэтому главный вывод простой.

Ресторан с мангалом начинают не с мангала. Его начинают с аудита помещения. И если помещение слабое по инженерке, лучше это понять до того, как вложил деньги, чем после открытия.

Продолжаем разбираться в ресторанном бизнесе вместе с ОРЕНУГОЛЬ - экспертом в поставках древесного березового угля.

#оренуголь #угольдляресторана