Добавить в корзинуПозвонить
Найти в Дзене

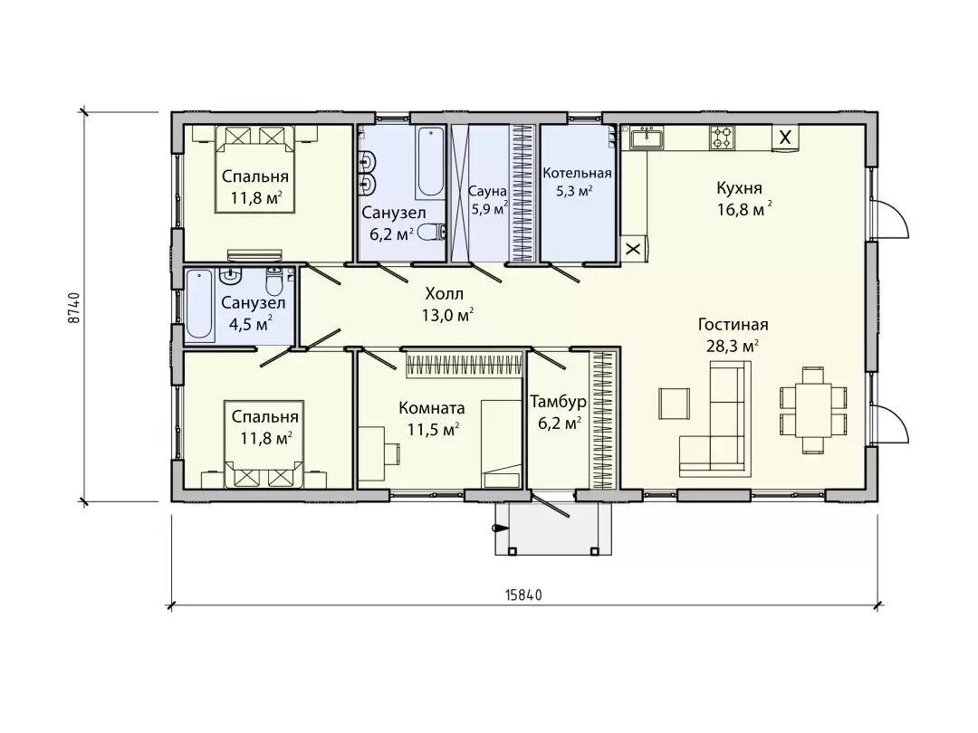
Проект ПБ-123 — это уютный одноэтажный дом 16x8 м, площадью 123,5 м², с 3 просторными комнатами, сауной и техническим помещением под котельн

🏡📝 Делимся подробностями о проекте! 🌟 Проект ПБ-123 — это уютный одноэтажный дом 16x8 м, площадью 123,5 м², с 3 просторными комнатами, сауной и техническим помещением под котельную. ✨ Основные преимущества: Несущие конструкции из часторебристых сборных железобетонных панелей толщиной 270 мм по технологии БЭНПАН Премиум Внутренние перегородки — БЭНПАН 100 мм Высота стен — 3,05 м, двухскатная крыша с организованным водостоком Внешняя отделка — покраска и штукатурка по пенопласту, цоколь из мраморной крошки Цвет фасада выбирается по желанию клиента 🏠 Планировка дома (8x16 м): На первом этаже расположены: 🔸 Тамбур, холл, 2 санузла, кухня-гостиная, 3 комнаты, сауна, техническое помещение и гардеробная. 🔗 Хотите узнать больше о проекте? Подробнее → https://benpan.ru/project/pb-123/?utm_source=dzen
🌟 Готовы начать строительство своего дома уже сегодня? Звоните! 📞 +7 (495) 260-98-32 🤔 А какая планировка вам ближе — классическая или с сауной и просторной гостиной? Делитесь в коммента

🏡📝 Делимся подробностями о проекте! 🌟

Проект ПБ-123 — это уютный одноэтажный дом 16x8 м, площадью 123,5 м², с 3 просторными комнатами, сауной и техническим помещением под котельную.

-2
-3
-4
-5
-6
-7
-8

✨ Основные преимущества:

Несущие конструкции из часторебристых сборных железобетонных панелей толщиной 270 мм по технологии БЭНПАН Премиум

Внутренние перегородки — БЭНПАН 100 мм

Высота стен — 3,05 м, двухскатная крыша с организованным водостоком

Внешняя отделка — покраска и штукатурка по пенопласту, цоколь из мраморной крошки

Цвет фасада выбирается по желанию клиента

🏠 Планировка дома (8x16 м):

На первом этаже расположены:

🔸 Тамбур, холл, 2 санузла, кухня-гостиная, 3 комнаты, сауна, техническое помещение и гардеробная.

🔗 Хотите узнать больше о проекте? Подробнее → https://benpan.ru/project/pb-123/?utm_source=dzen

🌟 Готовы начать строительство своего дома уже сегодня? Звоните! 📞 +7 (495) 260-98-32

🤔 А какая планировка вам ближе — классическая или с сауной и просторной гостиной? Делитесь в комментариях!

#строительство #домподключ #проектдома #sauna #частныйдом #архитектура #строимвместе #современныйдом #недвижимость #жилье #стройка2026