Найти в Дзене

Дом, где живёт счастье — уютный уголок для пары или семьи из трёх человек!

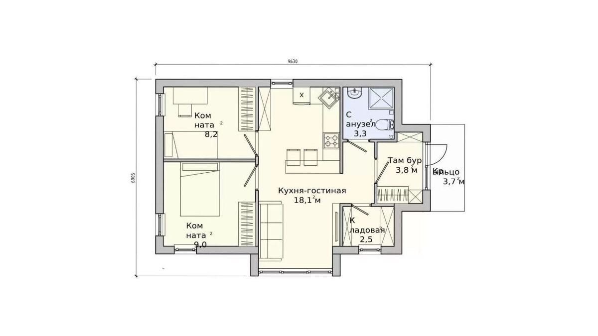
🏡 Дом, где живёт счастье — уютный уголок для пары или семьи из трёх человек! Представьте: утро начинается не с шума машин, а с пения птиц за окном. Вы выходите на крыльцо, вдыхаете свежий воздух и видите, как ребёнок с восторгом бежит по зелёной траве. Вокруг — только природа и покой, а ваш дом создан для тёплых семейных моментов 🌿🌞 Мы нашли идеальное решение для вас — проект БП‑49/3: небольшой, но очень продуманный одноэтажный дом 6×9 м, общей площадью 51,5 м². Здесь хватит места для уютных вечеров, игр детей и отдыха всей семьи — или работы из дома. ✨ Почему именно он вам подойдёт? • Две спальни — личное пространство для родителей и светлая комната для малыша, где сбудутся его самые волшебные сны. Можно преобразовать одну из комнат в кабинет или гостевую спальню. • Кухня‑гостиная с окнами на две стороны — готовите завтрак, а ребёнок играет рядом; днём много света, а вечером — уютная семейная трапеза. • Компактность и функциональность — тамбур и холл защищают от сквозняков, кладов

🏡 Дом, где живёт счастье — уютный уголок для пары или семьи из трёх человек!

-2
-3
-4

Представьте: утро начинается не с шума машин, а с пения птиц за окном. Вы выходите на крыльцо, вдыхаете свежий воздух и видите, как ребёнок с восторгом бежит по зелёной траве. Вокруг — только природа и покой, а ваш дом создан для тёплых семейных моментов 🌿🌞

Мы нашли идеальное решение для вас — проект БП‑49/3: небольшой, но очень продуманный одноэтажный дом 6×9 м, общей площадью 51,5 м². Здесь хватит места для уютных вечеров, игр детей и отдыха всей семьи — или работы из дома.

✨ Почему именно он вам подойдёт?

• Две спальни — личное пространство для родителей и светлая комната для малыша, где сбудутся его самые волшебные сны. Можно преобразовать одну из комнат в кабинет или гостевую спальню.

• Кухня‑гостиная с окнами на две стороны — готовите завтрак, а ребёнок играет рядом; днём много света, а вечером — уютная семейная трапеза.

• Компактность и функциональность — тамбур и холл защищают от сквозняков, кладовка хранит всё нужное, санузел — под рукой.

• Минимализм и комфорт — ничего лишнего, только то, что действительно важно для вашего уюта.

• Безопасность и удобство — одноэтажный формат без лестниц, простор и свобода передвижения.

• Надёжность на годы — дом построен по технологии БЭНПАН Премиум: утеплённые железобетонные панели, монолитная плита фундамента, вальмовая кровля. Срок службы — не менее 100 лет!

🏡 Фасад: стильный и современный — термопанели под кирпич и гладкая штукатурка, керамогранит на цоколе придают дому солидный вид.

☀ В этом доме будет расти ваше счастье!Загородный дом — это не только стены. Это:

первые велосипеды на собственной лужайке 🚲

летние вечера на крыльце с какао и сказками ☕📖

первые эксперименты с выращиванием цветов или овощей 🌸🥕

зимние прогулки по заснеженному лесу ❄🌲

встречи с друзьями, шашлыки и радость каждый день!

Проект БП‑49/3 создан для круглогодичного проживания — он энергоэффективен и сохраняет тепло зимой, прохладу летом. Наслаждайтесь загородной жизнью в любое время года, не теряя городского комфорта!

💫 Ваш дом начинается здесь! Небольшой, родной, надёжный, как объятия родителей и такой уютный, как улыбка ребёнка.

Хотите узнать больше о проекте? Подробнее → https://benpan.ru/project/bp-493/?utm_source=dzen

📞 Оставьте заявку или звоните: +7 (495) 118-26-88

Пусть ваш семейный очаг засияет в самом уютном доме! ❤🏡