Добавить в корзинуПозвонить
Найти в Дзене
Аксенов Сервис

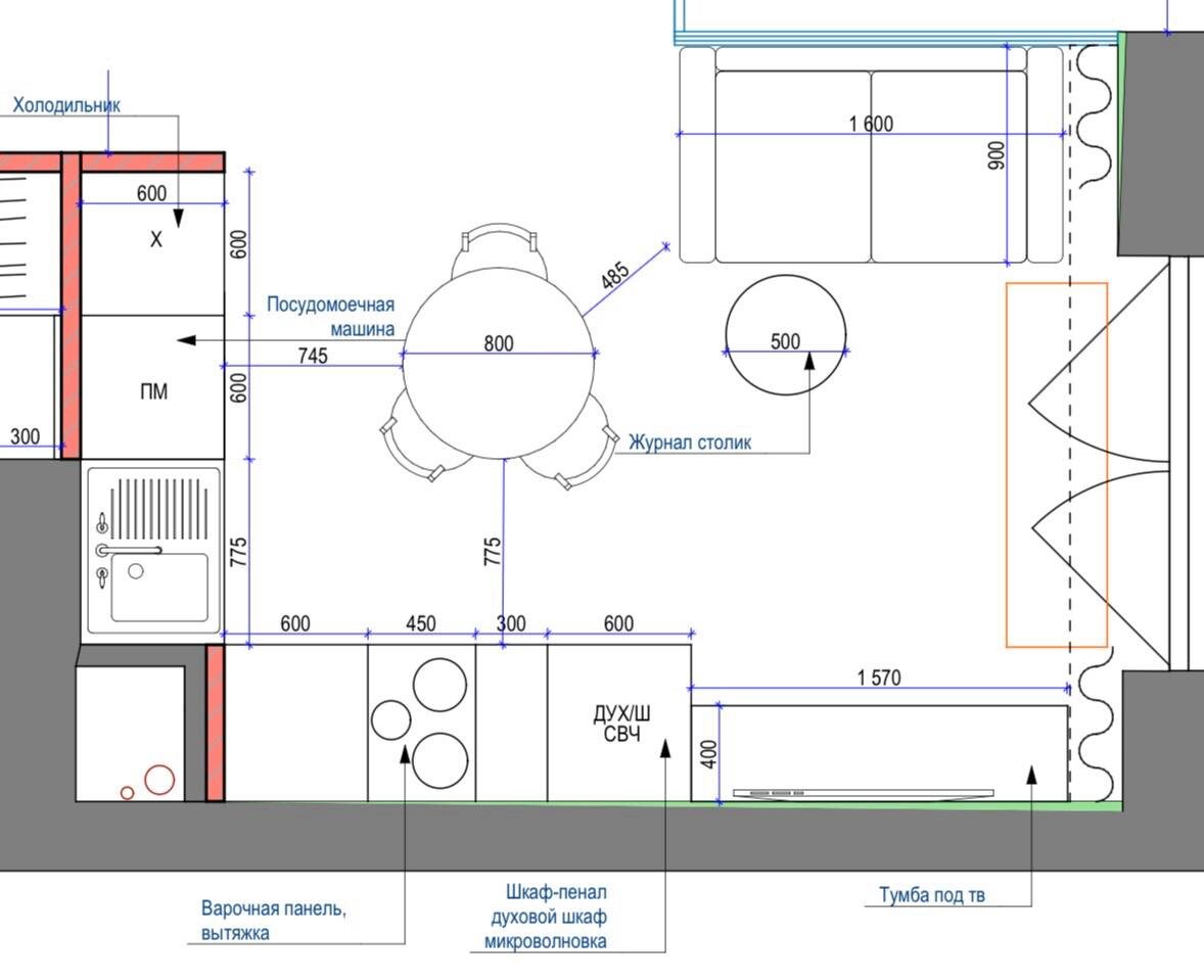
Как можно улучшить планировку этой кухни

? Представьте, что вы — дизайнер интерьера и поделитесь своими идеями⤵️ А завтра я покажу разбор этого пространства от нашего дизайнера. Сравним?😉

Как можно улучшить планировку этой кухни?

Представьте, что вы — дизайнер интерьера и поделитесь своими идеями⤵️

А завтра я покажу разбор этого пространства от нашего дизайнера. Сравним?😉