Найти в Дзене
DIVAN.RU

Функциональная двушка для пары 58 кв.м с отдельным кабинетом

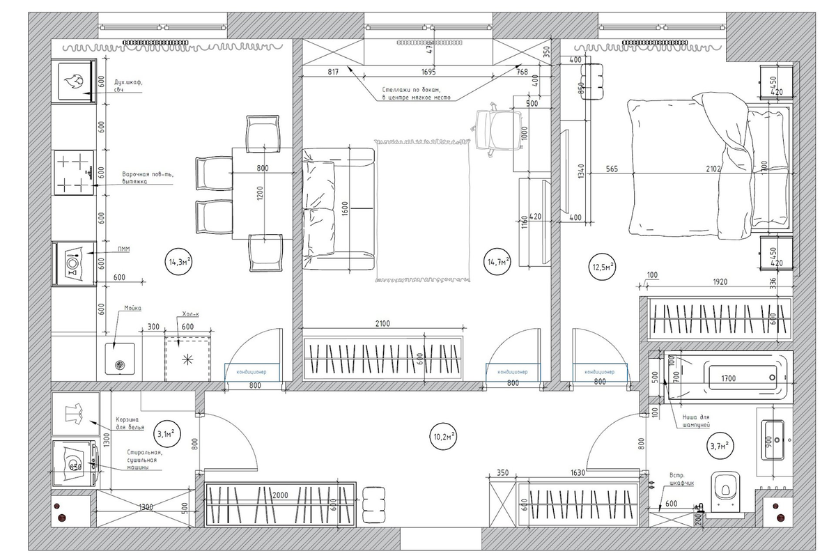
«С владельцем этой квартиры мы познакомились, когда были детьми, — рассказывает дизайнер. — Спустя 20 лет судьба свела нас снова. Интерьер я проектировала для молодой пары. Одним из условий был полноценный кабинет — заказчик работает в IT-сфере и планирует делать это из дома». Заглянем в гости. Объект: двухкомнатная квартира 58,5 кв.м в ЖК «Эвер», г. Москва (потолки 2,9 м) Автор проекта: дизайнер Светлана Рыжкова, автор съемки Юлия Гордеева Бюджет проекта: 6 млн рублей Квартира попала в куки дизайнера без отделки. Все комнаты и зоны выделяли сами, отталкиваясь от исходной планировки застройщика. Мокрые точки не переносили. В холле расположили два больших шкафа для хранения. Также шкафы предусмотрели в гостиной и спальне. Гостевой санузел заменили постирочной. «Современный стиль интерьера идеально подошел под задачи проекта: владельцам нужен был светлый интерьер с яркими акцентами, без мелких деталей, с сохранением ощущения простора, — делится автор проекта. — Колористика выстроена на б
Оглавление

«С владельцем этой квартиры мы познакомились, когда были детьми, — рассказывает дизайнер. — Спустя 20 лет судьба свела нас снова. Интерьер я проектировала для молодой пары. Одним из условий был полноценный кабинет — заказчик работает в IT-сфере и планирует делать это из дома». Заглянем в гости.

Объект: двухкомнатная квартира 58,5 кв.м в ЖК «Эвер», г. Москва (потолки 2,9 м)

Автор проекта: дизайнер Светлана Рыжкова, автор съемки Юлия Гордеева

Бюджет проекта: 6 млн рублей

Пожелания заказчиков

  • Организовать рабочее место.
  • Максимальное задействовать площадь квартиры под хранение.
  • Предусмотреть отдельное помещение для стирки.
  • Использовать необычные, но не слишком броские цветовые сочетания.

Планировочное решение

Квартира попала в куки дизайнера без отделки. Все комнаты и зоны выделяли сами, отталкиваясь от исходной планировки застройщика. Мокрые точки не переносили. В холле расположили два больших шкафа для хранения. Также шкафы предусмотрели в гостиной и спальне. Гостевой санузел заменили постирочной.

Итоговая планировка и расстановка мебели
Итоговая планировка и расстановка мебели

Гостиная-кабинет

«Современный стиль интерьера идеально подошел под задачи проекта: владельцам нужен был светлый интерьер с яркими акцентами, без мелких деталей, с сохранением ощущения простора, — делится автор проекта. — Колористика выстроена на базе теплого кремового и серого. Их мы дополнили акцентным зеленым (бутылочным) и терракотовым».

В этой квартире гостиная совмещает функции кабинета и зоны отдыха, а иногда служит спальней для гостей.

Центральный элемент в комнате — диван Динс Мини от бренда divan.ru. В собранном виде он небольшой, но быстро превращается в удобную полуторную кровать.
-3

Обратите внимание: широкая мягкая подушка превратила подоконник в зону отдыха и чтения.

Стеллажи Кейн от divan.ru стоят справа и слева от окна. Они подходят для хранения книг и декора. Рабочее место — письменный стол Нордик и мягкий компьютерный стул. Для зоны ТВ предусмотрена минималистичная белая ТВ-тумба Имин с деревянным основанием.
-4
Шкаф-купе Мюнхен стоит напротив окна. Его зеркальная поверхность отражает солнечные лучи, создавая иллюзию объемного пространства.

➡️Товары бренда divan.ru

Спальня

В спальне три стены оклеены обоями кремового оттенка, а одна выделена сочным зеленым цветом. Двуспальную кровать Шерона от divan.ru заказали в терракотовой обивке. «Всегда выражаю благодарность заказчикам за смелость в выборе ярких цветов, — отмечает автор проекта. — Бежевый или серый давно вызывают скуку. А такая спальня создает позитивное настроение».

-6

Комод Нордик занял место напротив кровати. Возле двери в нишу встроили вместительный шкаф-купе.

➡️Товары бренда divan.ru

Кухня

Кухня оформлена в спокойных тонах, стены выкрашены в серый. Рабочая зона выделена плиткой с узором, остальная часть пола застелена ламинатом. Фартук выложен мелкой плиткой, смонтированной после установки кухонного гарнитура. Столешница изготовлена из искусственного камня.

В обеденной зоне раскладной кухонный стол Авалон от divan.ru и четыре стула Алекс с терракотовой и серой обивкой.

➡️Товары бренда divan.ru

Санузел

В совмещенном санузле предусмотрены полноразмерная ванна, подвесная тумба с раковиной, шкаф с зеркалом и унитаз с инсталляцией. Акцентная стена в бутылочном цвете контрастирует со светло-серым керамогранитом вокруг.

Обратите внимание: микс черной и белой сантехники, поддержанный рисунком пола, придает интерьеру динамичность.

Прихожая и постирочная

«Вместо стандартного гостевого туалета, который задумывал застройщик, в квартире была спроектирована постирочная. Здесь установили стиральную и сушильную машины, также полки с подсветкой. Плитка с узором на полу повторяется в прихожей, что визуально объединяет эти зоны», — объясняет дизайнер.

В прихожей установлены два высоких шкафа для сезонной и повседневной одежды. У входа расположены подвесная консоль и мягкий пуф.

💥Больше выгоды в divan.ru по промокодам: -5000₽ на заказ от 75 000₽ с ДАРИМ5 | -15 000₽ на заказ от 150 000₽ с ДАРИМ15

-11

============================

Оцените интерьер в комментариях, а если материал понравился — не забудьте поставить лайк👍

🖤divan.ru — не только блог про интерьеры, но и производитель доступной дизайнерской мебели. Ищите новые идеи и переходите на сайт, чтобы воплотить их в жизнь.