Добавить в корзинуПозвонить
Найти в Дзене
ДОМ с умом

Проект "Артур"

Этот коттедж мы спроектировали для молодой семьи с двумя детьми. Заказчики хотели переехать в свой дом, в котором будет комфортно и взрослым, и детям. В ходе беседы сложилось четкое представление будущего дома: три отдельные спальни, просторная кухня-гостиная, объединяющая всю семью, и крытая терраса для отдыха на свежем воздухе. Еще одним обязательным пунктом был тёплый гараж, чтобы машина всегда была под рукой, а в непогоду не приходилось выходить на улицу, чтобы сесть за руль. Общая площадь - 196 кв.м
Жилая площадь - 166 кв.м
Габариты: 14,7 х 18,8 м
Фундамент: монолитная железобетонная плита
Стены: керамзитоблок 390 мм, утеплитель 100 мм
Отделка фасада: штукатурка и планкен
Чердачное перекрытие - железобетонные плиты перекрытия
Крыша - из гибкой черепицы по деревянной стропильной системе В этом доме есть все необходимое для комфортной жизни: большая кухня-гостиная с выходом на террасу, три спальни (одна из которых мастер-спальня), две ванных комнаты, гараж и котельная. 📌Жилая пло
Оглавление

Этот коттедж мы спроектировали для молодой семьи с двумя детьми. Заказчики хотели переехать в свой дом, в котором будет комфортно и взрослым, и детям. В ходе беседы сложилось четкое представление будущего дома: три отдельные спальни, просторная кухня-гостиная, объединяющая всю семью, и крытая терраса для отдыха на свежем воздухе. Еще одним обязательным пунктом был тёплый гараж, чтобы машина всегда была под рукой, а в непогоду не приходилось выходить на улицу, чтобы сесть за руль.

Характеристики:

Общая площадь - 196 кв.м
Жилая площадь - 166 кв.м
Габариты: 14,7 х 18,8 м
Фундамент: монолитная железобетонная плита
Стены: керамзитоблок 390 мм, утеплитель 100 мм
Отделка фасада: штукатурка и планкен
Чердачное перекрытие - железобетонные плиты перекрытия
Крыша - из гибкой черепицы по деревянной стропильной системе

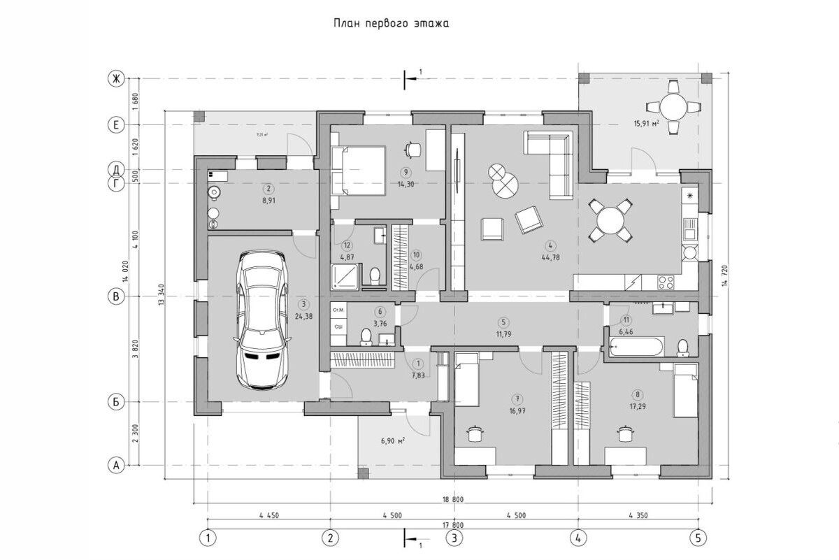
Планировка:

В этом доме есть все необходимое для комфортной жизни: большая кухня-гостиная с выходом на террасу, три спальни (одна из которых мастер-спальня), две ванных комнаты, гараж и котельная.

-2

📌Жилая площадь – 166 кв.м
📌Кухня-гостиная – 44,8 кв.м
📌Спальни – 3 шт.
📌Терраса – 15,9 кв.м
📌Гараж – на 1 авто

Смотреть этот проект на сайте: https://www.domsumom72.ru/catalog/doma-iz-kamnya/proekt-artur/
Все проекты:
https://www.domsumom72.ru/catalog/doma-iz-kamnya/