Найти в Дзене
KPD Дизайн Интерьера

Маленькая квартира — не значит неудобная

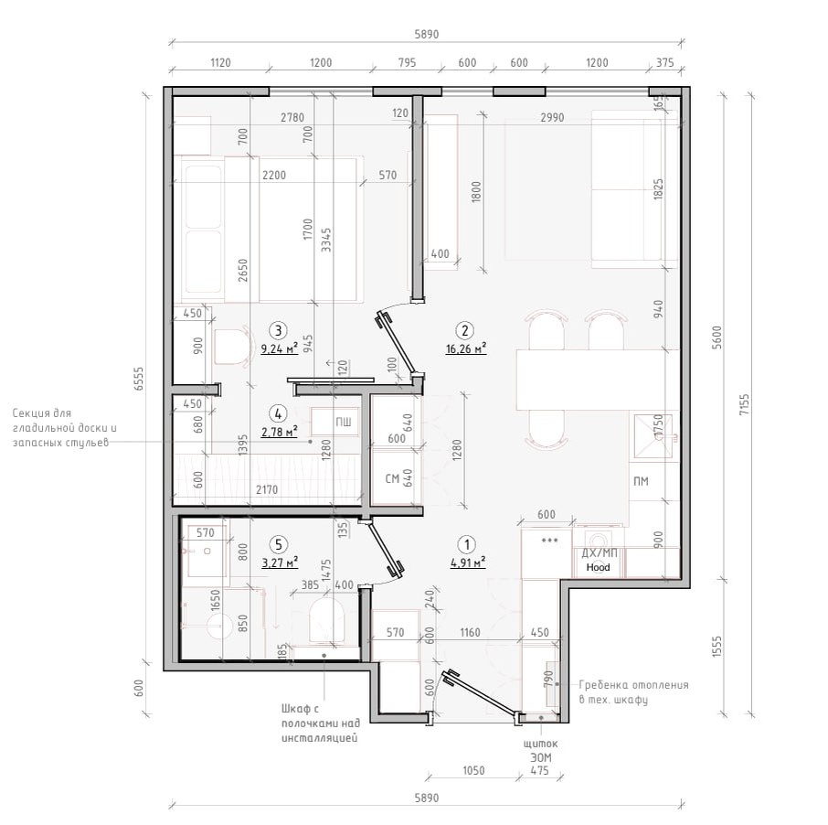
Недавно работали с квартирой до 50 м². Запрос: — нормальная кухня — гардеробная — рабочее место — без ощущения тесноты Вместо одной перегородки — сделали другую конфигурацию. Поменяли направление открывания дверей. Перераспределили хранение. Метраж не увеличился. Ощущение пространства — да. Иногда дело не в квадратных метрах. А в логике. Трости и гвозди

Маленькая квартира — не значит неудобная

Недавно работали с квартирой до 50 м².

Запрос:

— нормальная кухня

— гардеробная

— рабочее место

— без ощущения тесноты

Вместо одной перегородки — сделали другую конфигурацию.

Поменяли направление открывания дверей.

Перераспределили хранение.

Метраж не увеличился.

Ощущение пространства — да.

Иногда дело не в квадратных метрах.

А в логике.

Трости и гвозди