Хотите загородный дом без переплат и компромиссов? Проект от «ПСК Градиент» - планировка, разработанная специально для вас и современные технологии строительства в доступном формате. Разберём, почему он подойдёт и для дачи, и для постоянного проживания. Перед вами одноэтажный дом с мансардой общей площадью 60,25 м² - оптимально для небольшой семьи или сезонного отдыха.
Что внутри: Разберём ключевые решения, которые обеспечивают долговечность и комфорт: А какой параметр для вас самый важный при выборе дома? Пишите в комментариях - лучшие идеи учтём в следующих проектах!
Хотите загородный дом без переплат и компромиссов? Проект от «ПСК Градиент» - планировка, разработанная специально для вас и современные технологии строительства в доступном формате. Разберём, почему он подойдёт и для дачи, и для постоянного проживания. Перед вами одноэтажный дом с мансардой общей площадью 60,25 м² - оптимально для небольшой семьи или сезонного отдыха.
Что внутри: Разберём ключевые решения, которые обеспечивают долговечность и комфорт: А какой параметр для вас самый важный при выборе дома? Пишите в комментариях - лучшие идеи учтём в следующих проектах!
...Читать далее
Оглавление
Хотите загородный дом без переплат и компромиссов? Проект от «ПСК Градиент» - планировка, разработанная специально для вас и современные технологии строительства в доступном формате. Разберём, почему он подойдёт и для дачи, и для постоянного проживания.
Параметры проекта
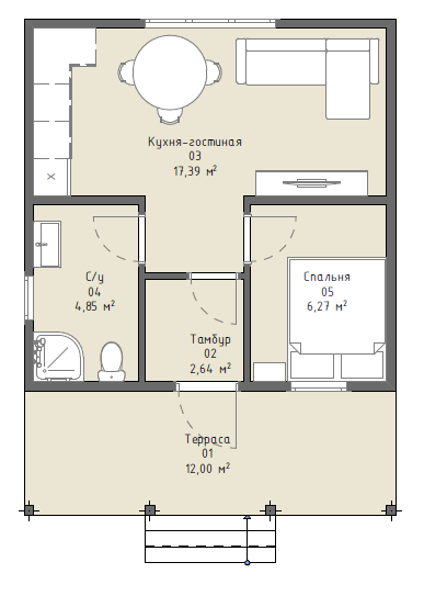
Перед вами одноэтажный дом с мансардой общей площадью 60,25 м² - оптимально для небольшой семьи или сезонного отдыха.
Что внутри:
- Терраса (12 м²) готовая площадка под отдых на свежем воздухе;
- Тамбур (2,64 м²) буферная зона, отсекающая холод и шум с улицы;
- Кухня‑гостиная (17,39 м²) универсальное пространство для готовки и приёма гостей;
- Санузел (4,85 м²) вмещает стиральную машину и полки для хранения;
- Спальня (6,27 м²) достаточно места для двуспальной кровати и базового набора мебели;
- Антресоль (17,10 м²) дополнительное пространство для хранения сезонных вещей иди дополнительное спальное место.
Конструктивные преимущества: почему это надёжно
Разберём ключевые решения, которые обеспечивают долговечность и комфорт:
- Фундамент - свайный. Оптимален для большинства грунтов, исключает риск деформаций из‑за пучения почвы.
- Стены - каркасная технология. Несущие стены толщиной 150 мм, перегородки - 100 мм. Лёгкая, но жёсткая конструкция с возможностью качественного утепления.
- Окна - двухкамерные стеклопакеты. Обеспечивают хорошую тепло- и шумоизоляцию.
- Отделка фасада - фиброцементный сайдинг. Не гниёт, не выцветает, не требует покраски.
- Вентиляция - кровельные вентиляционные выходы. Эффективный воздухообмен без сложных инженерных систем.
- Двери: наружные - металлические (надёжная защита), внутренние - деревянные (тепло и эстетика).
Почему это выгодно: 3 главных аргумента
- Экономия на отоплении. Технология «тёплый контур» без мостиков холода и двухкамерные стеклопакеты снижают теплопотери. По нашим расчётам, расходы на отопление могут быть на 30 % ниже, чем в типовых домах аналогичной площади.
- Минимум затрат на обслуживание. Фиброцементный сайдинг не нужно красить или ремонтировать каждые 5 лет. Каркасная конструкция устойчива к сезонным подвижкам грунта.
- Гибкость внутренней отделки. Внутренняя отделка выполняется по дизайн‑проекту заказчика - вы сами решаете, насколько роскошным или минималистичным будет интерьер.
Технические детали, на которые стоит обратить внимание
- Высота потолков: 2,5 м на первом этаже, до 2,5 м на мансарде - достаточно для комфорта без перерасхода материалов.
- Ориентация окон. Продуманное расположение проёмов обеспечивает естественное освещение без перегрева летом.
- Скрытое хранение. Антресоль с нишами позволяет организовать систему хранения без потери жилой площади.
- Терраса с уклоном. Пол имеет небольшой уклон для стока воды - не будет луж после дождя.
Хотите такой же дом? Действуйте прямо сейчас!
- Оставьте заявку на сайте - мы рассчитаем стоимость под ваш участок за 24 часа.
- Получите бесплатный выезд замерщика
А какой параметр для вас самый важный при выборе дома? Пишите в комментариях - лучшие идеи учтём в следующих проектах!