Найти в Дзене
Мастер-Фломастер

На обзоре современный, модульный дом, в дачном поселке

Модульные дома — это квинтэссенция XXI века, поскольку они отвечают всем потребностям современного человека: возможность быстрого строительства, компактность и небольшие финансовые вложения. Модульные дома Modern House 35 из нашего предложения способны одновременно удовлетворить все эти требования, предлагая исключительный комфорт и безупречный дизайн. Модульные дома в основном строят небольшие, наряду с плавучими домами, являются настоящей «жемчужиной» нашего предложения. Их длина составляет 11 метров, а ширина — 4,2 метра, что дает общую жилую площадь 34,86 м² (8,3 м x 4,2 м). Летом, а также в теплые осенние и весенние дни, площадь расширяется за счет большой террасы, являющейся неотъемлемой частью здания и соединяющей сад с внутренним пространством дома. Терраса отделана прочными скандинавскими досками и алюминиевыми перилами. Инвесторы, желающие еще больше увеличить это пространство, могут также выбрать вторую террасу на крыше здания, доступ к которой будет осуществляться по лестни

Модульные дома — это квинтэссенция XXI века, поскольку они отвечают всем потребностям современного человека: возможность быстрого строительства, компактность и небольшие финансовые вложения. Модульные дома Modern House 35 из нашего предложения способны одновременно удовлетворить все эти требования, предлагая исключительный комфорт и безупречный дизайн.

Модульные дома в основном строят небольшие, наряду с плавучими домами, являются настоящей «жемчужиной» нашего предложения. Их длина составляет 11 метров, а ширина — 4,2 метра, что дает общую жилую площадь 34,86 м² (8,3 м x 4,2 м). Летом, а также в теплые осенние и весенние дни, площадь расширяется за счет большой террасы, являющейся неотъемлемой частью здания и соединяющей сад с внутренним пространством дома. Терраса отделана прочными скандинавскими досками и алюминиевыми перилами. Инвесторы, желающие еще больше увеличить это пространство, могут также выбрать вторую террасу на крыше здания, доступ к которой будет осуществляться по лестнице с перилами.

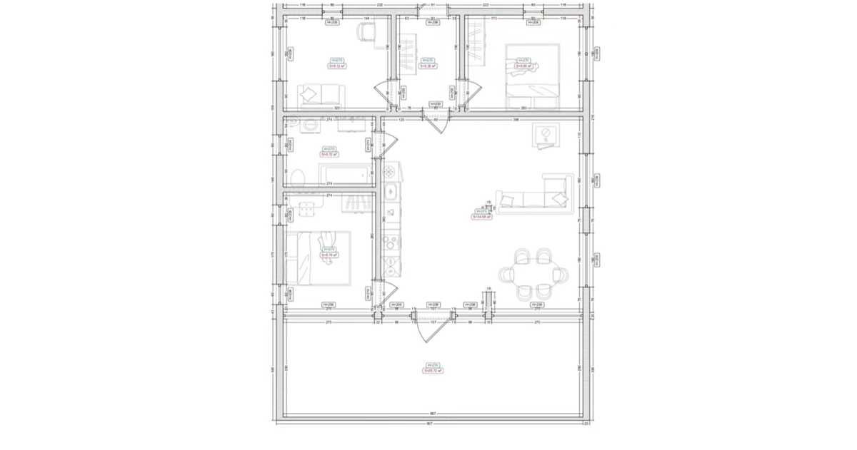
Планировка
Планировка
Однако современные модульные дома – это не только компактность, но прежде всего функциональность, поэтому мы позаботились о наиболее практичном и продуманном расположении комнат и других вопросах, которые напрямую влияют на удобство использования.
Прихожая
Прихожая

Здание имеет стальную конструкцию, а пенополиуретановая изоляция обеспечивает тепловой комфорт. Потолки, оборудованные светодиодным освещением, отделаны ПВХ-панелями, а полы — виниловыми панелями. В стандартную комплектацию также входят алюминиевые окна, фасад из ПВХ-сайдинга и коммуникации: водоснабжение, электричество, антенна, отопление (с радиаторами и печью). Каждый современный модульный дом также имеет хорошо оборудованную ванную комнату с местом для душа, раковиной с тумбой и зеркалом.

Кухня
Кухня

Современный модульный дом — для кого?
Современные модульные дома часто выбирают молодые люди, для которых традиционные кирпичные здания, рассчитанные на многие поколения, уже не являются привлекательным вариантом.
Недостатками кирпичных домов являются многомесячное ожидание строительства, высокие инвестиционные затраты и, прежде всего, постоянная привязанность к одному месту. Недостатком каменных зданий (особенно больших) является также высокая стоимость обслуживания – по этой причине современные модульные дома выбирают и люди старшего возраста, для которых меньшая площадь более практична в эксплуатации, а стоимость жизни значительно ниже.

Санузел
Санузел
Спальная комната
Спальная комната
Фасад
Фасад
В наших модульных домах можно жить круглый год, но для многих инвесторов это отличный вариант для отдыха и уединенного места, куда можно сбежать на выходные и в свободные дни.

Короткие сроки строительства также делают модульный дом Modern House 35 идеальным вариантом для инвесторов, планирующих построить более крупный комплекс домов для отдыха.

Как вам такой домик, пишите в комментариях!!!