Найти в Дзене
KPD Дизайн Интерьера

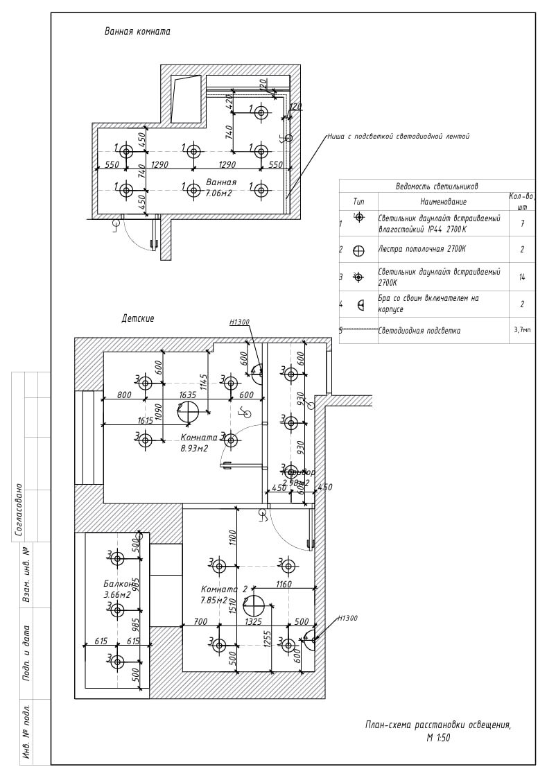
Электрика — самая недооценённая часть ремонта

Про свет вспоминают в конце. Когда стены уже стоят. Когда розетки уже выведены. Когда становится понятно, что: — телевизор не туда — чайник через удлинитель — выключатель один на весь коридор Смарт-электрика всегда делается вместе с планировкой. Потому что розетки зависят от мебели. А свет — от сценария жизни. Иначе потом штробят стены заново. Если электрика прлучается сложной, иногда заказчики хотят элементы умного дома или сам умный дом, мы делаем электропроект, чтоб собрать щиток с управлением правильно и у вас остались схемы, где какой кабель пролегает. Это в смарт электрику от меня не входит, но можно сделать 👌🏻 Трости и гвозди

Электрика — самая недооценённая часть ремонта

Про свет вспоминают в конце.

Когда стены уже стоят.

Когда розетки уже выведены.

Когда становится понятно, что:

— телевизор не туда

— чайник через удлинитель

— выключатель один на весь коридор

Смарт-электрика всегда делается вместе с планировкой.

Потому что розетки зависят от мебели.

А свет — от сценария жизни.

Иначе потом штробят стены заново. Если электрика прлучается сложной, иногда заказчики хотят элементы умного дома или сам умный дом, мы делаем электропроект, чтоб собрать щиток с управлением правильно и у вас остались схемы, где какой кабель пролегает. Это в смарт электрику от меня не входит, но можно сделать 👌🏻

Трости и гвозди