Найти в Дзене
ЮГ РОССИИ

В Астрахани из проекта застройки исключили поликлинику для нового ЖК

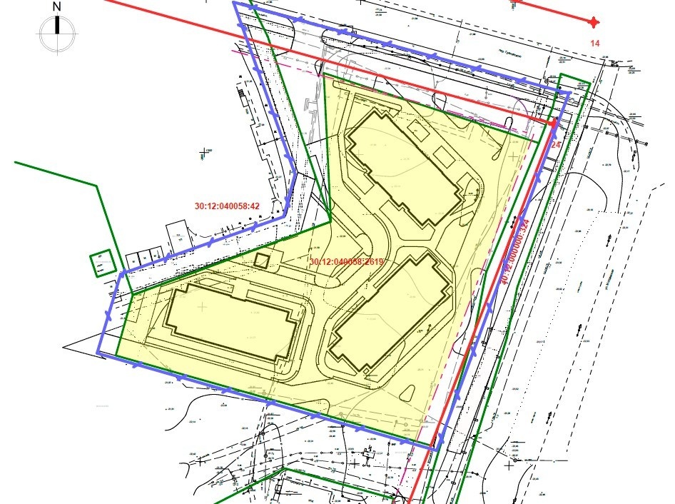
В Астрахани измененный проект застройки микрорайона «Военный городок» больше не включает строительство долгожданной поликлиники. Об этом сообщает издание «Пункт — А», изучившее документы, вынесенные на общественное обсуждение. Первоначальный план, утвержденный еще в 2018 году для компании «Лютан-Стройсервис», предусматривал возведение четырех многоэтажных домов. Ключевым социальным объектом в нем значилась встроенно-пристроенная поликлиника на 500 посещений в смену, которая должна была решить проблему нехватки медучреждений шаговой доступности в густонаселенном районе. Однако реализацию проекта начала другая компания — ООО «Специализированный застройщик АИБ», причем работы стартовали прошлым летом без необходимого разрешения, поэтому сейчас стройка остановлена судом. Параллельно застройщик инициировал внесение изменений в проект планировки. Согласно новому варианту, на пустыре появятся не четыре, а три жилых дома, но большей этажности: два 10-этажных и один 17-этажный. При этом от стро

В Астрахани измененный проект застройки микрорайона «Военный городок» больше не включает строительство долгожданной поликлиники. Об этом сообщает издание «Пункт — А», изучившее документы, вынесенные на общественное обсуждение.

Первоначальный план, утвержденный еще в 2018 году для компании «Лютан-Стройсервис», предусматривал возведение четырех многоэтажных домов. Ключевым социальным объектом в нем значилась встроенно-пристроенная поликлиника на 500 посещений в смену, которая должна была решить проблему нехватки медучреждений шаговой доступности в густонаселенном районе.

Однако реализацию проекта начала другая компания — ООО «Специализированный застройщик АИБ», причем работы стартовали прошлым летом без необходимого разрешения, поэтому сейчас стройка остановлена судом. Параллельно застройщик инициировал внесение изменений в проект планировки.

Согласно новому варианту, на пустыре появятся не четыре, а три жилых дома, но большей этажности: два 10-этажных и один 17-этажный. При этом от строительства поликлиники решено отказаться. В обосновании указано, что в 200 метрах есть земельный участок с разрешенным использованием под амбулаторно-поликлиническое обслуживание, а в 600 метрах — городская поликлиника №10.

-2

Однако, как отмечают коллеги, участок представляет собой пустырь, заросший тростником, а упомянутое подразделение поликлиники №10 обслуживает только детей. Взрослым жителям микрорайона по-прежнему приходится ездить за медицинской помощью в другие районы города.

Таким образом, жители растущего микрорайона, который пополнится новоселами из высоток, не получат обещанный объект здравоохранения. Нагрузка же на существующую транспортную и социальную инфраструктуру, по мнению издания, продолжит увеличиваться.

Фото: Пункт -А/ Яндекс карты