Добавить в корзинуПозвонить
Найти в Дзене
Правда ПФО

В уфимском квартале появятся многоэтажные дома и фуникулёр

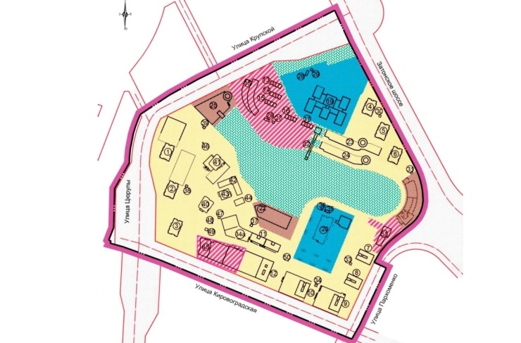
Мэр Уфы Ратмир Мавлиев утвердил планы планировки и межевания территории в границах улиц Кировоградской, Пархоменко, имени Города Галле и Крупской в Советском районе. Площадь квартала составляет 31,6 га. Документация разработана по заказу ООО Специализированный застройщик «Виракс». На данный момент на участке расположены частные дома, два многоэтажных, гостиница, административные здания, производственные, хозяйственные и складские постройки. Под снос пойдут индивидуальные дома и постройки общей площадью 34,8 тыс. кв. м. Проектом предусмотрено строительство 12 домов высотой от 25 до 31 этажа площадью 165,2 тыс. «квадратов». Встроенные помещения многоэтажек площадью 23 тыс. кв. м предназначены для коммерческих целей. В семи зданиях будут подземные паркинги. Кроме того, застройщик возведёт детский сад на 410 воспитанников, школу на 1 500 учеников, спортивно-оздоровительный комплекс на 216 мест, многоуровневые автостоянки, административное здание, хозяйственные корпуса и фуникулёр. Проект п

Мэр Уфы Ратмир Мавлиев утвердил планы планировки и межевания территории в границах улиц Кировоградской, Пархоменко, имени Города Галле и Крупской в Советском районе. Площадь квартала составляет 31,6 га. Документация разработана по заказу ООО Специализированный застройщик «Виракс».

На данный момент на участке расположены частные дома, два многоэтажных, гостиница, административные здания, производственные, хозяйственные и складские постройки. Под снос пойдут индивидуальные дома и постройки общей площадью 34,8 тыс. кв. м.

Проектом предусмотрено строительство 12 домов высотой от 25 до 31 этажа площадью 165,2 тыс. «квадратов». Встроенные помещения многоэтажек площадью 23 тыс. кв. м предназначены для коммерческих целей. В семи зданиях будут подземные паркинги. Кроме того, застройщик возведёт детский сад на 410 воспитанников, школу на 1 500 учеников, спортивно-оздоровительный комплекс на 216 мест, многоуровневые автостоянки, административное здание, хозяйственные корпуса и фуникулёр. Проект планируют реализовать до 2036 года.