Добавить в корзинуПозвонить
Найти в Дзене

Топоматик Робур - Ёмкости и КНС

Здравствуйте товарищи! И так, вопрос из студии - как нарисовать емкость и кнс на профиле?! Ответ очевиден! Долго, мытарно и с подводными камнями. Добро пожаловать на наш аттракцион с розовыми пони! Начинаем разбираться! Что мы имеем: 1. земля черная 2. земля красная 3. отрисованная сеть Как пример, вот кусок проекта, маленький неказистый, то очень показательный! В проекте у нас несколько выпусков объединенных в одну сеть. Отвод стоков идет в ПНУ (песко-нефте уловитель), а после очистки поступает в накопительную емкость. И как же нам создать такие емкости?! А создаются они на основе узлов библиотеки и tls элемента самой емкости. Вот ссылка на tls емкость https://cloud.mail.ru/public/1Kfv/kN2fmwygt Ссылка на КНС https://cloud.mail.ru/public/ujWL/B59nvf7ie После скачивания идет на канал Робура и от всёй души благодарим Бориса за данную емкость и его золотые руки!!! Это обязательно, без этого работать не будет =) После благодарностей, необходимо закинуть нашу емкость в проект и добавить в

Здравствуйте товарищи!

И так, вопрос из студии - как нарисовать емкость и кнс на профиле?!

Ответ очевиден! Долго, мытарно и с подводными камнями.

Добро пожаловать на наш аттракцион с розовыми пони! Начинаем разбираться!

Что мы имеем:

1. земля черная

2. земля красная

3. отрисованная сеть

Как пример, вот кусок проекта, маленький неказистый, то очень показательный!

Пример проекта
Пример проекта
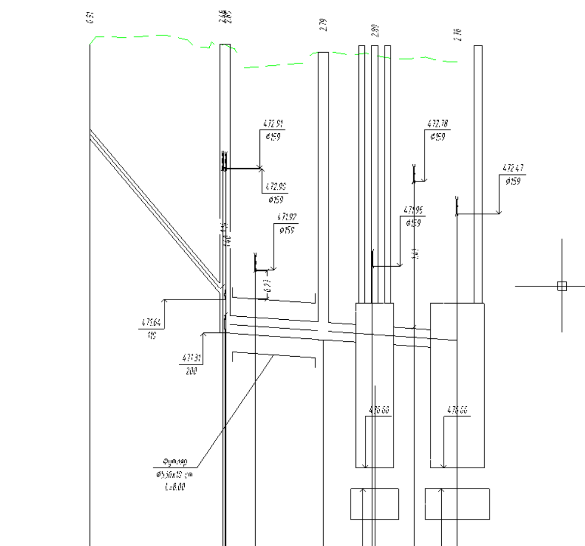
Профиль сети с емкостями
Профиль сети с емкостями

В проекте у нас несколько выпусков объединенных в одну сеть. Отвод стоков идет в ПНУ (песко-нефте уловитель), а после очистки поступает в накопительную емкость.

И как же нам создать такие емкости?!

А создаются они на основе узлов библиотеки и tls элемента самой емкости.

Вот ссылка на tls емкость https://cloud.mail.ru/public/1Kfv/kN2fmwygt

Ссылка на КНС https://cloud.mail.ru/public/ujWL/B59nvf7ie

После скачивания идет на канал Робура и от всёй души благодарим Бориса за данную емкость и его золотые руки!!! Это обязательно, без этого работать не будет =)

После благодарностей, необходимо закинуть нашу емкость в проект и добавить в библиотеку.

Закидываем в проект

Меню вставки
Меню вставки
Выбор файла
Выбор файла

Вставили на свободное место в проекте.

Далее сохраняем в библиотеке.

ПКМ по емкости
ПКМ по емкости
Вводим имя емкости
Вводим имя емкости

Сохранили?! Молодцы!

Теперь идем в шаблон конструкции узлов и создаем шаблон нашей емкости.

Меню создания шаблона
Меню создания шаблона
Создаем шаблон
Создаем шаблон

Идем в раздел секции и добавляем наш tlc элемент в секцию колодца.

Секции колодцев
Секции колодцев
Выбираем нашу емкость
Выбираем нашу емкость

Добавили, нажали "ОК"

На плане выбираем нужный нам колодец и применяем к нему наш шаблон емкости.

Меню шаблона конструкции узла
Меню шаблона конструкции узла
Выбираем нашу емкость
Выбираем нашу емкость

Применили.

Как видно из графики, круг колодца остался на месте, а вот элемент емкости у нас появился.

Емкость
Емкость

Но к сожалению емкость не появилась на профиле =( что бы это исправить, нужно перейти в свойства колодца и выбрать условный знак "разрез 3д модели".

Меняем свойство
Меняем свойство

Магия, волшебство, фейерверк, фанфары!!! И мы видим нашу емкость =)

Емкость на профиле
Емкость на профиле

Ну а теперь настраивать данную емкость. Топ, топ товарищи, мост и телеграф будут нашими!!!

Выбрав наш колодец, в свойствах можно увидеть массу всего интересного. Не буду описывать все режимы настройки и ввода данных. Главное, что вбив это всё, вы автоматом получите название для спецификации!!!

Меню спецификации
Меню спецификации

Вы только представьте, ввели название емкости, а всё остальное автоматом прописалось в спецификацию!!! Эх... хорошо то как! Спасибо тебе Борис за наше свободное время =)

Но, это так, лирика. Теперь нужно откорректировать это счастье на профиле по глубине заложения. А как? В свойствах, нужно дать правильную привязку нашего колодца. Верз узла - по отметке, а низ узла - по секциям.

Корректировка свойств
Корректировка свойств

Ну а дальше меняя отметку, мы видим как меняется положение емкости. Находим нужную отметку и пашем дальше.

Важное дополнение!!! отметка которую мы вводим, это отметка центра емкости!!! Емкость рисуется от центра круга. Отметка не дно емкости, а её центр!!!

Отметка это центр емкости
Отметка это центр емкости

Ну а что нам делать дальше, у нас труба доходит до середины емкости?! О_о

Да все просто, заходим в свойства протяженного элемента, то есть нашей трубы и меняем привязку равную длине половине корпуса емкости.

Меняем длину трубы
Меняем длину трубы

Так же поступаем и с другой трубой.

А для того, что бы у нас на профиле были были отметки трубы на входе в емкость, мы добавляем точку профиля. Указываем край нашей трубы.

Точка профиля
Точка профиля

Для тех кто не хочет так заморачиваться, есть вариант установки узла в точке подключения трубы к емкости. Просто добавляем один узел на нашу линию сети.

Напоследок нам осталось только заменить кружок колодца на плане на прямоугольник емкости. Тут уже не буду писать мануал, времени нет, но в свойствах колодца меняем условный знак на плане.

Условный знак на плане
Условный знак на плане

Не много рассуждений - данная емкость является супер-пупер универсальной. вот прям вообще высший пилотаж проектного искусства! Она может быть и подземной, и надземной, там и подушки под емкость, и утепление, и фундаменты с отступом от дна емкости, и автоматическая спецификация. и регулировка высоты горловины. Короче, много всего! Разбирайтесь.

Что касается КНС, её нужно допиливать. Но пилю не я, пилит Борис, поэтому тут ни чего сказать не могу. Что-то есть, уже хорошо.

Главное, я бы не рекомендовал вам пользоваться патрубками. Во первых при любом изменении вы устанете подгонять отметки патрубков к трубам, будут лететь отметки по фундаментам. Любая сдвижка приведет к мучительным и кропотливым изменениям. Ибо емкость настраивается каждый раз по разному.

Ну а теперь нужно правильно подписать нашу трубу.

Если посмотрим на нашу выноску длины трубы, то она считывается с сегмента, то есть от угла колодца до центра нашей емкости. И что нам делать?!

Как подсказал Борис (ох, выручаем он меня уже не в первый раз), нужно подписать не сам сегмент, а именно протяженный элемент. Во как оно оказывается =)

Ну вот смотрим картинку. Отключаем подпись сегмента

Отключаем выноску сегмента
Отключаем выноску сегмента

Кликая на сегмент, выбираем протяженный элемент

Выбор протяженного элемента
Выбор протяженного элемента

В свойствах видим, что изначально выноска протяженного элемента выключена. Мы включаем. И хоп, опп.... магия....

Включаем подпись протяженного элемента
Включаем подпись протяженного элемента

Как видно из картинки, длина поменялась. Ура! Ну и настроить можно данную подпись так как Вам захочется.

НУ и немного ссылок на каналы:

Канал Робура - t.me/topomatic_official

Канал экспертов Робура - t.me/robur_community (по всем вопросам Вам сюда)

Канал автоматизации Робура - t.me/RoburFanChat

Большое спасибо нашим разработчикам, особенно за их терпение и ответы на все вопросы. Ну и ещё раз, спасибо Борису @BorisBim

Нут вот и всё, с Вами был Ваш НЮ.