Добавить в корзинуПозвонить
Найти в Дзене

Слегка пропала, потому что жаркий месяц - 4 проекта идут параллельно

🔥 ЖК Остров ЖК Амурский парк Квартира в Троицке Квартира на Ленинградке Остров уже частично показывала здесь, скоро покажу новые красивейшие визуализации других помещений ✨ А сегодня делюсь планировками для ЖК Амурский парк. Квартира с готовой отделкой под аренду. Задача: ✅ сделать красиво, не нарушая текущую электрику, ✅ эффектно, но без больших вложений 🔥 ✅ функционально, продуманно и удобно для повседневной жизни ☝🏽Для таких квартир я всегда делаю не просто планы расстановки, но и планы с наложением точек электрики, чтобы сразу было наглядно видно, как будут расположены розетки и выключатели относительно мебели. Какой вариант выбрали бы вы? Левый - ❤️ Правый - 🔥 #ЖКАмурскийпарк #планировка #проекты

Слегка пропала, потому что жаркий месяц - 4 проекта идут параллельно 🔥

ЖК Остров

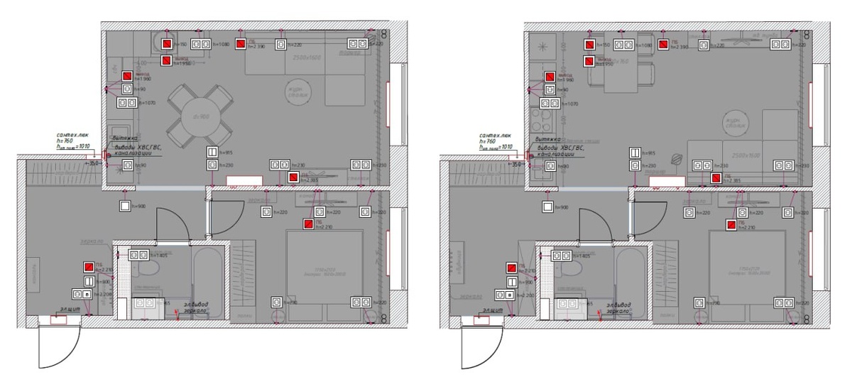
ЖК Амурский парк

Квартира в Троицке

Квартира на Ленинградке

Остров уже частично показывала здесь, скоро покажу новые красивейшие визуализации других помещений ✨

А сегодня делюсь планировками для ЖК Амурский парк.

Квартира с готовой отделкой под аренду. Задача:

✅ сделать красиво, не нарушая текущую электрику,

✅ эффектно, но без больших вложений 🔥

✅ функционально, продуманно и удобно для повседневной жизни

☝🏽Для таких квартир я всегда делаю не просто планы расстановки, но и планы с наложением точек электрики, чтобы сразу было наглядно видно, как будут расположены розетки и выключатели относительно мебели.

Какой вариант выбрали бы вы?

Левый - ❤️

Правый - 🔥

#ЖКАмурскийпарк #планировка #проекты

-2