Найти в Дзене

Технический паспорт, полная инструкция.

Добрый день! В этой статье расскажем, что такое технический паспорт, зачем он нужен и как получить его быстро и без лишних трат. А ещё ответим на вопрос, который нам задают чаще всего: чем техпаспорт отличается от технического плана. Дочитайте до конца — узнаете! Начнём с определения. Технический паспорт здания (или помещения) — это документ, где собраны все технические и качественные характеристики объекта капитального строительства. Если говорить совсем просто, техпаспорт — это паспорт вашего дома. Как у человека: есть имя, дата рождения и особые приметы. Так и у дома: в документе указано, из чего он построен (кирпич, брус или газоблок), сколько этажей и комнат, какая у него площадь и даже высота потолков. Техпаспорт фиксирует физическое состояние недвижимости на конкретный момент времени. Ситуаций, когда без него не обойтись, немало. Вот самые частые: 1. Чтобы снизить тариф на электричество.
Если ваш дом в Ленинградской области или Санкт-Петербурге не подключён к газу и отапливается
Оглавление

Добрый день! В этой статье расскажем, что такое технический паспорт, зачем он нужен и как получить его быстро и без лишних трат. А ещё ответим на вопрос, который нам задают чаще всего: чем техпаспорт отличается от технического плана. Дочитайте до конца — узнаете!

Что такое технический паспорт?

Начнём с определения. Технический паспорт здания (или помещения) — это документ, где собраны все технические и качественные характеристики объекта капитального строительства.

Если говорить совсем просто, техпаспорт — это паспорт вашего дома. Как у человека: есть имя, дата рождения и особые приметы. Так и у дома: в документе указано, из чего он построен (кирпич, брус или газоблок), сколько этажей и комнат, какая у него площадь и даже высота потолков. Техпаспорт фиксирует физическое состояние недвижимости на конкретный момент времени.

В каких случаях может понадобиться техпаспорт?

Ситуаций, когда без него не обойтись, немало. Вот самые частые:

1. Чтобы снизить тариф на электричество.
Если ваш дом в Ленинградской области или Санкт-Петербурге не подключён к газу и отапливается электроприборами, вы имеете право обратиться в энергоснабжающую организацию и платить за свет меньше. Для этого нужен техпаспорт.

2. Для продажи или покупки дома в ипотеку.
Банку важно знать реальную рыночную стоимость недвижимости, под которую он выдаёт кредит. Поэтому он заказывает отчёт об оценке. А оценщикам, которые делают отчет, для работы нужен как раз технический паспорт.

3. Для подключения газа.
Компании, которая будет подводить газ, нужно точно знать размеры,конфигурацию и расположение помещений в здании. Это необходимо, чтобы рассчитать мощность оборудования, правильно его разместить и обеспечить безопасность. В некоторых случаях техпаспорт требуют обязательно.

4. Для получения субсидий на улучшение жилищных условий.
Государству нужно оценить ваше жильё, прежде чем выдавать субсидию. И снова без техпаспорта не обойтись.

Как делают технический паспорт?

Процесс создания документа состоит из трёх этапов:

1. Выезд специалиста. На участок приезжает геодезист. Он определяет координаты всех углов здания, заходит внутрь, тщательно обмеряет каждое помещение и заполняет анкету с описанием конструктивных особенностей дома.

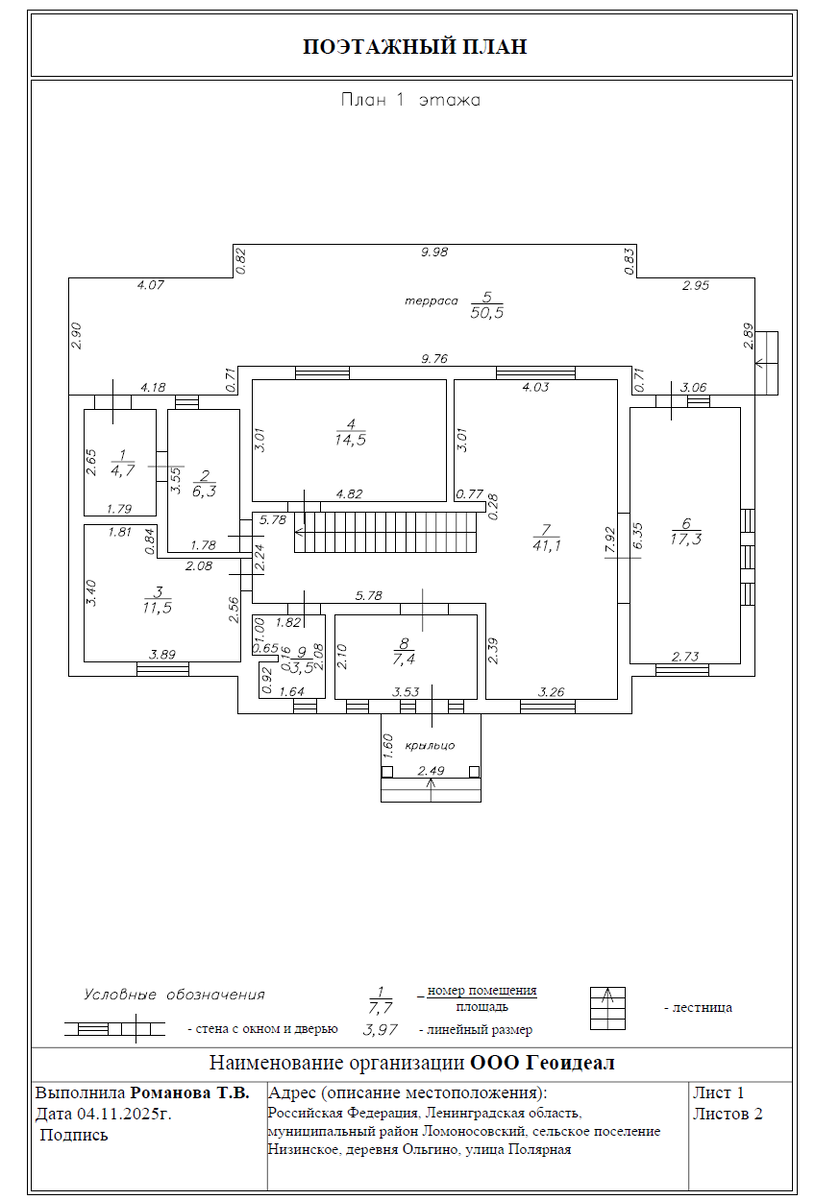
2. Подготовка чертежей. По результатам замеров создаётся поэтажный план. На нём видна конфигурация и расположение комнат, общая площадь и высота потолков. Также делается экспликация — это просто описание, какое помещение для чего предназначено (кухня, спальня и так далее).

3. Сборка документа. Вся информация собирается в единый документ — технический паспорт. Его прошивают и ставят печать организации.

Лайфхак, как сэкономить. Если у вас уже есть технический план и после регистрации дома вы ничего в нём не меняли, смело отдавайте его в кадастровую компанию. Это значительно удешевит изготовление техпаспорта: специалистам не придётся снова выезжать на место и делать обмеры.

Пример технического паспорта.

Поэтажный план, делается на каждый этаж здания.
Поэтажный план, делается на каждый этаж здания.
Информация об объекте
Информация об объекте
Экспликация помещений
Экспликация помещений
Техническое описание
Техническое описание

Кто может сделать техпаспорт?

Многие ошибочно полагают, что этим занимается только БТИ. На самом деле заказать техпаспорт можно в любой кадастровой компании, где работают аттестованные кадастровые инженеры.

Чем технический паспорт отличается от технического плана?

Эти документы действительно часто путают из-за похожих названий. Давайте раз и навсегда разберёмся в различиях.

1. Назначение. Технический план нужен, чтобы поставить здание на кадастровый учёт или зарегистрировать изменения после реконструкции. Его сдают в Росреестр.

2. Обращение. Технический паспорт в Росреестр не сдают. Его предоставляют по требованию в банки, энергосбытовые компании и другие организации.

3. Содержание. В техническом паспорте гораздо больше информации о конструктивных особенностях и характеристиках здания, чем в техплане. Он подробнее.

4. Площадь. Методика подсчёта площадей в этих двух документах отличается. Поэтому цифры в техпаспорте и техплане на один и тот же объект могут немного не совпадать. Это нормально.

Надеюсь, эта статья помогла вам разобраться в теме. Если у вас остались вопросы, или вы хотите понять стоимость изготовления технического паспорта для вашего конкретного дома в Ленинградской области и Санкт-Петербурге — не стесняйтесь, пишите или звоните.

8(812)467-37-36
8(950) 228-77-97 ТОЛЬКО MAX/TELEGRAM
Читайте подробнее о межевании и других видах кадастровых работ
https://vk.cc/cUzyuu
почта: geo.ideal@yandex.ru
Адрес: Санкт-Петербург, ул. Профессора Качалова, 7, БЦ Мельник, 11 этаж