Добавить в корзинуПозвонить
Найти в Дзене

🔥 Сделали квартиру 36 м² визуально дороже для сдачи в аренду (12+ фото)

С удовольствием расскажу вам о проекте, который мы недавно завершили. Это квартира, которую мы готовили для сдачи в аренду, и времени у нас было совсем немного. Адрес: ЖК Кит Кол-во комнат: 1 Площадь: 36 м² Стиль: современный
Заказчик: молодая пара, работают из дома, ценят спокойные цвета и открытый интерьер Планировка Для наглядности покажу вам планировку квартиры без мебели.👇 И с расстановкой мебели.👇 Общая концепция и пожелания заказчика
👉 Заказчик хотел, чтобы интерьер получился современным, но при этом достаточно универсальным, чтобы понравиться как можно большему числу людей. Основу всей квартиры составили спокойные, светлые оттенки бежевого и серого. Мы предусмотрели возможность добавить яркие акценты – их будет легко заменить, если захочется освежить интерьер. Вот как это выглядит в дизайн-проекте.👇 ✅ Решение 1) Мы позаботились о том, чтобы розеток было достаточно, и они были расположены удобно. Особенно много их в зоне телевизора и на рабочем месте, чтобы не было п
Оглавление

С удовольствием расскажу вам о проекте, который мы недавно завершили. Это квартира, которую мы готовили для сдачи в аренду, и времени у нас было совсем немного.

Текст помогла составить дизайнер компании Domeo
Текст помогла составить дизайнер компании Domeo

О проекте:

Адрес: ЖК Кит
Кол-во комнат: 1
Площадь: 36 м²
Стиль: современный

Заказчик: молодая пара, работают из дома, ценят спокойные цвета и открытый интерьер

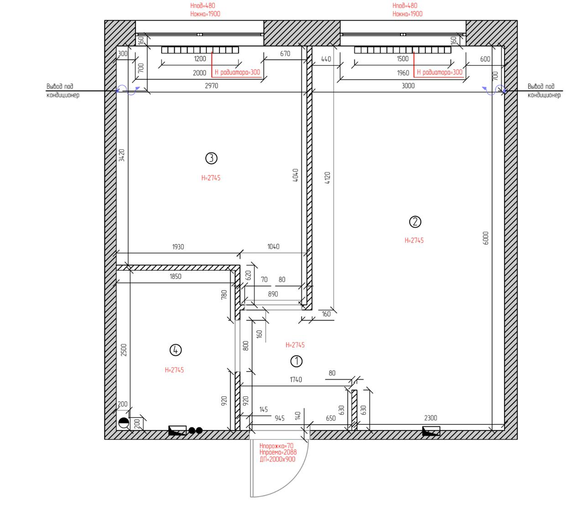
Планировка

Для наглядности покажу вам планировку квартиры без мебели.👇

Проект Domeo
Проект Domeo

И с расстановкой мебели.👇

Проект Domeo
Проект Domeo

Общая концепция и пожелания заказчика

👉
Заказчик хотел, чтобы интерьер получился современным, но при этом достаточно универсальным, чтобы понравиться как можно большему числу людей.

Основу всей квартиры составили спокойные, светлые оттенки бежевого и серого. Мы предусмотрели возможность добавить яркие акценты – их будет легко заменить, если захочется освежить интерьер. Вот как это выглядит в дизайн-проекте.👇

Проект Domeo
Проект Domeo

✅ Решение

1) Мы позаботились о том, чтобы розеток было достаточно, и они были расположены удобно. Особенно много их в зоне телевизора и на рабочем месте, чтобы не было проблем с подключением техники.

2)
Освещение тоже сделали многоуровневым: есть основной свет, приятная подсветка по периметру потолка и локальный свет там, где он нужен – например, над рабочей зоной. В итоге получилось очень практичное и гибкое пространство, которое подойдет для самых разных сценариев жизни арендаторов.

Давайте пройдемся по комнатам😍

ПРИХОЖАЯ

В прихожей мы тоже придерживались спокойной, нейтральной гаммы – здесь преобладают серые и белые оттенки. Слева есть такая интересная ниша с вертикальной решеткой – она добавляет легкий индустриальный штрих, который сейчас очень актуален.

Большое зеркало в металлической раме отлично дополняет эту композицию. Пол у нас светлый, он поддерживает общую светлую атмосферу. А мягкое, точечное освещение равномерно распределяет свет, делая прихожую уютной и гостеприимной с самого порога.

Фото проекта с ремонтом от DOMEO
Фото проекта с ремонтом от DOMEO

БЕСПЛАТНЫЙ РАСЧЕТ СТОИМОСТИ РЕМОНТА И ДИЗАЙНА👇

-7

Точную стоимость всего ремонта, вы можете получить в этом калькуляторе Domeo -> https://domeo.ru/remont

КАЛЬКУЛЯТОР

КУХНЯ-ГОСТИНАЯ

Это сердце квартиры, где продумано все для комфортной жизни: здесь можно и готовить, и отдыхать, и работать, и принимать гостей. Кухонный гарнитур мы выбрали в таком приятном, мягком оливковом цвете, со всей встроенной техникой – выглядит очень аккуратно и современно.

Фото проекта с ремонтом от DOMEO
Фото проекта с ремонтом от DOMEO

Обеденная зона у нас с круглым столом и удобными стульями – идеальное место для уютных завтраков и ужинов.

Фото проекта с ремонтом от DOMEO
Фото проекта с ремонтом от DOMEO

А в зоне отдыха стоит терракотовый диван – он добавляет интерьеру тепла и является главным цветовым акцентом.

Фото проекта с ремонтом от DOMEO
Фото проекта с ремонтом от DOMEO

Рядом с телевизором мы нашли место для небольшого рабочего уголка, а легкие подвесные светильники подчеркивают общий стиль.

Фото проекта с ремонтом от DOMEO
Фото проекта с ремонтом от DOMEO

Сколько стоит ремонт квартиры в 2026 году?👇

Точную стоимость всего ремонта, вы можете получить в этом калькуляторе Domeo -> https://domeo.ru/remont

КАЛЬКУЛЯТОР

СПАЛЬНЯ

Спальня получилась очень светлой и спокойной. В центре – большая двуспальная кровать с приятным серым текстилем. По бокам – прикроватные тумбочки с деревянными фасадами, которые добавляют немного природного тепла. Над кроватью мы повесили два настенных светильника – они создают мягкий свет, идеальный для чтения перед сном.

Фото проекта с ремонтом от DOMEO
Фото проекта с ремонтом от DOMEO

Слева в комнате расположен встроенный шкаф – он не только очень вместительный, но и визуально не перегружает пространство.

Фото проекта с ремонтом от DOMEO
Фото проекта с ремонтом от DOMEO

На стене напротив кровати – телевизор, а точечные светильники на потолке обеспечивают мягкое и равномерное освещение.

Фото проекта с ремонтом от DOMEO
Фото проекта с ремонтом от DOMEO

САНУЗЕЛ

Санузел оформлен в свежей голубовато-серой гамме. Стены облицованы плиткой с фактурой, напоминающей кирпичную кладку, - это придаёт интерьеру выразительность и современный характер.

-16

Душевая зона отделена стеклянной перегородкой, а раковина и стиральная машина аккуратно вписаны в общую композицию, делая санузел не только стильным, но и функциональным.

-18

Domeo советует начать свой ремонт с 2-х простых шагов:

1. Заранее узнайте стоимость вашего ремонта в 3-х вариантах. Бесплатно рассчитайте тут: ✅ domeo.ru/remont
2. Выбрать подходящего дизайнера для визуализации своих идей! Бесплатно выберите своего дизайнера здесь: ✅ domeo.ru/design
-19

Насколько, на ваш взгляд, проект удобен и практичен для повседневной жизни? Поделитесь в комментариях?👇

ПОДПИШИТЕСЬ и смотрите больше дизайнерских проектов в подборке канала:👇

Портфолио DOMEO | DOMEO | РЕМОНТ КВАРТИР | НЕДВИЖИМОСТЬ | Дзен