Добавить в корзинуПозвонить
Найти в Дзене

Почему в доме из бруса щели? 7 главных причин и решение от SILAREX

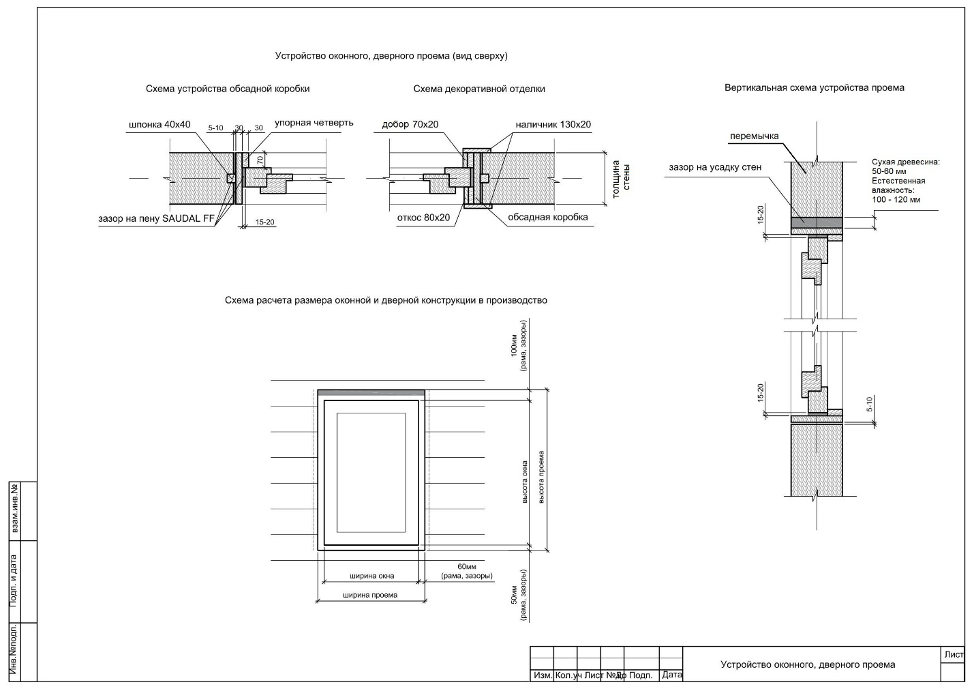
На образование щелей между венцами (рядами) стен брусчатых и бревенчатых зданий влияет все то, что препятствует нормальной усадке деталей в течение времени, а именно: 1. Не правильно устроенные оконные и дверные проемы, в результате чего оконные и дверные конструкции становятся «Опорой», на которой впоследствии виснут перемычки стен в зоне проемов.
Причиной чаще всего являются обсадные коробки, или точнее неправильно изготовленные конструкции, у которых неверно предусмотрен (рассчитан) технологический зазор между рамой обсадной коробки и перемычкой стен, а также неправильно выполнено устройство скользящей шпонки, находящейся в пазе стены, к которой собственно она и прикреплена. 2. Не правильно выполненные угловые соединения брусчатых или бревенчатых деталей стен деревянного здания, которые не имеют необходимых зазоров для оборачивания «шейки углового соединения» уплотнительным материалом, что приводит к попаданию уплотнителя в профиль между деталями и детали не могут сплотиться между с

На образование щелей между венцами (рядами) стен брусчатых и бревенчатых зданий влияет все то, что препятствует нормальной усадке деталей в течение времени, а именно:

1. Не правильно устроенные оконные и дверные проемы, в результате чего оконные и дверные конструкции становятся «Опорой», на которой впоследствии виснут перемычки стен в зоне проемов.
Причиной чаще всего являются обсадные коробки, или точнее неправильно изготовленные конструкции, у которых неверно предусмотрен (рассчитан) технологический зазор между рамой обсадной коробки и перемычкой стен, а также неправильно выполнено устройство скользящей шпонки, находящейся в пазе стены, к которой собственно она и прикреплена.

SILAREX.INFO
SILAREX.INFO

2. Не правильно выполненные угловые соединения брусчатых или бревенчатых деталей стен деревянного здания, которые не имеют необходимых зазоров для оборачивания «шейки углового соединения» уплотнительным материалом, что приводит к попаданию уплотнителя в профиль между деталями и детали не могут сплотиться между собою даже при стягивании Пружинным узлом.

3. Отсутствие зазоров в зоне «ветрового замка» угловых соединений, что не позволяет установить детали на свое место без дополнительных усилий, и работники попросту «вбивают» детали на свое место рассчитывая на то, что усушка древесины и общая масса стен следующих рядов устранят со временем «зажатость» деталей между собою, чего на практике не случится.

4. Отсутствие зазоров между шейками рядов (венцов) угловых соединений «по высоте» не позволяет качественно обернуть уплотнитель и при сплачивании ряды (венцы) «повисают» на уплотнителе, препятствуя тем самым устранению зазоров (щелей).

5. Не правильно изготовленные или уже подвергшиеся усушке или набуханию на момент сборки продольные профили деталей, в результате чего не получается в процессе сборки качественно сплотить ряды между собою, что также не позволяет устранять щели в процессе сборки.

6. Ошибочная сборка деталей стен на шпильку или на нагели приводит к 100% образованию щелей, так как шпилька стягивает только при сборке стен, а нагель вообще не крепеж и не стягивает ничего, где в течение времени неминуемо образование щелей.

7. Сборка стен здания без применения пружинных узлов «SILAREX» оставляет детали конструкции в свободном состоянии, в результате чего отсутствует принудительное стягивание деталей с полным устранением щелей на момент сборки с силой до 1000 кгс и стягивания деталей в течение времени силой пружин сжатия до 700 кгс.

SILAREX.INFO
SILAREX.INFO

📍 Заложенные уже на стадии производства и строительства, упомянутые недостатки, будут являться причиной образования зазоров (щелей), как на момент сборки дома комплекта, так и в течение времени, но понимание причин и применение технологии «SILAREX» для сборки стен Вашего деревянного здания предотвратят необратимое.

-4

Пружинный узел «SILAREX» – это единственный качественный крепеж для сборки стен Вашего здания, который предотвратит образование щелей стыков, без необходимости обслуживания зданий в течение времени.

теги: #Сруб щели #Здание из бруса и бревна #Пружинный узел #Усадка деталей #Нагель