Добавить в корзинуПозвонить
Найти в Дзене

Несмотря на СКРОМНЫЙ бюджет, получился очень СТИЛЬНЫЙ ИНТЕРЬЕР в квартире-вторичке 38 м² 🔥

Хочу поделиться с вами нашим новым проектом – мы создали дизайн-проект для очаровательной девушки, которая живет в своей уютной однокомнатной квартире вместе с любимыми питомцами – собакой и кошкой. Это была вторичка, но мы постарались вдохнуть в нее новую жизнь! Адрес: СПБ, ул. Гаккелевская Кол-во комнат: 1 Площадь: 38 м² Стиль: современная классика Нам предстояло работать с квартирой вот такой планировки.👇 А здесь уже показана расстановка мебели со всеми размерами.👇 Наша заказчица работает из дома, поэтому для нее было очень важно создать спокойную и гармоничную атмосферу. Мы остановились на современной классике в нежной бежево-белой гамме. И знаете, даже с учетом довольно скромного бюджета, нам удалось добиться потрясающего результата – квартира преобразилась до неузнаваемости! Посмотрите, как в дизайн-проекте подробно описаны детали оформления интерьера - не "приблизительно тут будет стол, а где-то тут - повесим телевизор...", а все точно, с указанием всех деталей. Теперь посмот
Оглавление

Хочу поделиться с вами нашим новым проектом – мы создали дизайн-проект для очаровательной девушки, которая живет в своей уютной однокомнатной квартире вместе с любимыми питомцами – собакой и кошкой. Это была вторичка, но мы постарались вдохнуть в нее новую жизнь!

Текст помогла составить дизайнер компании Domeo
Текст помогла составить дизайнер компании Domeo

О проекте:

Адрес: СПБ, ул. Гаккелевская
Кол-во комнат: 1
Площадь: 38 м²
Стиль: современная классика

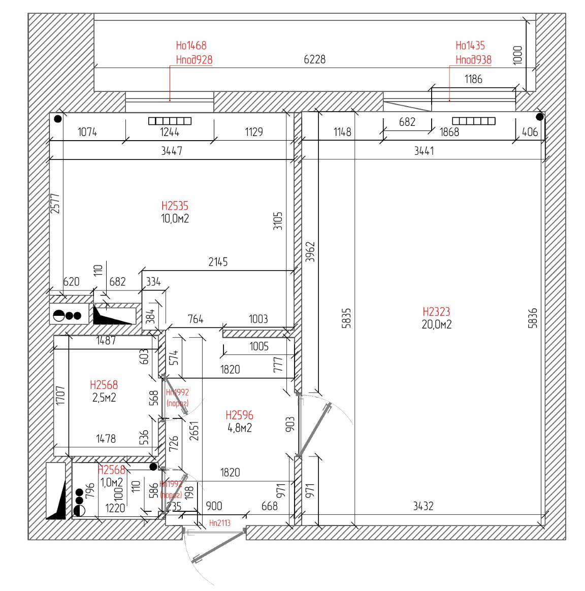
Планировка

Нам предстояло работать с квартирой вот такой планировки.👇

Планировка квартиры
Планировка квартиры

А здесь уже показана расстановка мебели со всеми размерами.👇

Планировка квартиры с расстановкой мебели
Планировка квартиры с расстановкой мебели

Наша заказчица работает из дома, поэтому для нее было очень важно создать спокойную и гармоничную атмосферу. Мы остановились на современной классике в нежной бежево-белой гамме. И знаете, даже с учетом довольно скромного бюджета, нам удалось добиться потрясающего результата – квартира преобразилась до неузнаваемости!

Посмотрите, как в дизайн-проекте подробно описаны детали оформления интерьера - не "приблизительно тут будет стол, а где-то тут - повесим телевизор...", а все точно, с указанием всех деталей.
Проект Domeo
Проект Domeo

Теперь посмотрим, как выглядит интерьер.👇

ПРИХОЖАЯ

Фото проекта с ремонтом от DOMEO
Фото проекта с ремонтом от DOMEO

Здесь у нас акцентная деревянная вешалка-панель с тремя рядами крючков – очень удобно для верхней одежды и сумок. А еще – ростовое зеркало от пола до потолка с подвесной полочкой-консолью, куда можно положить ключи или любимый парфюм.

Фото проекта с ремонтом от DOMEO
Фото проекта с ремонтом от DOMEO

Рядом – удобный пуф-цилиндр в классическом стиле, который легко задвигается под консоль, и небольшой двухдверный шкафчик для хозяйственных мелочей.

Кстати, мы прикрепили к входной двери еще одно зеркало – оно не только визуально расширяет пространство, но и позволяет перед выходом из дома убедиться, что все в порядке с нарядом и прической. Для молодой девушки это просто незаменимый элемент!

Фото проекта с ремонтом от DOMEO
Фото проекта с ремонтом от DOMEO

Планируете ремонт квартиры?👇

-8

Точную стоимость всего ремонта, вы можете получить в этом калькуляторе Domeo -> https://domeo.ru/remont

КАЛЬКУЛЯТОР

КУХНЯ

Кухня получилась невероятно уютной, стильной и эргономичной. Несмотря на свои компактные размеры, мы смогли уместить здесь несколько функциональных зон: угловую кухню-нишу, обеденную зону, уголок для отдыха, систему хранения и даже специальное место для кошки!

В кухне-нише есть все, что нужно: встроенные холодильник, мойка, посудомоечная машина, плита, духовой шкаф с СВЧ, удобные разделочные столы и вместительные верхние шкафы.

Фото проекта с ремонтом от DOMEO
Фото проекта с ремонтом от DOMEO

Обеденная зона очень эргономичная – круглый стол на цилиндрической ножке-основании и четыре комфортных кресла-стула.

Мы даже нашли место для кресла для отдыха с журнальным столиком! Теперь хозяйка может расслабиться с книжкой или чашечкой кофе, пока готовится что-то вкусненькое.

Фото проекта с ремонтом от DOMEO
Фото проекта с ремонтом от DOMEO

Система хранения – это встроенный модуль-шкаф для книг и декора с полками с подсветкой за тонированным стеклом. Он придает обстановке особый уют и нотку тихого шика.

И, конечно, мы не забыли про любимого кота! По желанию заказчицы, мы организовали для него целый уголок в укромном месте – домик на подставке, подвесные игрушки и лесенка.

Несмотря на спокойную цветовую гамму, кухня получилась очень интересной благодаря любопытным цветовым, световым и текстурным акцентам: отделка верхних шкафов кухни-ниши, обеденный стол с черным основанием, кухонный фартук под камень, который подсветка делает еще выразительнее, модуль для книг с тонированным стеклом и подсветкой, оригинальная дизайнерская люстра и панно в золотистых рамах на абстрактную тему.

Фото проекта с ремонтом от DOMEO
Фото проекта с ремонтом от DOMEO

Сколько стоит ремонт квартиры в 2026 году?👇

Точную стоимость всего ремонта, вы можете получить в этом калькуляторе Domeo -> https://domeo.ru/remont

КАЛЬКУЛЯТОР

ГОСТИНАЯ-СПАЛЬНЯ

Мы тут постарались совместить современный минимализм, чтобы было функционально и удобно, с такой спокойной, элегантной классикой. Получилось очень гармонично, на мой взгляд: продумано целых четыре полноценные зоны, чтобы всё было под рукой и ничего лишнего: есть зона для сна, гостевая, мини-кабинет и, конечно, вместительная система хранения.

Фото проекта с ремонтом от DOMEO
Фото проекта с ремонтом от DOMEO

Зона сна - большая, очень комфортная кровать на ножках с таким мягким изголовьем, прямо так и манит отдохнуть. А рядом – минималистичная тумбочка с двумя выдвижными ящичками, очень удобно для всяких мелочей.

Фото проекта с ремонтом от DOMEO
Фото проекта с ремонтом от DOMEO

Гостевая зона – это наш уютный уголок. Здесь стоит такой мягкий, удобный диванчик, золотистый кофейный столик, который добавляет шика, и, конечно, большая ТВ-плазма с подвесной тумбой.

Фото проекта с ремонтом от DOMEO
Фото проекта с ремонтом от DOMEO

А под телевизором мы разместили узкую подвесную полочку для декора и книг, которая очень плавно переходит в подвесной компьютерный стол. Компьютерный стол – это продолжение той самой полочки для декора и книг, что очень здорово экономит место в небольшой квартире. А дополняет его удобное кресло-стул, чтобы работать было максимально комфортно.

ВАННАЯ И САНУЗЕЛ

Здесь есть ванна, раковина-чаша с подвесной тумбой, большое круглое зеркало с подсветкой над ней. И, что очень важно, по просьбе заказчицы мы встроили стиральную машину. Над ванной – подвесные полочки для всех ваших средств для водных процедур, и, конечно, полотенцесушитель.

Фото проекта с ремонтом от DOMEO
Фото проекта с ремонтом от DOMEO

Как и вся квартира, ванная оформлена в спокойной, светлой гамме, но и здесь есть свои цветовые и текстурные акценты. Например, стена из керамогранита в кофейных тонах над ванной, столешница тумбы из темного дерева и золотистая отделка приборов и аксессуаров: смесителей, полотенцесушителя, ручки двери. Выглядит очень стильно!

Фото проекта с ремонтом от DOMEO
Фото проекта с ремонтом от DOMEO

И, наконец, санузел. Он еще более компактный, чем ванная, и включает только самое основное – подвесной унитаз. И, как и в ванной, приборы и аксессуары здесь тоже имеют акцентную золотистую отделку.

Фото проекта с ремонтом от DOMEO
Фото проекта с ремонтом от DOMEO
-19

Domeo советует начать свой ремонт с 2-х простых шагов:

1. Заранее узнайте стоимость вашего ремонта в 3-х вариантах. Бесплатно рассчитайте тут: ✅ domeo.ru/remont
2. Выбрать подходящего дизайнера для визуализации своих идей! Бесплатно выберите своего дизайнера здесь: ✅ domeo.ru/design
-20

Надеюсь, вам понравился наш проект! Мы очень старались сделать его максимально удобным и красивым.

Подпишитесь на наш канал, и мы откроем для вас мир стильного дизайна и качественного ремонта.

Смотрите больше наших проектов:👇