Найти в Дзене

Индивидуальный двухэтажный дом с вальмовой крышей и большой террасой общей площадью 270 м²

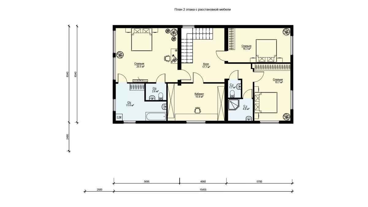
🏡 Представляем наш новый проект — Проект БП-269! 🌟 Индивидуальный двухэтажный дом с вальмовой крышей и большой террасой общей площадью 270 м² — идеальный выбор для тех, кто ценит простор и комфорт. ✨ 📝 Описание проекта: Первый этаж: тамбур, холл, гостиная, кухня с кладовой, спальня с гардеробом и отдельным санузлом, дополнительный санузел и техническое помещение 🛋🍽🛁 Второй этаж: просторный холл, 3 спальни (две с отдельными санузлами), кабинет и санузел — всё для вашего удобства! 🛏📚🛁 Этот дом создаст уютную атмосферу для всей семьи и станет вашим личным уголком комфорта. 🏠💖 🔹 Хотите узнать больше? Подробнее о проекте → https://benpan.ru/project/bp-269/?utm_source=dzen
🔹 Готовы построить свой дом уже сейчас? Звоните! 📞 +7 (495) 260-98-32 Какие особенности дома для вас самые важные? Простор или функциональность? Делитесь в комментариях! #новыйпроект #доммечты #загородныйдом #строительство #индивидуальныйдом #комфорт #жилье #загороднаяжизнь #архитектура #высокийстандарт

🏡 Представляем наш новый проект — Проект БП-269! 🌟

-2
-3
-4
-5

Индивидуальный двухэтажный дом с вальмовой крышей и большой террасой общей площадью 270 м² — идеальный выбор для тех, кто ценит простор и комфорт. ✨

📝 Описание проекта:

Первый этаж: тамбур, холл, гостиная, кухня с кладовой, спальня с гардеробом и отдельным санузлом, дополнительный санузел и техническое помещение 🛋🍽🛁

Второй этаж: просторный холл, 3 спальни (две с отдельными санузлами), кабинет и санузел — всё для вашего удобства! 🛏📚🛁

Этот дом создаст уютную атмосферу для всей семьи и станет вашим личным уголком комфорта. 🏠💖

🔹 Хотите узнать больше? Подробнее о проекте → https://benpan.ru/project/bp-269/?utm_source=dzen
🔹 Готовы построить свой дом уже сейчас? Звоните! 📞 +7 (495) 260-98-32

Какие особенности дома для вас самые важные? Простор или функциональность? Делитесь в комментариях!

#новыйпроект #доммечты #загородныйдом #строительство #индивидуальныйдом #комфорт #жилье #загороднаяжизнь #архитектура #высокийстандарт