Найти в Дзене
Берег Песочной

Представляем индивидуальный жилой дом БП-224/2 площадью 253,6 м² — идеальное решение для большой семьи

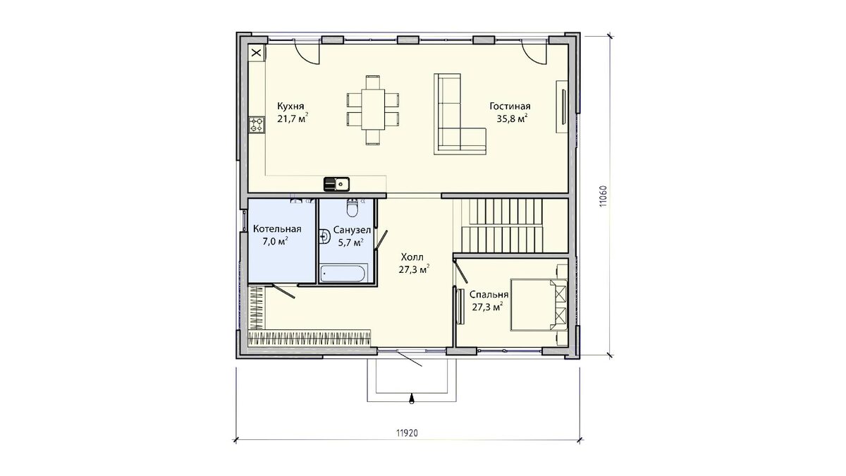
🏡 Представляем индивидуальный жилой дом БП-224/2 площадью 253,6 м² — идеальное решение для большой семьи! 🌟 Построен из ЖБ панелей БЭНПАН Премиум, что гарантирует надежность и современный стиль. ✨ Основные характеристики: ✔️ Высота первого этажа — 3,2 м, второго — 3,05 м, создающие ощущение простора и комфорта ✔️ Дом предназначен для семьи из 7-8 человек, идеально подходит для комфортного совместного проживания 🛋 На первом этаже расположены: 🔹 Просторный холл, соединенный с гардеробной 🔹 Котельная и санузел для удобства 🔹 Спальня и объединенная кухня с гостиной — идеальное место для отдыха и встреч с семьей и друзьями 🛏 На втором этаже: 🔹 Холл, общий санузел и гардеробная 🔹 4 спальни, одна из которых — мастер-спальня 🔹 Все спальни имеют выход на уютные балконы, где можно наслаждаться свежим воздухом и видом 🌳 🔗 Подробнее о проекте → https://beregpesochnoy.ru/construction/lot-no8b/?utm_source=dzen
📞 Заинтересовались? Звоните или пишите! +7 (495) 241-50-64 ✨ А какая комнат

🏡 Представляем индивидуальный жилой дом БП-224/2 площадью 253,6 м² — идеальное решение для большой семьи!

-2
-3
-4
-5

🌟 Построен из ЖБ панелей БЭНПАН Премиум, что гарантирует надежность и современный стиль.

✨ Основные характеристики:

✔️ Высота первого этажа — 3,2 м, второго — 3,05 м, создающие ощущение простора и комфорта

✔️ Дом предназначен для семьи из 7-8 человек, идеально подходит для комфортного совместного проживания

🛋 На первом этаже расположены:

🔹 Просторный холл, соединенный с гардеробной

🔹 Котельная и санузел для удобства

🔹 Спальня и объединенная кухня с гостиной — идеальное место для отдыха и встреч с семьей и друзьями

🛏 На втором этаже:

🔹 Холл, общий санузел и гардеробная

🔹 4 спальни, одна из которых — мастер-спальня

🔹 Все спальни имеют выход на уютные балконы, где можно наслаждаться свежим воздухом и видом 🌳

🔗 Подробнее о проекте → https://beregpesochnoy.ru/construction/lot-no8b/?utm_source=dzen

📞 Заинтересовались? Звоните или пишите! +7 (495) 241-50-64

✨ А какая комната в доме для вас самая важная — кухня, спальня или балкон? Делитесь в комментариях!

#частныйдом #индивидуальныйдом #строительство #проектдома #семейныйдом #жилье #архитектура #современныйдом #доммечты #комфорт #загороднаяжизнь