Найти в Дзене
Берег Песочной

Этот уникальный проект выполнен из двух соединенных блоков, снаружи украшен декоративным кирпичом и фальц темно-серого цвета

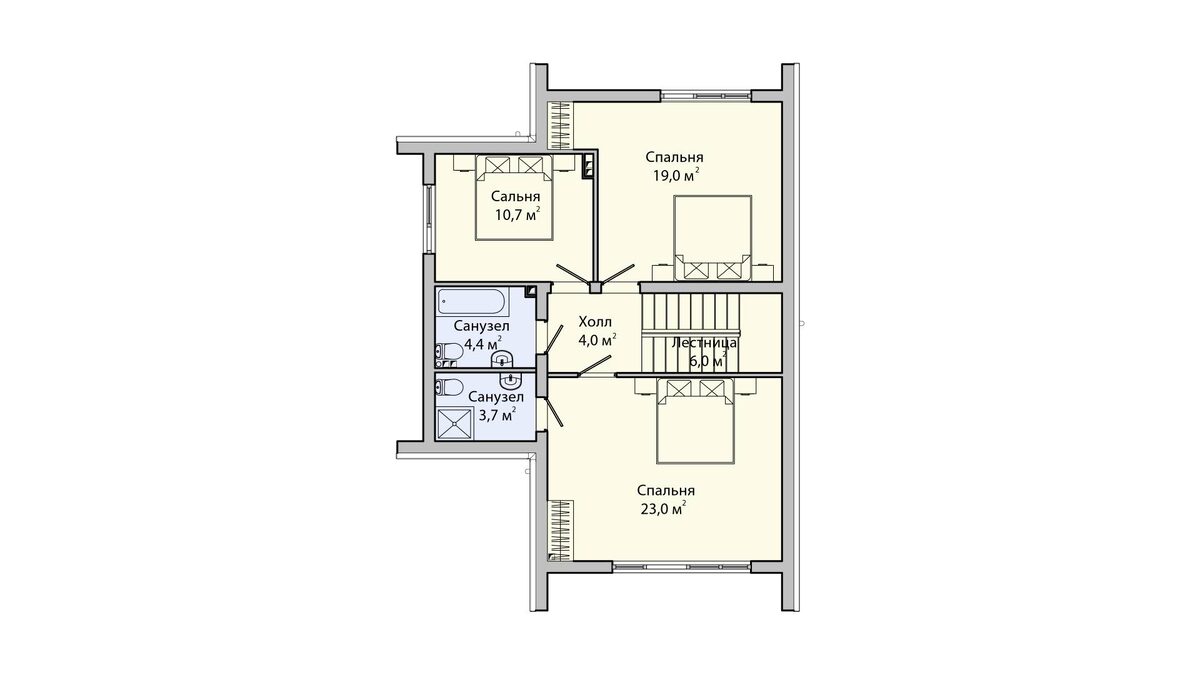
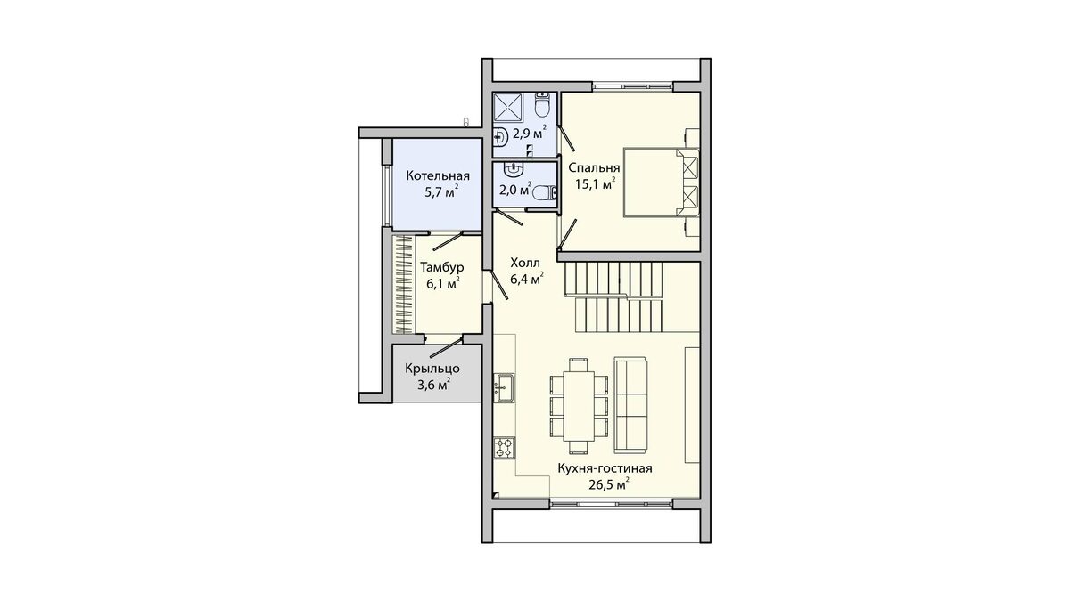
🏡 Представляем индивидуальный жилой дом ПБ-139 — стильный и современный дом в стиле Барнхаус с общей площадью 139,1 м²! ✨ Этот уникальный проект выполнен из двух соединенных блоков, снаружи украшен декоративным кирпичом и фальц темно-серого цвета, что делает его особенно привлекательным для ценителей современного и классического стилей 🧱🌑 На первом этаже вас ждут: тамбур, котельная, холл, спальня, 2 санузла и просторная кухня-гостиная, объединенная в единое комфортное пространство 🛋🍽 На втором этаже расположены еще 3 спальни и 2 санузла — идеально для семьи из 6-8 человек 👨‍👩‍👧‍👦 🔗 Подробнее о проекте → https://beregpesochnoy.ru/construction/lot-no23/?utm_source=dzen
📞 Заинтересовались? Звоните или пишите! +7 (495) 241-50-64 🌟 А какой стиль вам ближе — современный или классический? Поделитесь в комментариях! #дом #индивидуальныйдом #строительство #архитектура #современныйдом #загороднаяжизнь #проектдома #комфорт #частныйдом #стильБарнхаус

🏡 Представляем индивидуальный жилой дом ПБ-139 — стильный и современный дом в стиле Барнхаус с общей площадью 139,1 м²! ✨

Этот уникальный проект выполнен из двух соединенных блоков, снаружи украшен декоративным кирпичом и фальц темно-серого цвета, что делает его особенно привлекательным для ценителей современного и классического стилей 🧱🌑

-2
-3
-4
-5
-6
-7

На первом этаже вас ждут: тамбур, котельная, холл, спальня, 2 санузла и просторная кухня-гостиная, объединенная в единое комфортное пространство 🛋🍽

На втором этаже расположены еще 3 спальни и 2 санузла — идеально для семьи из 6-8 человек 👨‍👩‍👧‍👦

🔗 Подробнее о проекте → https://beregpesochnoy.ru/construction/lot-no23/?utm_source=dzen

📞 Заинтересовались? Звоните или пишите! +7 (495) 241-50-64

🌟 А какой стиль вам ближе — современный или классический? Поделитесь в комментариях!

#дом #индивидуальныйдом #строительство #архитектура #современныйдом #загороднаяжизнь #проектдома #комфорт #частныйдом #стильБарнхаус