Найти в Дзене

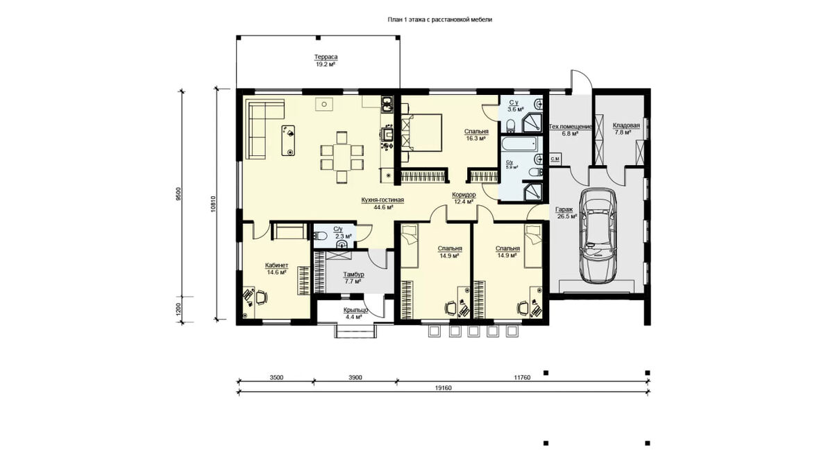
Представляем проект БП-203 — уютный одноэтажный дом с вальмовой крышей и гаражом общей площадью 201,9 м²

🏡 Представляем проект БП-203 — уютный одноэтажный дом с вальмовой крышей и гаражом общей площадью 201,9 м²! ✨ Планировка включает: тамбур, просторный холл, 3 светлые спальни, гостиную, совмещенную с кухней и столовой, кабинет, 3 санузла, кладовую, техническое помещение и гараж 🚗. Этот современный коттедж идеально подойдет для семьи из 4-5 человек, создавая комфорт и уют для каждого члена семьи. 🔹 Хотите узнать больше? Подробнее о проекте → https://benpan.ru/project/bp-203/?utm_source=dzen
🔹 Готовы построить свой дом уже сейчас? Звоните! 📞 +7 (495) 260-98-32 🌟 А какой из элементов планировки вам больше всего понравился? Поделитесь в комментариях! #дом #коттедж #строительство #частныйдом #архитектура #проектдома #загороднаяжизнь #комфорт #новыйдом #бюджетныйдом

🏡 Представляем проект БП-203 — уютный одноэтажный дом с вальмовой крышей и гаражом общей площадью 201,9 м²! ✨

-2
-3
-4

Планировка включает: тамбур, просторный холл, 3 светлые спальни, гостиную, совмещенную с кухней и столовой, кабинет, 3 санузла, кладовую, техническое помещение и гараж 🚗. Этот современный коттедж идеально подойдет для семьи из 4-5 человек, создавая комфорт и уют для каждого члена семьи.

🔹 Хотите узнать больше? Подробнее о проекте → https://benpan.ru/project/bp-203/?utm_source=dzen

🔹 Готовы построить свой дом уже сейчас? Звоните! 📞 +7 (495) 260-98-32

🌟 А какой из элементов планировки вам больше всего понравился? Поделитесь в комментариях!

#дом #коттедж #строительство #частныйдом #архитектура #проектдома #загороднаяжизнь #комфорт #новыйдом #бюджетныйдом