Добавить в корзинуПозвонить
Найти в Дзене
РУНДАМЕНТ

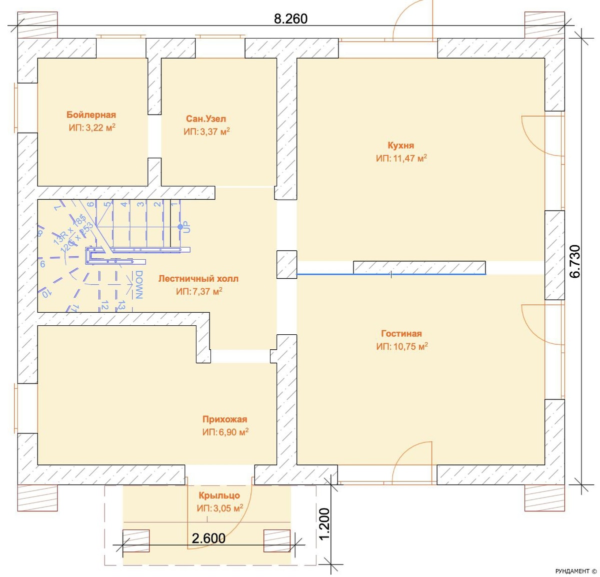
🏡 Проект дома «Бортнево 115»: комфорт и практичность в каждой детали

! Мечтаете о просторном и уютном доме для всей семьи? Представляем проект «Бортнево 115» — идеальное решение для тех, кто ценит комфорт, функциональность и экологичность! Что вы получаете: * Площадь: 115 м2 — достаточно места для полноценной жизни. * Этажность: 2 этажа — грамотное зонирование пространства. * Комнаты: 3 уютные спальни — каждому члену семьи своё личное пространство. * Общая зона: просторная гостиная и кухня — сердце дома для семейных вечеров и приёма гостей. * Санузел: 2 санузла — удобство для большой семьи и гостей. * Материал: арболит — экологичный, тёплый и долговечный материал с отличной звукоизоляцией. Почему стоит выбрать арболит? * Энергоэффективность: дом хорошо сохраняет тепло зимой и прохладу летом — экономия на отоплении и кондиционировании. * Экологичность: натуральный состав (древесная щепа и цемент) безопасен для здоровья и окружающей среды. * Долговечность: устойчивость к гниению, плесени и грызунам. * Паропроницаемость: в доме всегда комфортный микро

🏡 Проект дома «Бортнево 115»: комфорт и практичность в каждой детали!

Мечтаете о просторном и уютном доме для всей семьи? Представляем проект «Бортнево 115» — идеальное решение для тех, кто ценит комфорт, функциональность и экологичность!

Что вы получаете:

* Площадь: 115 м2 — достаточно места для полноценной жизни.

* Этажность: 2 этажа — грамотное зонирование пространства.

* Комнаты: 3 уютные спальни — каждому члену семьи своё личное пространство.

* Общая зона: просторная гостиная и кухня — сердце дома для семейных вечеров и приёма гостей.

* Санузел: 2 санузла — удобство для большой семьи и гостей.

* Материал: арболит — экологичный, тёплый и долговечный материал с отличной звукоизоляцией.

Почему стоит выбрать арболит?

* Энергоэффективность: дом хорошо сохраняет тепло зимой и прохладу летом — экономия на отоплении и кондиционировании.

* Экологичность: натуральный состав (древесная щепа и цемент) безопасен для здоровья и окружающей среды.

* Долговечность: устойчивость к гниению, плесени и грызунам.

* Паропроницаемость: в доме всегда комфортный микроклимат.

✨ Комплектация «Вайтбокс» — оптимальный выбор для тех, кто хочет воплотить свои дизайнерские идеи! В эту комплектацию входит:

* полностью возведённые стены и кровля;

* установленные окна и двери;

* проведённые инженерные коммуникации (электрика, водоснабжение, канализация);

* выровненные стены и потолки — идеальная основа для финишной отделки.

💰 Стоимость строительства в комплектации «Вайтбокс»: 8 451 270 ₽

Это разумное вложение в будущее вашей семьи — собственный дом, где будет комфортно всем!

🔎 Подробнее о проекте и условиях строительства:

👉 [https://rundament.ru/proekty-domov/157-proekt-bortnevo-115-115-m2.html](https://rundament.ru/proekty-domov/157-proekt-bortnevo-115-115-m2.html)

📩 Есть вопросы? Пишите в личные сообщения — мы с радостью поможем подобрать идеальный вариант дома и рассчитаем дополнительные опции!

#домизарболита #проектдома #Бортнево115 #строительство

-2
-3