Найти в Дзене
Берег Песочной

Этот просторный дом общей площадью 198,3 кв. м. выполнен из панелей БЭНПАН Премиум и идеально подойдет для комфортного проживания семьи из 5

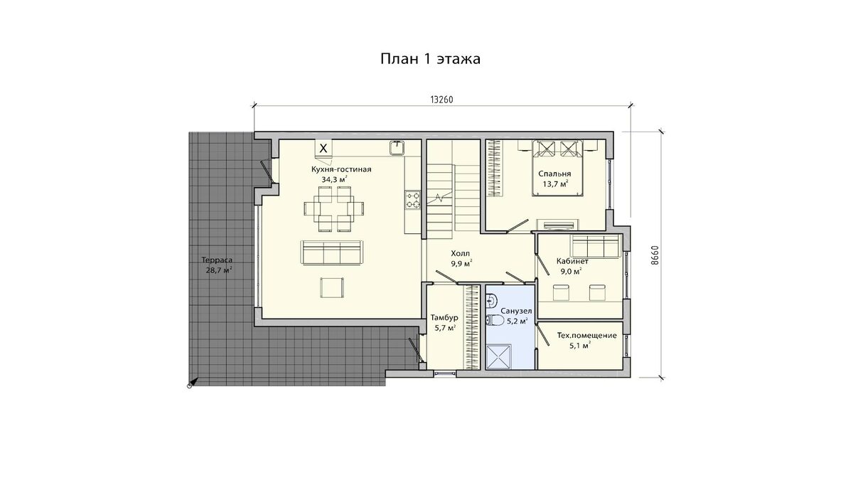
🏡 Представляем наш новый индивидуальный проект жилого дома ПБ-200/2! 🏡 Этот просторный дом общей площадью 198,3 кв. м. выполнен из панелей БЭНПАН Премиум и идеально подойдет для комфортного проживания семьи из 5-6 человек. 🌟🏠 На первом этаже вас ждут: уютный тамбур, холл, санузел, котельная, кабинет, спальня и просторная гостиная с кухней. Из кухни есть выход на большую террасу — отличный вариант для уютных вечеров и семейных посиделок! 🌿🍽 На втором этаже расположены: холл, кладовая, санузел и 3 спальни, одна из которых с собственным санузлом и выходом на балкон — место для отдыха и уединения. 🌅🛏 Хотите узнать больше? Перейдите по ссылке: 👉 https://beregpesochnoy.ru/house/lot-no132/?utm_source=dzen
Звоните или пишите прямо сейчас — обсудим строительство вашего идеального дома! 📞 +7 (495) 241-50-64 ❓ А какая комната в доме для вас самая важная — кухня, спальня или гостиная? Поделитесь в комментариях! #ИндивидуальныйПроект #ДомМечты #ЗагородноеЖилье #КомфортныйДом #ПроектПБ20

🏡 Представляем наш новый индивидуальный проект жилого дома ПБ-200/2! 🏡

Этот просторный дом общей площадью 198,3 кв. м. выполнен из панелей БЭНПАН Премиум и идеально подойдет для комфортного проживания семьи из 5-6 человек. 🌟🏠

-2
-3
-4
-5
-6

На первом этаже вас ждут: уютный тамбур, холл, санузел, котельная, кабинет, спальня и просторная гостиная с кухней. Из кухни есть выход на большую террасу — отличный вариант для уютных вечеров и семейных посиделок! 🌿🍽

На втором этаже расположены: холл, кладовая, санузел и 3 спальни, одна из которых с собственным санузлом и выходом на балкон — место для отдыха и уединения. 🌅🛏

Хотите узнать больше? Перейдите по ссылке: 👉 https://beregpesochnoy.ru/house/lot-no132/?utm_source=dzen

Звоните или пишите прямо сейчас — обсудим строительство вашего идеального дома! 📞 +7 (495) 241-50-64

❓ А какая комната в доме для вас самая важная — кухня, спальня или гостиная? Поделитесь в комментариях!

#ИндивидуальныйПроект #ДомМечты #ЗагородноеЖилье #КомфортныйДом #ПроектПБ200/2 #Строительство #СовременныйДом #ЖильеДляБольшойСемьи #ПанелиБЭНПАН #УютныйДом