Найти в Дзене
Берег Песочной

Это уютный одноэтажный жилой дом площадью 123,5 м² с современными и продуманными решениями

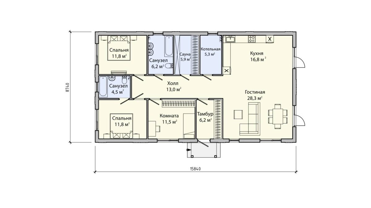
Представляем наш проект — Проект ПБ-123! 🏡 Это уютный одноэтажный жилой дом площадью 123,5 м² с современными и продуманными решениями. В доме есть 3 комнаты, просторная кухня-гостиная, сауна и техническое помещение под котельную — всё для комфортной жизни вашей семьи! 🔥🛁🛋 ✨ Основные особенности: Конструкции наружных стен из часторебристых сборных железобетонных панелей по технологии БЭНПАН Премиум толщиной 270 мм Внутренние перегородки — 100 мм Высота стен — 3,05 м, потолки — от 3 до 4,1 м Двухскатная крыша с организованным водостоком Внешняя отделка: покраска, штукатурка по пенопласту и мраморная крошка на цоколе Входные площадки и ступени — из нескользящего керамогранита Планировка на первом этаже включает тамбур, холл, 2 санузла, кухню с гостиной, 3 комнаты, сауну, техническое помещение и гардеробную. 🏠 👉 Подробнее о проекте: https://beregpesochnoy.ru/house/lot-no6b/?utm_source=dzen
🤔 Мечтаете о собственном уютном доме с современными технологиями? Звоните или пишите прямо с

Представляем наш проект — Проект ПБ-123! 🏡

Это уютный одноэтажный жилой дом площадью 123,5 м² с современными и продуманными решениями. В доме есть 3 комнаты, просторная кухня-гостиная, сауна и техническое помещение под котельную — всё для комфортной жизни вашей семьи! 🔥🛁🛋

-2
-3
-4

✨ Основные особенности:

Конструкции наружных стен из часторебристых сборных железобетонных панелей по технологии БЭНПАН Премиум толщиной 270 мм

Внутренние перегородки — 100 мм

Высота стен — 3,05 м, потолки — от 3 до 4,1 м

Двухскатная крыша с организованным водостоком

Внешняя отделка: покраска, штукатурка по пенопласту и мраморная крошка на цоколе

Входные площадки и ступени — из нескользящего керамогранита

Планировка на первом этаже включает тамбур, холл, 2 санузла, кухню с гостиной, 3 комнаты, сауну, техническое помещение и гардеробную. 🏠

👉 Подробнее о проекте: https://beregpesochnoy.ru/house/lot-no6b/?utm_source=dzen

🤔 Мечтаете о собственном уютном доме с современными технологиями? Звоните или пишите прямо сейчас! 📞 +7 (495) 241-50-64

А что для вас важнее всего в новом доме — простор или комфорт? Делитесь в комментариях! 👇

#СовременныйДом #ПроектПБ123 #СтроительствоДома #ЭнергоэффективныйДом #ЖильеМечты #ДомДляСемьи #КачественноеСтроительство #ИдеальныйДом #ДомаИзБетона #КомфортноеЖилье