Добавить в корзинуПозвонить
Найти в Дзене

«Баня Интроверта»: почему вам больше не захочется ходить в общественные парные

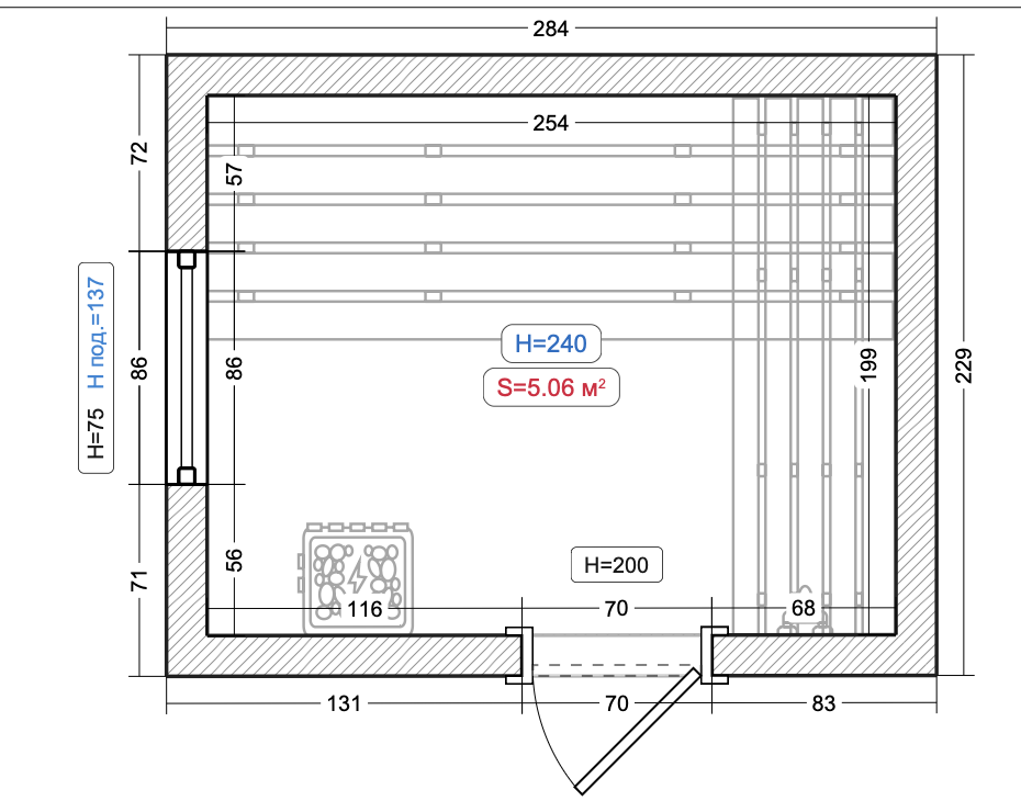
В современном мире, где нас постоянно окружают уведомления, звонки и дедлайны, истинной роскошью становится не золото, а тишина. Мы привыкли, что баня — это шумная компания, разговоры и суета. Но что, если баня — это ваш личный алтарь спокойствия? Место, где есть только вы, мягкое тепло и вид на засыпающий лес. Представляем наш самый концептуальный проект — «Баня Интроверта». Это модульная парная, созданная для тех, кто ценит уединение и эстетику минимализма. Философия «Теплого кокона» Название «Баня Интроверта» — это не просто маркетинг. Это функциональное решение. Здесь нет огромных предбанников, которые нужно часами протапливать. Здесь нет лишних комнат, съедающих пространство участка. В этой бане только парилка. Это квинтэссенция банного ритуала: вы заходите, согреваете тело, очищаете мысли и выходите обновленным. Техническое совершенство в компактном формате Несмотря на внешнюю лаконичность, внутри все продумано до миллиметра, согласно проекту №6542891: Дизайн, который не спорит

-2
-3
-4

В современном мире, где нас постоянно окружают уведомления, звонки и дедлайны, истинной роскошью становится не золото, а тишина. Мы привыкли, что баня — это шумная компания, разговоры и суета. Но что, если баня — это ваш личный алтарь спокойствия? Место, где есть только вы, мягкое тепло и вид на засыпающий лес.

Представляем наш самый концептуальный проект — «Баня Интроверта». Это модульная парная, созданная для тех, кто ценит уединение и эстетику минимализма.

Философия «Теплого кокона»

Название «Баня Интроверта» — это не просто маркетинг. Это функциональное решение. Здесь нет огромных предбанников, которые нужно часами протапливать. Здесь нет лишних комнат, съедающих пространство участка.

В этой бане только парилка. Это квинтэссенция банного ритуала: вы заходите, согреваете тело, очищаете мысли и выходите обновленным.

Техническое совершенство в компактном формате

Несмотря на внешнюю лаконичность, внутри все продумано до миллиметра, согласно проекту №6542891:

  • Габариты: Внешние размеры составляют 284 на 229 см. Она идеально впишется даже на небольшой участок, не загромождая ландшафт.
  • Пространство: Внутренняя площадь составляет 5,06 м². Этого более чем достаточно, чтобы с комфортом расположиться одному или вдвоем на Г-образных полках шириной 57 и 68 см.
  • Высота потолков: В высшей точке внутри бани комфортные 240 см, что создает ощущение объема и позволяет легко дышать даже при высоких температурах.
  • Автономность и чистота: Баня оснащена современной электропечью. Никакой колки дров, копоти или дыма. Один щелчок выключателя — и через 30–40 минут ваша личная сауна готова к приему гостей (вернее, к вашему триумфальному одиночеству).

Дизайн, который не спорит с природой

Мы отказались от образа «избушки на курьих ножках». «Баня Интроверта» выглядит как современный арт-объект. Вертикальная отделка деревом благородных оттенков, строгая темная кровля и, конечно, панорамное остекление.

Огромное окно шириной 86 см превращает процесс парения в медитацию. Вы наблюдаете за тем, как падает снег или качаются сосны, оставаясь в абсолютном тепле и безопасности. Стеклянная дверь шириной 70 см стирает границы между интерьером и окружающим миром, наполняя парную естественным светом.

Ultimate-версия: Баня с купелью под крышей

Если просто «погреться» вам мало, у нас есть решение, которое превращает обычное парение в полноценный SPA-ритуал. Это модификация «Бани Интроверта» с отдельно стоящей купелью под общей кровлей.

Представьте: вы выходите из раскаленной парной, где воздух пахнет кедром и нагретым камнем. На улице прохладно, возможно, идет дождь. Но вы делаете всего два шага по деревянному настилу и погружаетесь в прохладную или, наоборот, горячую воду купели.

Над вами — надежная крыша, защищающая от осадков, а вокруг — все тот же лес. Это сочетание стихий: огонь электропечи, пар, дерево и вода. В такой комплектации баня становится не просто местом для гигиены, а личным курортом, доступным в любой день недели.

Почему это удобно?

  1. Модульность: Мы привозим баню на ваш участок уже в готовом виде. Никакой стройки на полгода, гор мусора и рабочих. Установка занимает минимум времени.
  2. Экологичность: Натуральное дерево внутри создает неповторимый аромат и микроклимат.
  3. Экономия: Электропечь потребляет ровно столько энергии, сколько нужно для быстрого прогрева 5 квадратных метров. Это гораздо эффективнее, чем топить огромный сруб.

«Баня Интроверта» — это манифест любви к себе. Это способ сказать миру «подожди», пока вы восстанавливаете свои силы. Ведь чтобы согреть других, нужно сначала согреться самому.

Хотите узнать стоимость или посмотреть планировку «Бани Интроверта» вживую?

Напишите нам в комментариях или перейдите по ссылке в описании профиля. Мы поможем вам обрести свое место силы.

Как вы считаете, баня — это место для тусовок или для одиночества? Пишите в комментариях!